Denisa Strmisková - Long Story Short Hostel

V historickém centru Olomouce otevřel své brány zbrusu nový hostel Long Story Short, který do Olomouce uvádí nekompromisní stylové ubytování v příjemném prostředí, propojující historii a současný životní styl. Long Story Short, jehož název odkazuje nejenom na bohatou historii místa, kterou vám jeho současní provozovatelé přiblíží v kostce, ale i dispozici budovy s jednou dlouhou kontinuální chodbou i krátkodobé ubytování, které nabízí. Najdete ho v cihlové budově Podkova, jejíž historie se začala psát již v 17. století. Ubytování se nachází pouze několik minut od hlavního náměstí i hlavních olomouckých pamětihodností.
Projekt iniciovala mladá odvážná podnikatelka Eva Dlabalová, která několik let nasávala inspiraci na svých cestách a delších pobytech v zahraničí. Ve spolupráci s interiérovou designérkou Denisou Strmiskovou a majitelkou objektu, přebudovala celé jedno patro rozsáhlé historické budovy Podkova do podoby vstřícného, přátelského a kosmopolitního ubytování pro současné nomády i náročnější klientelu z tuzemska i celého světa. Mladý dynamický tým kreativní ředitelky hostelu a designérky vytvořil současné ubytování, které se může směle srovnávat s evropskými a světovými standardy.
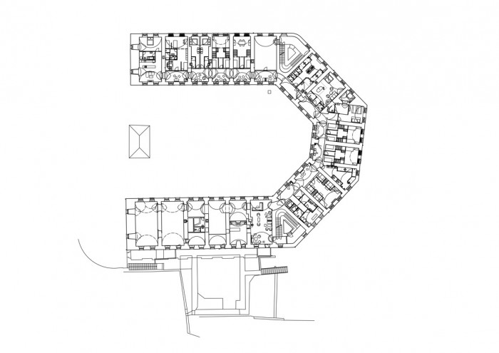
Hostel aktuálně nabízí ubytování v několika soukromých a společných pokojích, dohromady s kapacitou 56 lůžek. Soukromé ubytování nabízí komplexní komfort s vlastní koupelnou. Naopak větší společné pokoje, ve kterých nechybí ani originální prostorová řešení spacích zón, koupelnou nedisponují. To však vynahradí komfortně zařízené společné koupelny pro pány i pro dámy. Recepce, která zároveň funguje i jako společenská místnost a kavárna, je srdcem celého hostelu, který se rozvíjí kolem centrálního dvora na celém půdorysu patra ve tvaru písmene U. Kromě ubytování nabízí hostel také snídaňový servis, a drobné občerstvení v podobě malého bistra, servírujícího vynikající domácí polévky, sendviče a zákusky.
Celá koncepce hostelu vznikla od nuly, včetně veškerého vybavení a výtvarného řešení. Hlavní myšlenkou bylo podtrhnout historický genius loci a citlivými úpravami ho obohatit o současný design. Na podobě hostelu pracovala dva roky interiérová designérka a scénografka Denisa Strmisková. Organicky zaklenutá chodba, která vede od recepce do všech pokojů je z každého úhlu pohledu jiná a při jejím procházení překvapuje v každém momentě. Její formy ještě zvýrazňuje nenápadná a přesto sofistikovaná práce se světlem, pro kterou se autorka inspirovala ve scénografii. Čistě bílá omítka kontrastuje s černými detaily i citlivým výběrem pastelových barevných odstínů, kterými je čalouněn jednoduše navržený sedací nábytek, seskupený do podoby intimních zón.
Většina vybavení vznikla na zakázku. Pro pokoje byly na míru navrženy postele, zrcadla, svítidla, poličky i vybavení koupelen ve spolupráci s lokálními výrobci, např. značkami Master & Master, nebo RAV Slezák. To vše designérka elegantně sladila se starým modernistickým designem minulého století, na jehož výběru spolupracoval Miroslav Bednář z pražského obchodu Retroobjects, či současnými elegantními detaily, včetně bakelitových vypínačů Berker nebo španělských svítidel Marset. Svítidla do interiéru dodávaly také společnosti Bulb a Ewerel. Minimalistický navigační systém, který vychází z komplexního vizuálního stylu hostelu, pochází z dílny českého grafického designéra Jana Košátka. Některé prostory hotelu jsou také dekorovány originálními uměleckými díly českého výtvarníka Davida Minaříka.
Prostor hostelu se neustále rozšiřuje, před letní sezonou přibyly venkovní terasy s originálním kuchyňským ostrůvkem i pergolou. Momentálně probíhá výstavba velké kavárny a restaurace.
- Autoři: Denisa Kubíčková Strmisková
- Země: Česká republika
- Město: Olomouc
- Ulice, číslo: Koželužská, 31
- Datum projektu: 2015
- Realizace: 2017
Související projekty
Související architekti
Mohlo by vás zajímat



























