DESIGN Arcom - Veřejné WC Petřín

Nový objekt veřejných toalet byl navržen v místě původního již nevyhovujícího zařízení.

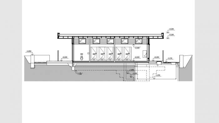
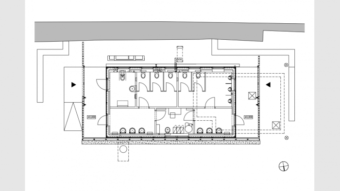
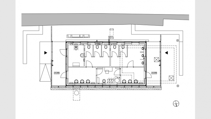
Vzhledem k tomu, že stavba se nachází v historickém prostředí, v těsné blízkosti Hladové zdi, bylo navrženo řešení s minimálními nároky na výstavbu, provoz a údržbu. Proto byl objekt navržen jako dřevostavba, která minimalizuje časové a prostorové nároky na výstavbu. Vnější plášť tvoří titanzinkový falcovaný plech. V místě oken je plášť přerušen průběžnou ocelovou žaluzií, která slouží jako ochranná mříž proti vniknutí a zakrývá rovněž vyústění zařízení vzduchotechniky. Použitý materiál splňuje nároky na odolnost vůči poškození a materiálově odkazuje k sousední Petřínské rozhledně.  V průčelí objektu je umístěna předsazená konstrukce treláže pro popínavé rostliny, která zajišťuje větší intimitu u vstupů do toalet a napomáhá objektu splynout s okolím.

Provoz vyžaduje prakticky nepřetržité vytápění v chladných měsících, proto bylo pro vytápění navrženo tepelné čerpadlo typu vzduch – voda s rozvodem tepla v podlaze, což eliminuje přítomnost radiátorů a zajišťuje trvale suchou podlahu. Pro splachování toalet je navržen systém s využitím dešťové vody. Jako akumulační nádrž byla využita původní jímka. Při nedostatku dešťové vody se zařízení automaticky přepíná na vodu pitnou. Pisoáry jsou navrženy jako bezvodé. Ve spojení s využitím dešťové vody tak dochází k výraznému ušetření pitné vody. Nucené větrání je zajištěno vzduchotechnickou jednotkou s rekuperací. Na povrch stěn a podlah v interiéru je použita voděodolná stěrka, která umožňuje snadnou údržbu. V interiéru se uplatňuje také přírodní dřevo spolu se zelenou barvou sanitárních příček. Všechny zařizovací a doplňkové předměty jsou z důvodu ochrany před vandalstvím v nerezovém provedení.

  • Země: Česká republika
  • Realizace: 2017
  • Město: Praha
  • Datum projektu: 2015
  • Realizace: 2017
Generální partner
Hlavní partneři