DEV / Rodinný dom na Devíne

Rodinný dom sa nachádza v pamiatkovej zóne obce Devín, v tesnej blízkosti hradného masívu a opevnenia rovnomenného hradu. V okolí stále prevláda pôvodná v zásade lineárna parcelácia. Pozemky sú úzke a dlhé, končiace až na opornom múre hradu. Tento fakt a požiadavka investora na zvýšenú intimitu navrhovaného obydlia boli jednými z našich vstupných podkladov. Vznikol tak líniový átriový dom.

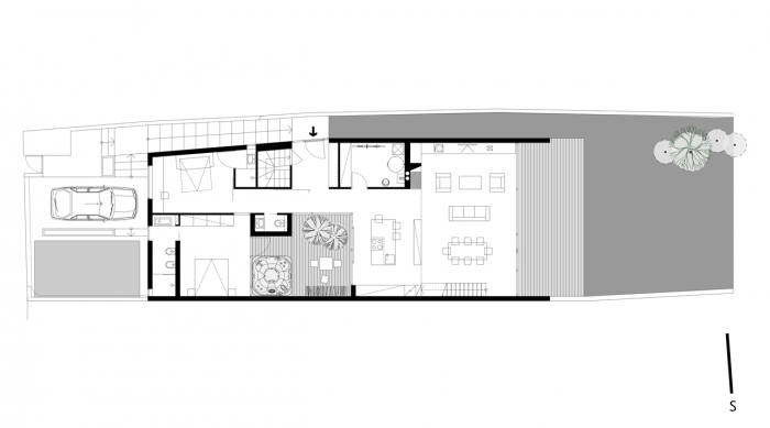
Pozemok má orientáciu východ-západ po pozdĺžnej osi. Na južnej strane pozemku sa nachádza pomerne veľká stavba susedného domu, voči ktorej sme mali za úlohu sa vymedziť v čo najväčšej možnej miere. Tento logický konflikt sa nám podarilo vyriešiť vložením pátia do centra dispozície.

Dom je z južnej a severnej strane prakticky uzavretý, všetky priestory komunikujú s exteriérom v smere východ-západ. Pátio funguje ako multiplikátor použiteľných fasád, nositeľ dôležitého slnečného svetla do interiéru a ako absolútne privátny priestor vnútri dispozície… otvorený iba nebu.

Objekt je dvojpodlažný s vloženou galériou v obytnej časti. Priestory sú radené logicky vo vzťahu ku svetovým stranám. Vo východnej časti sa nachádza garáž a technická miestnosť, čiastočne zapustená v svahu a dvojica spální. Hlavná spálňa je napojená na pátio. V západnej časti je obývacia izba s jedálňou a študovňou v najvyššej časti krovu.

Materiálové riešenie je strohé, dom je opláštený prevetrávanou fasádou z cementotrieskových obkladových platní s priznaným špárovaním. Strešná krytina je z poplastovaného oceľového plechu tej istej farby. Okná sú smrekové. Expresivita hrebeňa strechy je čitateľná iba z bočných pohľadov, dom z ulice pôsobí útlo a skromne.

Generální partner
Hlavní partneři