EA architekti - Hotel Lotrinský
Monumentální barokní sýpka v centru jihomoravské obce Velké Pavlovice byla postavena na konci 18. stolení za vlády císaře Josefa II., kdy patřila k místnímu velkostatku. Sloužila ke shromažďování společných zásob obilí pro léta neúrody. V pozdějších letech se pro stavbu tohoto měřítka hledalo využití jen obtížně. Chátrání sýpky urychlil požár na konci minulého století. Jde o významnou technickou památku.
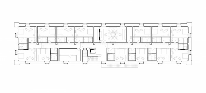
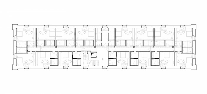
Budova je čtyřpodlažní, přízemí je zaklenuto nízkou křížovou klenbou ve dvoutraktu. Patra mají dřevěné trámové stropy, vynášené ve druhém podlaží kamennými a zděnými sloupy. Ve třetím podlaží stropy vynáší mohutné vyřezávané sloupy ze dřeva. Čtvrté podlaží je podkrovní. Tento prostorový koncept byl při rekonstrukci zachován, otevřený prostor byl dělen příčkami.
Současná společenská funkce hotelu s restaurací a konferenčním sálem je adekvátní velikosti a poloze stavby, ovšem klade na objekt technologické nároky. Z důvodu zachování jedinečnosti historické stavby a minimálních zásahů do původních konstrukcí jsme navrhli samostatnou budovu technického zázemí, zapuštěnou do terénu. Její svažitá střecha je pojata jako sad velkopavlovických meruněk. Celek je v exteriéru vymezen upravenými venkovními plochami osázenými platany, katalpami a doplněn fontánou.
Dochované původní stavební prvky vyzařují kultivované zpracování – kamenné ostění oken, kamenné a dřevěné sloupy, kovaná vrata, dřevěné schodiště, zpracování omítek, velkoplošná kamenná dlažba, váhy aj. Výtvarný koncept interiéru stačilo jen vnímat a respektovat. Rozhodli jsme se novými prvky a povrchy nekonkurovat stávajícím, ale podpořit jejich vyznění současnými stavebními a technickými možnostmi.
Přízemí budovy je v co největší míře otevřeno, aby byla zřejmá velkorysost zaklenutí celého prostoru. Nachází se zde vstupní hala, restaurace se zázemím, dva konferenční sály a příslušenství. Prosklené stěny s kovanými rámy a vestavba krbu, jež oddělují jednotlivé provozy, osvětlení, objekt recepce a baru, mobiliář, to vše je podřízeno pokračujícímu prostoru.
V dalších patrech je čtyřicet dva hotelových pokojů v různých kategoriích, z toho čtyři apartmány, klubový salonek a kancelář správy provozu. Prostorné hotelové pokoje mají prkenné podlahy, robustní dřevěné dveře a vestavěný nábytek. Původní malá okna si ponechala kamenné ostění. Jsou zvětšena proskleným parapetem ve venkovním líci stěny. Z interiéru tak vzniká dojem arkýře, vně sklo se sítotiskem splývá s fasádou. Koupelny jsou ve světlém nebo tmavém velkoplošném obkladu.
Schodiště, chodby, dveře, provedení výtahu a posuvných požárních dveří svým charakterem a atmosférou odkazují na původní funkci stavby. Většina prvků byla navržena a vyrobena jako atyp firmami v okolí, u typových jsme – pokud to bylo možné – dali přednost českým designům a značkám. Výběr světelných objektů do pokojů je metaforou odkazující na historickou událost požáru. Jejich výroba je inspirována japonskou metodou opracování dřeva yakisugi – v tomto případě se horké sklo leje do dřevěného kopyta.
Vesnice se nachází v aktivní folklorní oblasti, stále v ní žijí řemeslníci a výrobci krojů používající tradiční postupy. Batikované modré obrazy mají volnou předlohu v zástěře, která je součástí ženského kroje. Tradiční výšivky a tisky na textilu budou postupně doplňovat interiér o bohatství lokální kultury.
- Autoři: Zdeněk Eichler, Eva Eichlerová
- Spolupráce: Martina Matušková, Přemysl Valový
- Země: Česká republika
- Realizace: 2018
- Město: Velké Pavlovice
- Ulice, číslo: Dlouhá, 1177/69
- Datum projektu: 2016
- Realizace: 2018
Mohlo by vás zajímat