edit! architects - Bistrotéka La Bottega Tusarova

La Bottega Tusarova původně neměla mít restaurační část. Byl to prostor, kde společnost La Colezzione koncentrovala svojí výrobu vlastních potravin. Vznikly zde proto prostory speciálně upravené pro přípravu vlastních těstovin, cukrářského sortimentu, vlastní pekárna italského chleba. Až dodatečně klient rozhodl o vytvoření restaurační části. Tady opět kladl důraz na prodej italských surovin a vín. Prostor jsme podélně rozčlenili pomocí ocelových regálů na produkty. Mezi regály jsme umístili sezení a tím návštěvníky obklopili zbožím a pocitově rozbili velký a nezajímavý prostor.
- Ateliér: edit! architects
- Realizace: 2014
- Město: Praha
- Adresa:: Dlouhá 39
Související projekty
Související ateliéry a firmy
Mohlo by vás zajímat

Bistrotéka La Bottega Tusarova v Praze od edit! architects
Foto: Saša Dobrovodský
1/6

Bistrotéka La Bottega Tusarova v Praze od edit! architects
Foto: Saša Dobrovodský
2/6

Bistrotéka La Bottega Tusarova v Praze od edit! architects
Foto: Saša Dobrovodský
3/6

Bistrotéka La Bottega Tusarova v Praze od edit! architects
Foto: Saša Dobrovodský
4/6

Bistrotéka La Bottega Tusarova v Praze od edit! architects
Foto: Saša Dobrovodský
5/6

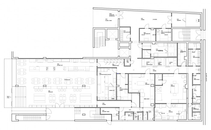
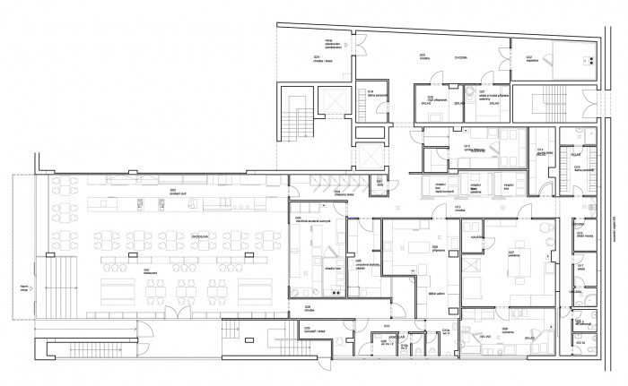
Půdorys
Foto: edit! architects
6/6