E

edit! architects - Restaurace Globus

Restaurace Globus v Praze od edit! architects Foto: Saša Dobrovodský

Společnost Globus postupně inovuje svoje restaurace. V Centru Černý Most se rozhodli otestovat koncept, kde kromě samoobslužné části a výdeje hotových jídel vznikne i minutková kuchyně v přímém kontaktu s návštěvníky.

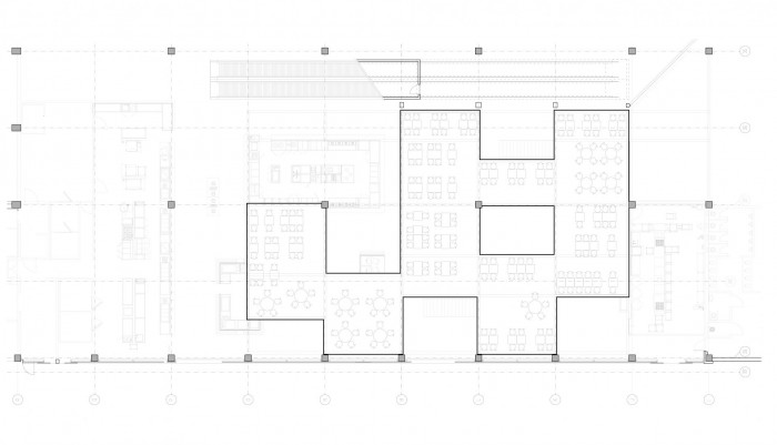
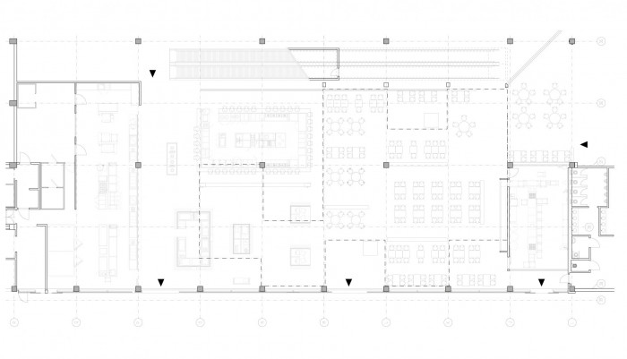
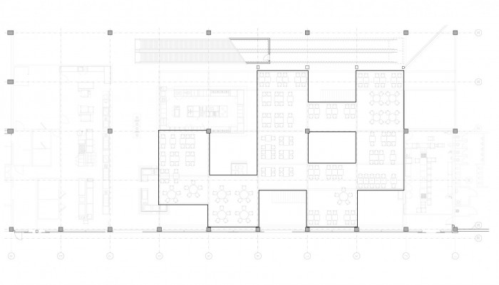
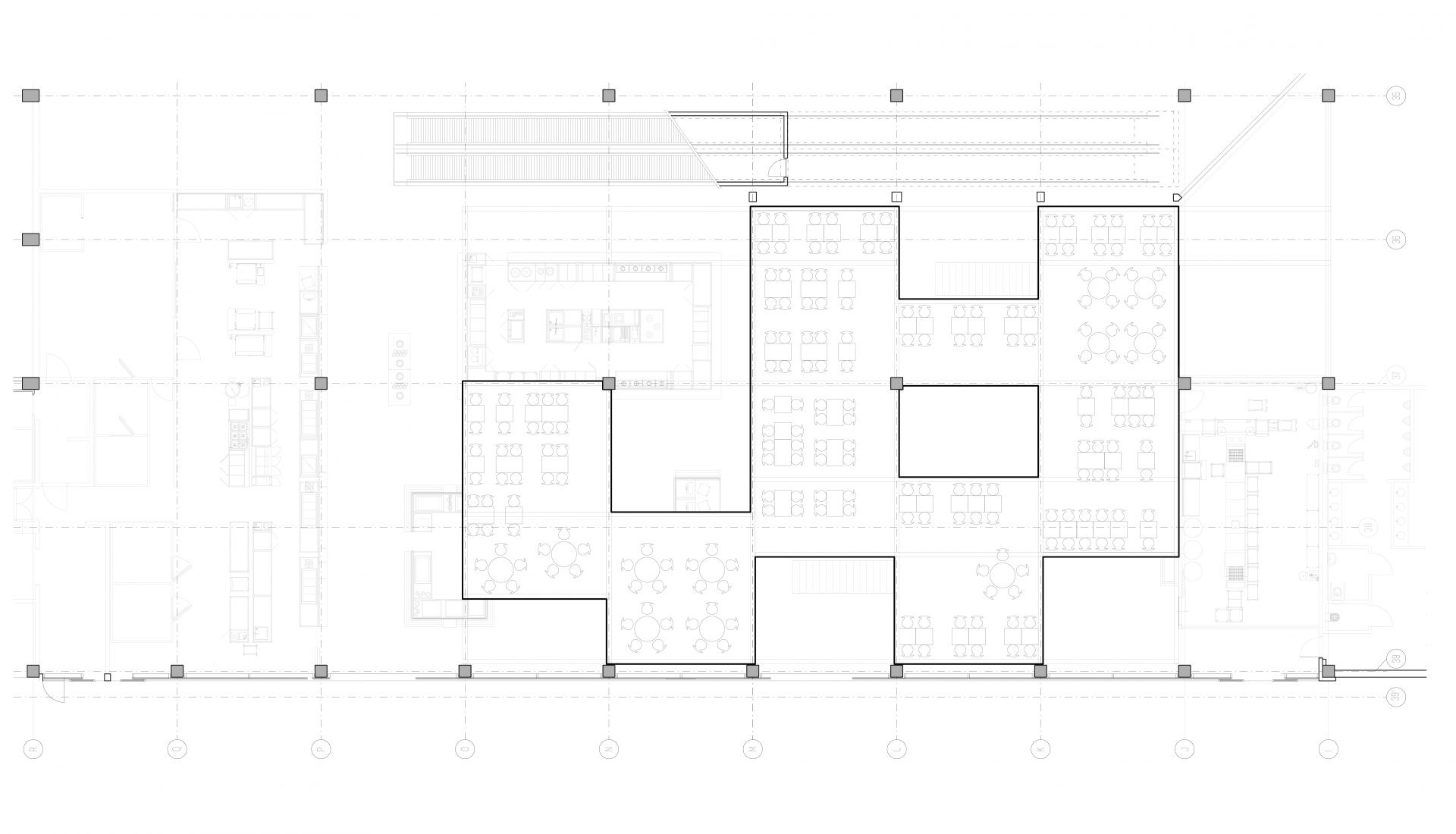
Pro restauraci vyčlenili část hypermarketu Globus. Montovaná hala z železobetonových prefabrikovaných sloupů, průvlaků a stropních T panelů nevytvářela příjemnou atmosféru pro stravování. Její výška ale současně umožňovala řešení prostoru o dvou úrovních.

Rozhodli jsme se proto vložit do haly druhé podlaží, kterým jsme znásobili plochu pro sezení hostů. V celém prostoru restaurace je vložen ocelový skelet ve stejném rastru a se stejnou výškou. Do jednotlivých polí rastru jsou následně vsazeny konstrukce vloženého patra. Tím vznikají plná a prázdná pole rastru. Jejich vzájemnou kompozicí vytváříme v interiéru různé nálady v závislosti na typu prostoru. V částech, kde je předpokládaný hlavní pohyb lidí jsou prázdná pole, která umožňují průhledy do výšku a do dálky, co ulehčuje orientaci v prostoru. V místech, kde se předpokládá zejména sezení hostů, jsou pole plná, která vytvářejí sníženým stropem příjemnou atmosféru pro stolovaní s vhodným osvětlením. Orientaci hostů ale i kontrolu směrů pohybu umožňují vložené nábytkové kusy s výškou 1m, které tvoří snížené paravány.

  • Ateliér: edit! architects
  • Realizace: 2017
  • Město: Praha
  • Adresa:: Chlumecká 765/6
Generální partner
Hlavní partneři