Formafatal - Korkový byt

Na ploše 78 metrů čtverečních si klient přál vytvořit jednoduše a jednotně působící interiér a jeho touhou bylo v co největší míře použít přírodní korek. A tak se tento materiál stal jedním z ústředních motivů koncepce řešení bytu.
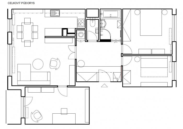
Objevuje se na podlahách téměř celé plochy dispozice. Velkoformátová plovoucí podlaha z přírodního korku s odolnou povrchovou úpravou vnesla pro byt v panelovém domě nejen estetické sjednocení ale i další výhody - vynikající akustické a tepelně izolační vlastnosti.
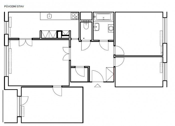
Korek se propisuje také na stěně koupelny, kde se kolečková korková mozaika stala zajímavým, ale nevtíravým detailem vedle jednoduchého obkladu z velkoformátové šedivé keramiky. Úpravou půdorysu koupelny a přesunem pračky do samostatné niky v předsíni se podařilo umístit v koupelně nejen vanu ale i sprchový kout.
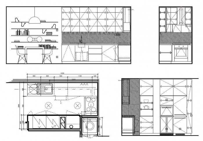
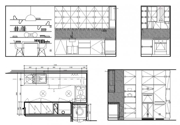
Úprava dispozičního řešení kuchyně přinesla propojení obývacího prostoru s jídelním stolem a samotným koutem s kuchyňskou linkou. Tato je tvarově i materiálové jednoduchá, poskytuje však maximální možnou úložní plochu a taktéž i komfortní prostor pro majitelovu zálibu ve vaření a dobrém víně.
Nad jídelním stolem visí korkový lustr z dílny designéra Benjamina Huberta, vyroben ze zbytků korkové drtě vzniklé jako odpadní materiál při výrobě korkových zátek pro víno.
V předsíni uvítá mobilní stolička z přírodního dřevěného špalku a nika na klíce či připíchnuté odkazy s korkovými zády. Celý prostor se dále nese v bílé barevnosti kombinované se světle šedými odstíny na zabudovaných nábytkových prvcích.
- Autoři: Katarína Varsová
- Ateliér: Formafatal
- Země: Česká republika
- Město: Praha
- Datum projektu: 2015
- Realizace: 2015
- Poznámka: Foto © BoysPlayNice
Související projekty
Související architekti
Související ateliéry a firmy
Mohlo by vás zajímat















