Framehouse

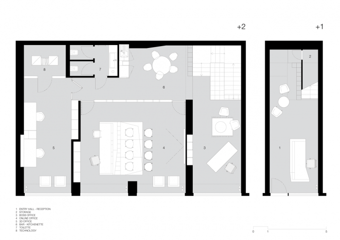
Interiér postprodukčného štúdia FRAMEHOUSE sa nachádza v zrekonštruovanom polyfunkčnom objekte na Miletičovej ulici v Bratislave. Štúdio zaberá plochu necelých sto päťdesiatich metrov štvorcových, rozdelenú do dvoch podlaží a pohráva sa s materialitou, minimalizmom a tvaroslovím. Heslo „v jednoduchosti je krása“ sa architekti snažia naštrbiť občasnými priestorovými prvkami. Heslom je drevo, betón a trošku kovu.
Do štúdia sa vstupuje cez recepciu, nachádzajúcu sa v parteri objektu situovanom do pešieho korza. Recepcii dominuje zalomený betónový pult, pripomínajúci kameň vyrastajúci z betónovej podlahy. Hranatosť pultu je doplnená o amorfnú vlnitosť prírodnej kresby obkladu stien z veľkoformátových olejovanýách preglejkových platní o rozmeroch 2000 × 1250 mm.
Tento preglejkový obklad sa tiahne celým priestorom recepcie, cez schodisko, až po priestory na 2. nadzemnom podlaží a vytvára tak dojem celistvosti a kontinuity v priestore rozdelenom podlažiami.
V schodiskovom zrkadle sa nachádza levitujúca priestorová sieťovina z roxorových tyčí, ktorá okrem svojej primárnej funkcie zábradlia slúži aj ako knižnica a nosič interiérovej zelene.
Hneď oproti schodisku sa otvára open space priestor pre šéfa štúdia. Vedľa neho sa nachádzajú najdôležitejšie priestory štúdia, ktorými sú pracoviská online a 3D. Online pracovisko je koncipované ako prezentačný priestor pre klientov s dominantným zalomeným betónovým strihačským pultom a pódiom s „kino” sedením na prezentáciu prác. Toto pracovisko je uzavreté atypovou preskleno/preglejkovou stenou, ktorá ho oddeľuje od doplnkových priestorov štúdia.
Jedným z takýchto doplnkových preistorov je aj meeting/coffee bar s celopreglejkovou multifunkčnou barovou stenou. Za týmto priestorom oddychu a dobrej kávy sa nachádzajú toalety, pracovisko 3D a technologická miestnosť s rackmi.
- Autoři: Maroš Fečík, Filip Kandravý
- Ateliér: plusminusarchitects
- Země: Slovensko
- Město: Bratislava - Ružinov
- Ulice, číslo: Miletičova 99/5
- PSČ: 821 02
- Datum projektu: 2015
- Realizace: 2016
- Užitná plocha: 145.00m2
- Poznámka: Foto © Maroš Fečík
Související projekty
Související architekti
Související ateliéry a firmy
Mohlo by vás zajímat























