Fránek Architects - Rodinný dům v Krkonoších

Zadání vytvořit návrh domu do panenské Krkonošské přírody je výzva, obzvlášť pro dlouholetého přítele a jeho mladou rodinu, pro člověka milujícího přírodu, umění a život. Návrh domu navíc velikostně odpovídá původní budově, která v tomto chráněném místě od pradávna stávala, jako jediná široko daleko. Zodpovědnost vůči těmto okolnostem a přísná regulace dala vzniknout jeho archetypální formě. K této vnější podobě přibyl požadavek investora na sofistikované zpracování prostoru duchovně zaměřeného, nevšedního a čistého.

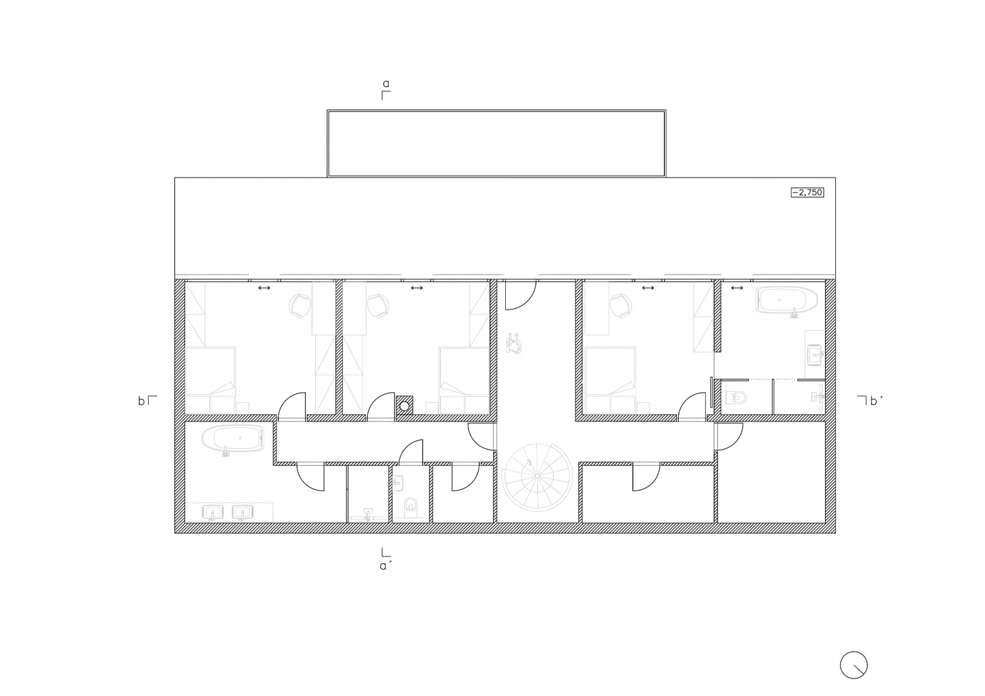
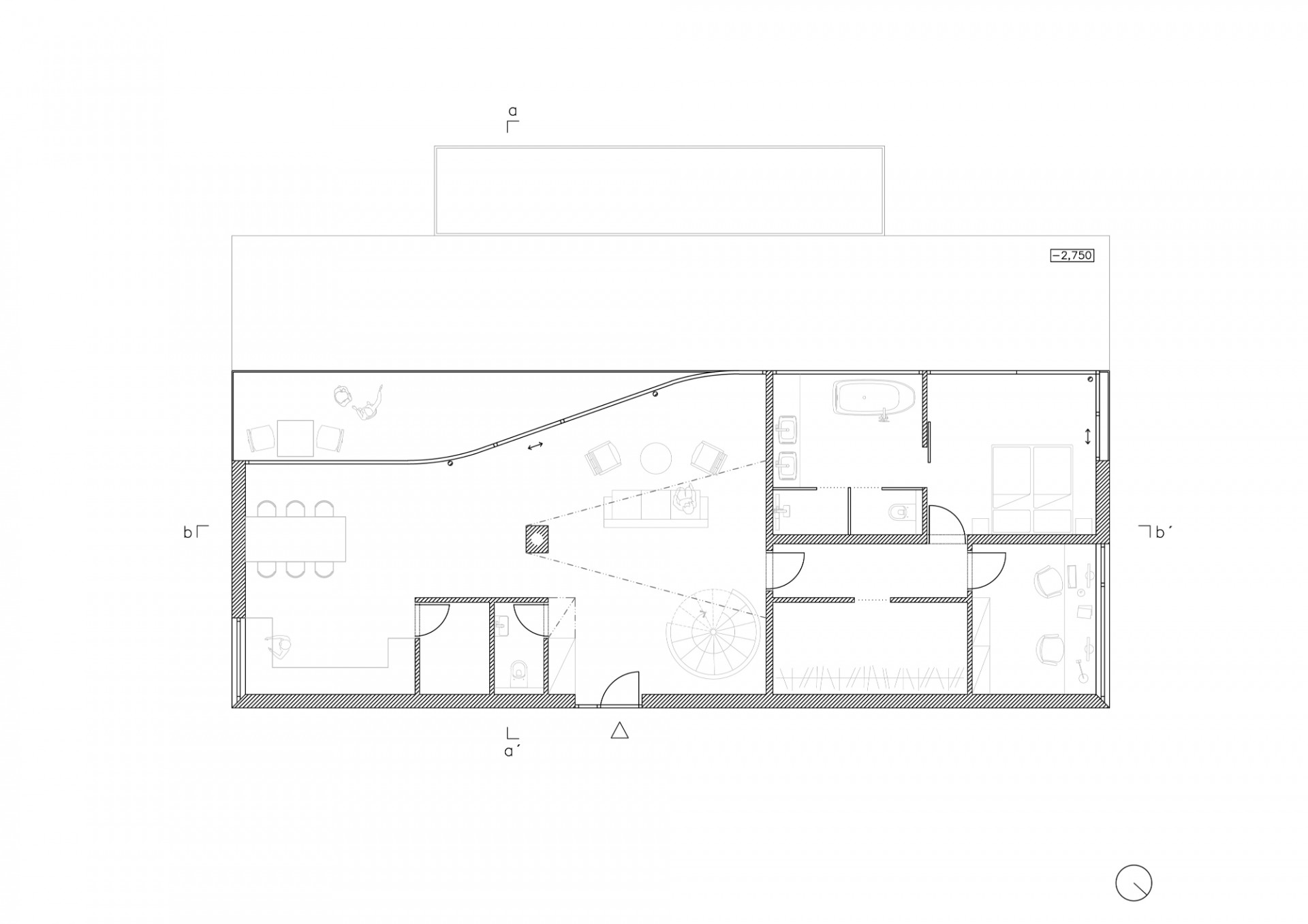
Dům je uložen do svažitého terénu tak, že suterén má nástup ze spodní strany směrem k venkovnímu bazénu. Hlavní vstup a příjezd je pak orientován do 1NP v horní části pozemku. Celý suterén je ze železobetonu. Od úrovně ± 0,0 je objekt čistou dřevostavbou. Krov je tvořen čtyřmi rámy – lepenými plnými vazbami, do nichž je bílý pohled dotvořen třemi páry konvexně prohnutých polštářů pro lepší využití prostoru, akustickou pohodu a světelnou režii.

Zatímco zvenku je celý dům včetně střechy obložen modřínovými lepenými latěmi, uvnitř je celý čistý, bílý včetně podlah, aby sloužil jako bílý papír pro zakomponovávání umění v podobě pozitivního myšlení. Takto sám investor dům vnímá. Dlouhá cesta lesem navozuje nedočkavost a stupňuje zážitek z jeho atmosféry požadovanou měrou. Bonusem je pak přiměřená velikost domu a jeho příznivé úsporné užívání a udržování v daném místě. K tepelnému čerpadlu časem přibude přístřešek na auta vybaven solárními panely a skleník na zeleninu.

Moje zkušenost s takto formálně čistými domy je následující: požadují je silné osobnosti, které mají vlastní představu o svém směřování, o svém místě na tomto světě a o hodnotách, které představuje jejich rodina. Exteriér takových domů je charakteristický svou výtvarnou krásou, uměním stárnout a nořit se do zeleně. Vyjadřuje tím jakýsi souzvuk s vesmírem. Chápání jeho obyvatele, že nic netrvá věčně, ale i nenapodobitelnost a nenahraditelnost přítomného okamžiku.

Interiér takových domů svou čistotou nechává prostor myšlenkám jeho obyvatel a nechává vyniknout jejich osobnostem a intelektu, kterým při jeho obývání interiér zaplňují, zabydlují, zútulňují a poznamenávají.

  • Ateliér: Fránek Architects
  • Autoři: Zdeněk Fránek
  • Země: Česká republika
  • Zodpovědný projektant: Jiří Topinka
  • Datum projektu: 2016
  • Realizace: 2018
  • Užitná plocha: 376.00m<sup>2</sup>
  • Zastavěná plocha: 225.00m<sup>2</sup>
  • Plocha pozemku: 639.00m<sup>2</sup>
  • Poznámka: Okna – Janošík Okna-Dveře<br>Konstrukce – Stavhost<br>Nábytek – Ikea<br>Podlahy – Reno<br>Podlahová stěrka – IQ Floor<br>Modřínové prkna – Teichman<br>Schodiště – Klavix
Generální partner
Hlavní partneři