Grau Architekti - Byt H

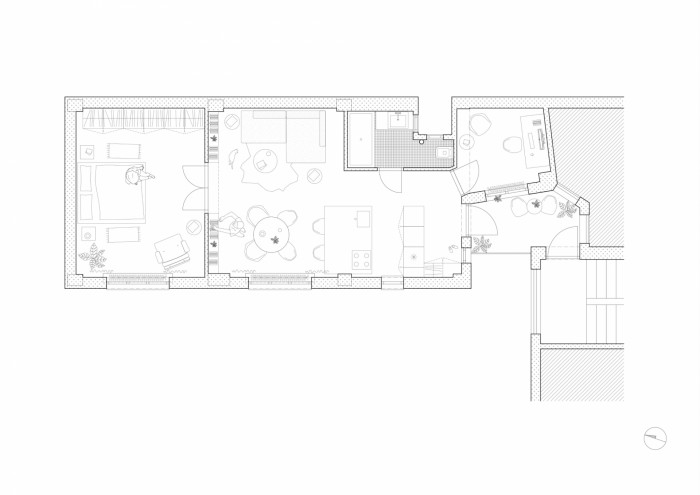
Byt na Medenej ulici v bytovom dome zo 40 rokov v sebe nenesie ducha okolitých prvorepublikových domov s vysokými stropmi a prevládajúcou osovou emfiládou. Aj napriek tomu byt s racionálnou dispozíciou čiastočne preberá tento princíp. Pôvodná chodba od vstupu osovo smeruje po dĺžke bytu až do obývacej časti a pokračuje do izby presklenými dvojkrídlovými dverami. Obytný priestor si tak ponechal staromestského ducha aj pri svojich rozmeroch a orientácie od ulice do vnútrobloku.
Zväčšením obývacej izby o pôvodnú slúžkovskú izbu sme dostali miesto pre kuchyňu. Od vstupu tento priestor oddeľuje šatníková skriňa. Pri prechode zo zádveria do obývacej časti s kuchyňou sa dostávame do osového priehľadu celého bytu. Vložený objem kuchyne ako jediný materiálový a farebný objem v byte opticky vyvažuje priehľad a odkazuje na pôvodné priečky a dvere v obývacej izbe. Kuchynský pult presahuje do obývacej časti a stáva sa jej súčasťou. Z pôvodnej kuchyňe sa stala malá pracovňa.
V interiéri prevažuje biela farba, doplnená o farebný akcent kuchynského pultu a jaseňovú šatníkovú skriňu na svetlej terazzo podlahe. Ten istý princíp materiality preberá aj kúpeľňa. Ostatná čast bytu je opakom tejto koncepcie, na drevených parketách je uložený biely nábytok s objektami z dreveného masívu.
- Autoři: Andrej Olah, Filip Marčák, Matej Kurajda, Jana Filípková
- Ateliér: Grau Architects
- Země: Slovensko
- Město: Bratislava
Související projekty
Související architekti
Související ateliéry a firmy
Mohlo by vás zajímat















