Hantabal architekti - Chata PS
Umiestnenie novostavby chaty na pozemku rešpektuje a využíva trvar terénu, ktorý sa v polovici začina zvažovať smerom k jazeru. Práve tieto terénne podmienky umožnili včleniť objekt tak, že jeho zadná časť je jednym podlažím zapustená do terénu.
Celkové hmotovo-priestorové usporiadanie chaty je riešené tak, aby čo najviac splynulo so zalesneným borovicovým charakterom okolitej krajiny. K tomuto prispieva aj drevená prevetrávaná fasáda a začlenenie do zvažujúceho sa terénu k jazeru. Dispozičné riešenie domu vychádza z požiadaviek investora, orientácie svetových strán, maximálneho využitia výhľadu, ktorý poskytuje dané miesto a kontakt so záhradou a jazerom.
- Autoři: Michaela Hantabalová, Juraj Hantabal
- Ateliér: Hantabal architekti
- Spolupráce: Jarmila Burková, Soňa Pavolová
- Země: Slovensko
- Město: Plavecky štvrtok
- Datum projektu: 2013
- Realizace: 2017
Související architekti
Související ateliéry a firmy
Mohlo by vás zajímat
1/20
Chata PS ve slovenské obci Plavecký Štvrtok, Hantabal architekti © Juraj HantabalChata PS ve slovenské obci Plavecký Štvrtok, Hantabal architekti
Foto: Juraj Hantabal
2/20
Chata PS ve slovenské obci Plavecký Štvrtok, Hantabal architekti
Foto: Juraj Hantabal
3/20
Chata PS ve slovenské obci Plavecký Štvrtok, Hantabal architekti
Foto: Juraj Hantabal
4/20
Chata PS ve slovenské obci Plavecký Štvrtok, Hantabal architekti
Foto: Juraj Hantabal
5/20
Chata PS ve slovenské obci Plavecký Štvrtok, Hantabal architekti
Foto: Juraj Hantabal
6/20
Chata PS ve slovenské obci Plavecký Štvrtok, Hantabal architekti
Foto: Juraj Hantabal
7/20
Chata PS ve slovenské obci Plavecký Štvrtok, Hantabal architekti
Foto: Juraj Hantabal
8/20
Chata PS ve slovenské obci Plavecký Štvrtok, Hantabal architekti
Foto: Juraj Hantabal
9/20
Chata PS ve slovenské obci Plavecký Štvrtok, Hantabal architekti
Foto: Juraj Hantabal
10/20
Chata PS ve slovenské obci Plavecký Štvrtok, Hantabal architekti
Foto: Juraj Hantabal
11/20
Chata PS ve slovenské obci Plavecký Štvrtok, Hantabal architekti
Foto: Juraj Hantabal
12/20
Chata PS ve slovenské obci Plavecký Štvrtok, Hantabal architekti
Foto: Juraj Hantabal
13/20
Chata PS ve slovenské obci Plavecký Štvrtok, Hantabal architekti
Foto: Juraj Hantabal
14/20
Chata PS ve slovenské obci Plavecký Štvrtok, Hantabal architekti
Foto: Juraj Hantabal
15/20
Chata PS ve slovenské obci Plavecký Štvrtok, Hantabal architekti, půdorys 1 NP
16/20
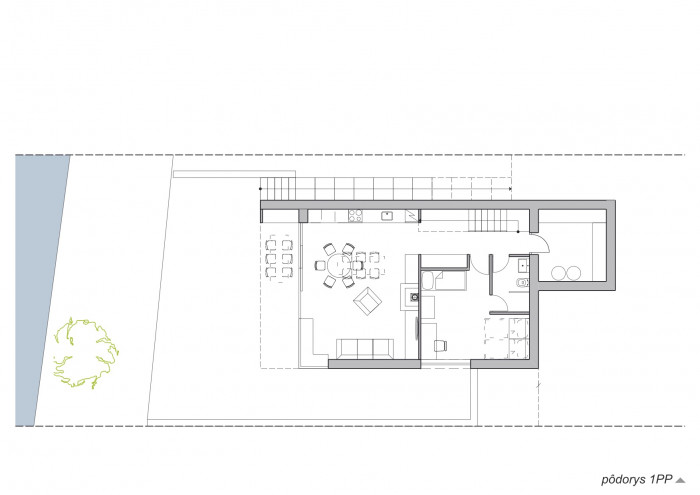
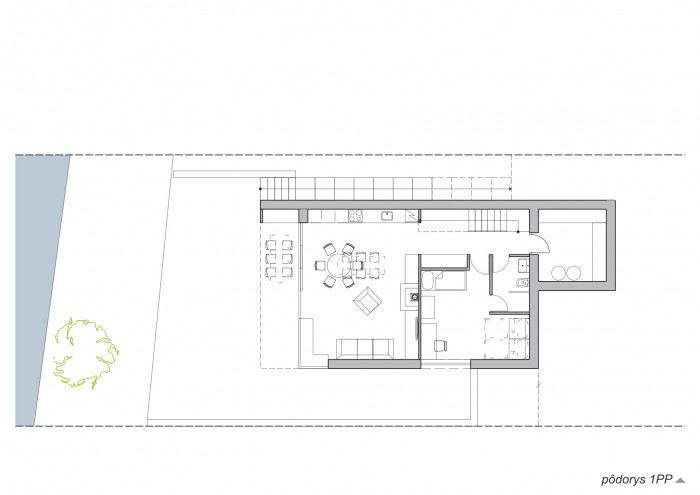
Chata PS ve slovenské obci Plavecký Štvrtok, Hantabal architekti, půdorys 1 PP
17/20
Chata PS ve slovenské obci Plavecký Štvrtok, Hantabal architekti, pohled jih
18/20
Chata PS ve slovenské obci Plavecký Štvrtok, Hantabal architekti, pohled sever
19/20
Chata PS ve slovenské obci Plavecký Štvrtok, Hantabal architekti, řez
20/20