H

House of Memory

Dům-památník

House of Memory je skutečným kolektivním domem, který má sloužit k tomu, aby obyvatelům Milána pomohl ochránit vzpomínky, které chtějí uchovat. Těmi zmiňovanými pěti společnostmi jsou: Národní asociace bývalých deportantů (A.N.E.D.), Národní asociace italských partyzánů (A.N.P.I.), Národní asociace obětí terorismu (A.I.VI.TER.), Asociace 12. prosince 1969 Piazza Fontana a Národního institutu studií italského hnutí odporu (I.N.S.M.L.I.).

To, že je v názvu budovy slovo dům, stejně jako zvolená forma domu, má kontrastovat s faktem, že se vlastně jedná o specifický druh památníku. Pevná, stálá obálka domu má kontrastovat s nejistou a proměnlivou pamětí, kterou ochraňuje uvnitř.

House of Memory je v mnoha ohledech bezprecedentním monumentem. Není to ani muzeum, ani skutečné kulturní centrum, ani opravdová knihovna – dům je spíše podobný archivu, pokladnici. V některých ohledech se odvolává na benátskou scuole nebo monumentalitu žitných sýpek (Kornhäuser čili „dům žita“) středověkých německých měst.

Scuole byla bratrstva nebo obchodní unie, které sjednocovala skupiny lidí stejné profese nebo etnického původu. Scuole vytvořily velice precizní typologii budov s jasnou sadou společných prvků: extrémně dekorativním exteriérem, velikými jednacími místnostmi v patře propojenými s přízemím monumentálním schodištěm, tyto jednací místnosti byly obvykle zařízeny obdivuhodnou sbírkou obrazů.

Kornhäusers byly objemné veřejné obilnice, někdy svým měřítkem předčíce i radnice. Obvykle bývaly situovány v centru města, aby dokázaly zásobovat město potravinami v případě napadení. Díky své pozici a velikosti se Kornhäusers staly přirozeným dominantami. I v tomto případě byla jednoduchost jejich interiérů spojena s bohatě zdobenými exteriéry.

Globální paměť vs. lokální paměť

House of Memory byl vytvořen kvůli vztahu s minulostí města. Tento vztah s historií celého města je – v lokálním měřítku – založen na přesném vztahu s historií a identitou sousední čtvrti Isola. Budova se nachází na hranici čtvrti Porta Nuova mezi novými výškovými budovymi a přijímá jednoduchá, jasná pravidla skromného a uměřeného města vedle nich. Na okraji zcela nové části města budova udržuje vztah s místními uměleckými a industriálními tradicemi. Z tohoto ohledu je hrubé vzezření budovy – kvádr s několika okny – hrdě střízlivé svými konstrukčními materiály a navozuje hluboké a precizní spojení s industriální tradicí sousední čtvrti Isola.

Fasády

House of Memory je cele pokryt velkými mozaikami zachycujícími nedávnou milánskou historii. Skořápka nové budovy je chápána jako soudobý polyptych: tato sbírka obrazů bezprostředně vyjadřuje komplexitu a ideální jednotu milánské kolektivní paměti. Takto dekorovaná fasáda, spíše než jako definice sdílené paměti, vyjadřuje potřebu takového sdílení. Z tohoto důvodu jsou mozaiky zároveň explicitně monumentální a přitom úmyslně křehké. Mozaiky jsou v podstatě, díky své konstrukci, lépe čitelné z dálky a s postupným přibližováním ztrácejí na jasnosti. Nakonec se rozpustí do jakéhosi vířícího prachu, jako by si nakonec nebyly jisty pravdou, kterou tak hrdě odhalují.

Ikonografický program, pečlivě vybraný vědeckou komisí, je tvořen z devatenácti portrétů anonymních milánských občanů, které naznačují různorodost populací, které se ve městě pohybovaly v poválečné době, a osmi historických obrazů zachycujících osm momentů z nedávné historie města, jako byly například transporty do koncentračních táborů, osvobození od fašismu nebo bombové útoky na Piazza Fontana z 12 prosince 1969. Exteriérová výzdoba je vyvedena z polychromovaných cihel, které se odvolávají na lombardskou tradici budov, jako jsou Ospedale Maggiore nebo Santa Maria delle Grazie.

Fasády objektu jsou kompletně vyvedeny z cihel a kombinují rámy tvořené mělkými pilastry a architrávy s rozměrnými zapuštěnými panely dekorovanými mozaikami v šesti tónech. Tyto velké panely jsou dále rozděleny na devatenáct čtverců s portréty (4,6 × 4,6 m) a osm velkých obdélníků s historickými výjevy (9,6 m na výšku a různými šířkami). Polychromované cihly ve škále šesti různých odstínů byly speciálně vyrobeny do specifických rozměrů (55 × 55 × 120 mm) firmou SanMarco SRL.

Tyto mozaiky jsou vyrobeny na základě archivních fotografií. Detaily z fotografií jsou oříznuty tak, aby obrazy odpovídaly proporcím panelů. Tyto sady fotografií byly zredukovány na počet pixelů rovný počtu cihel v panelu a poté zpracovány do šesti odstínů tak, že každá cihla na fasádě odpovídá pixelu zpracovaného obrázku. Výsledkem tohoto postupu byla matrice od 1 do 6 (odpovídající různým odstínům cihel). Tato matrice byla později vytištěna a aplikována na stavbě (v měřítku 1:1), aby tak došlo k přesnému umístění cihel.

Dispozice domu

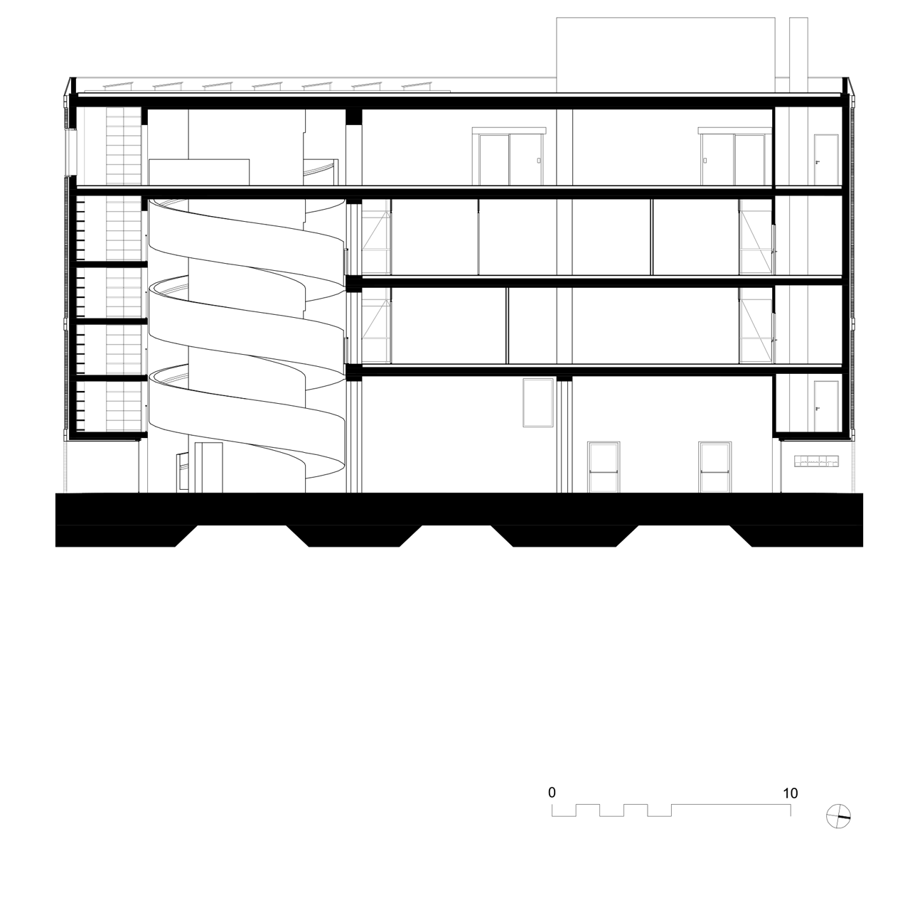
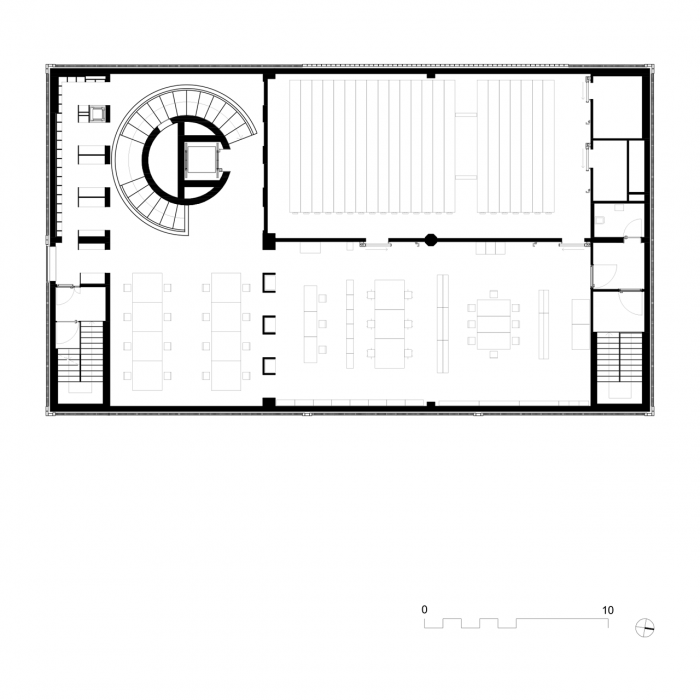
House of Memory je velice jednoduchá stavba: kvádr s obdélníkovou podstavou o rozměrech 20 krát 35 metrů a o výšce 17,5 metrů.

Dispozičně je budova rozdělena na tři části vzájemně propojené otevřeným přízemím. Dvě tenké vrstvy kolem kratších stran budovy ukrývají archiv (na jihu), toalety a technické místnosti (na severu) a vertikální komunikace. Otevřený prostor v přízemí je členěn na tři části dvěma osmiúhelníkovými sloupy. Třetina tohoto prostoru je otevřená přes celou výšku budovy a obsahuje točité schodiště. Zbytek objemu zaujímají výstavní prostory a tři podlaží kanceláří. Tato vnitřní organizace – s ohromným žlutým schodištěm, vloženém mezi tři podlaží kanceláří, výstavní prostory a pět pater archivu – vnáší do budovy větší měřítko. Kontrast mezi těsnými podlažími archivu a kolosálními rozměry schodiště dovoluje kancelářím a výstavním prostorám dosáhnout pocitu prostornosti; návštěvník vnímá rozlehlejší, velkorysejší atmosféru.

Žluté schodiště není jen hlavní komunikací, ale také prostředkem zajišťujícím vztah mezi návštěvníkem a sbírkou. Vzácnost sbírky totiž nedovoluje návštěvníkům přímý kontakt s dokumenty, vztah mezi občany a sbírkou je tak zajištěn otáčivým pohybem po schodišti. Návštěvník se opakovaně přibližuje a oddaluje od sbírky a zažívá tak komplexní sled pohledů na dokumenty i za ně, do venkovního parku.

Světlo do budovy proniká mnoha způsoby. Kanceláře mají velká okna koncentrovaná v přilehlých částech fasády. Otevřené open space uspořádání a skleněné příčky zdůrazňují hojnost světla. Vstupní hala, velké schodiště a přízemí jsou osvětleny hrstkou velkých otvorů; bohaté světlo vstupuje do polotemného prostoru, a vytváří tak klidný a důstojný dojem.

Konstrukce a materiály

Objekt je vytvořen z prostých materiálů jak v zevnitř, tak zvenku. Železobetonové trámy a sloupy vytváří čtvercovou síť o rozponu 10 metrů. Točité schodiště je železobetonové. Podlaha v přízemí je z leštěného betonu. V kancelářských patrech je tento povrch potom nahrazen linoleem. Příčky mezi kancelářemi jsou ze skleněných tabulí vysokých od podlahy po strop.

Všechny kanceláře jsou organizovány jako open space kolem jádra soukromějších pracoven a konferenčních místností. Jednoduchost schématu dovoluje různým asociacím různé uspořádání podle jejich preferencí a zároveň jim umožňuje sdílet zázemí s kancelářemi ostatních asociací, čímž podporuje spolupráci mezi různými institucemi, a dává tak možnost snížit jejich náklady.

  • Ateliér: baukuh
  • Země: Itálie
  • Město: Milano
  • Ulice, číslo: Via Federico Confalonieri 14
  • PSČ: 20124
  • Suma: 3 600 000.00
  • Měna: EUR
  • Datum projektu: 2011
  • Realizace: 2015
  • Užitná plocha: 2 500.00m2
  • Zastavěná plocha: 750.00m2
  • Poznámka: Foto © Giulio Boem, Stefano Graziani

Související ateliéry a firmy

Generální partner
Hlavní partneři