Jatka pro ostravské PLATO

Pozorování aktuálního stavu historické zástavby bývalých jatek bylo výchozím bodem pro hledání nejlepšího scénáře pro transformaci tohoto místa na centrum současného umění. Zachované zdi svědčí o historii tohoto místa, proto jsme se rozhodli zachovat někdejší zásahy a viditelná navrstvení. Masivní cihlové zdi byly kdysi perforovány (poškozeny) charakteristickými velkorozměrovými otvory. Místo toho, abychom je vyplnili cihlou a obnovili staré detaily, rozhodli jsme se tyto otvory zachovat, otevřít výstavní prostory do města a dát galerii PLATO zcela nové možnosti. Díky tomu bude „umění“ působit nejen uvnitř starých zdí, ale také směrem ven – pro širší veřejnost.
Hmoty / materiálová otevřenost
Při hledání způsobu renovace budov a obhospodaření prostoru kolem nich jsme se rozhodli, že nebudeme skrývat historii a nebudeme „pudrovat“ stavby, ale pouze vyzdvihneme unikátní charakter celého objektu s viditelnou historií jeho proměn. Nechceme obnovovat bývalé vestavby, ani navracet originální stav budov, jen doplnit další vrstvu k této výjimečné historii. Zdi budou renovovány, drobné úbytky doplněny cihlou, avšak všechny nové prvky, jak ty obnovitelné, tak projektované, budou „zhotoveny“ z nového materiálu - betonu. Charakteristické otvory, které zůstanou zachovány, budou uzavírány masivními, otočnými betonovými stěnami, ve kterých bude nedoslovně obnoven historický detail.
Stejným způsobem bude obnoven vrchol věže. Z betonu bude také nový povrch prostranství a případná nová stavba. Takový přístup, spočívající v přidání další, vizuálně sourodé vrstvy k této rozvětvené historii, má sloužit k vytvoření nové totožnosti místa za současného zachování úcty k jeho historii.
Urbanistika
Stávající zástavba a její centrální uspořádání na parcele, s volným prostorem kolem, tvoří negativ čtvrti. Využili jsme tento motiv - stavba nemá výrazně vyčleněnou čelní fasádu a celý objekt je dostupný ze všech tří stran, po celém obvodu. Za využití stávajících otvorů jsme navrhli vstupy do budovy ze strany ulice Porážková a Masná. Ostatní otvory, spojující výstavní prostor s vnějším prostorem, umožňují „angažovat“ celý prostor kolem budovy. Popředí kolem budovy jsme zachovali jako neutrální prostor, tvořící pozadí pro budoucí kulturní události (velkorozměrové prostorové instalace, koncertní pódium, atd.).
Betonový povrch prostranství se na spoji se sousedními budovami ohýbá a vede nahoru, přičemž uspořádává prostor a současně vytváří pozadí pro různé druhy představení a multimediálních projekcí. Prostranství nemá definovanou, předem určenou funkci - způsob jejího využití bychom měli ponechat fantazii a invenci umělců.
Funkční uspořádání
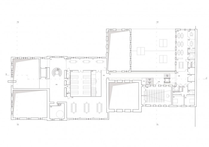
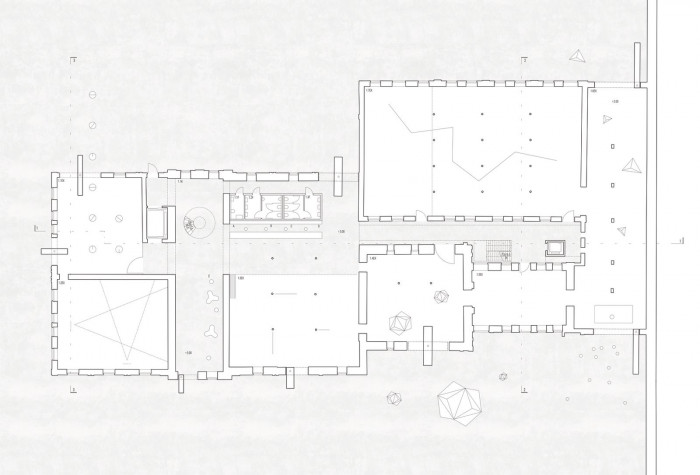
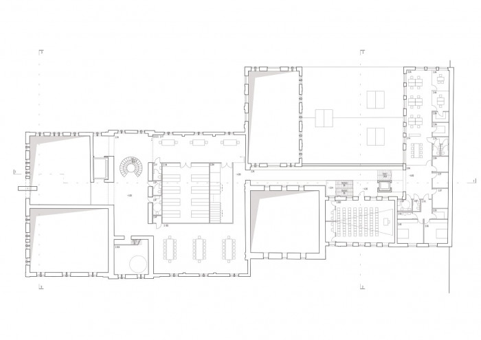
Projekt předpokládá čistou distribuci programu v oblasti stávající zástavby – přízemí stávajících hal budou adaptována na výstavní sály, dostupné ze vstupní haly a obecné komunikace. Díky možnosti dočasného otevření otočných zdí mohou být výstavní sály také příležitostně dostupné zvenčí – z prostranství kolem budovy. Ostatní funkce budou umístěny do 1. patra. Celek bude založen na jednoznačném, bezbariérovém, komunikačním systému, který bude tvořit prodloužení prostranství. Nová lávka na úrovni patra umožní spojení všech funkčních bloků (kanceláře, vzdělávací část, přednáškové sály a koncerty/vystoupení) a zajistí volný pohyb po celé budově. Dostupnost všech prostor má zdůraznit otevřený charakter instituce PLATO.
Výstavní prostor
Projekt směřuje k maximalizaci výstavní plochy, za současného zachování stávající struktury zástavby. Stávající budovy budou transformovány na výstavní sály, dostupné ze vstupní haly a komunikace. Sály mohou být vzájemně spojeny do řady a způsob prohlídky – nezávislý nebo „průchozí“ – bude záviset na přijatém scénáři. Výstavní prostor bude různorodý a bude vyplývat z individuálního charakteru jednotlivých interiérů.
Projekt předpokládá výměnu střech a nová konstrukce bude sloužit výstavní technologii - jak k instalaci pružného osvětlovacího systému, instalací, tak zařízení sloužících budoucím expozicím (kotvy, navijáky, atd., pro zavěšení těžkých objektů). Otevřenost, proměnlivost a adaptabilita má sloužit k exponování umění v jeho různých formách. Některé výstavní sály budou mít individuální systém zastínění, umožňující osvětlení jak přírodním, tak umělým světlem.
- Autoři: Robert Konieczny
- Ateliér: KWK Promes
- Země: Česká republika
- Město: Ostrava
- Datum projektu: 2017
Související architekti
Související ateliéry a firmy
Mohlo by vás zajímat
















