Mladý manželský pár, uchvátený oválnym priestorom tradičnej jurty, tužil po víkendovej chate pre seba a klietov svojho kreatívneho štúdia. Zároveň však potrebovali priestor pre ďalšie funkcie dennej potreby. Prekračili sme prvotnú myšlienku aditívneho prístupu a zvolili opačný postup. Namiesto dopĺňania primárnej hmoty o ďalšie objekty sme použili rotundový priestor jurty a umiestnili ho do ortogonálneho systému. Tým sme vytvorili hmotu elementárneho charakteru. Získané priestory sme využili pre funkcie dennej potreby.

Foto: EARCH

Predmetná parcela sa nachádza na severnom brehu Vojčianskeho jazera v obci Vojka nad Dunajom. Je prístupná zo severnej strany. Pozemok je prevažne rovinatý, smerom k jazeru sa svažuje.

Projekt víkendovej chaty neprekračuje maximálnu zastavanosť 20% pozemku a zohľadňuje požiadavku klienta pre komfortné ubytovanie 4 osôb.

Foto: EARCH

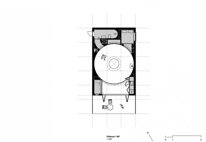
Jednopodlažný bungalov vychádza z centrálneho priestoru - jurty - s priemerom 5,6m. Tento priestor prekrýva drevená strecha s odhalenou konštrukciou a centrálnym okrúhlim svetlíkom. Zo severnej strany sa na dennú miestnosť napája spálňa a kúpeľňa. Z južnej strany sa nachádza vstupná časť, ktorá po stranách ukrýva kuchyňu a spací kút pre dve osoby. Tieto sekundárne funkcie obalujú a "chránia" centrálny priestor a transformujú kruhový pôdorys do obdĺžnika. Pred vstupom sa nachádza terasa o rozlohe 15m2, orientovaná smerom k jazeru.

Foto: EARCH

 

Foto: EARCH

Generální partner
Hlavní partneři