Kateřina Pohlová/ 2xpa + Pavel Podlipný - Rekonstrukce rodinného domu Chotutice

Ulice je plná takových domů, řadových domečků. Směrem k silnici jednopodlažních se sedlovou střechou. Hřebeny, kopírující ulici, uskakují vždy o pár decimetrů podle jejího průběhu, silnice je dlážděná. Směrem do zahrady jakákoliv jednota mizí, každý z domů je trochu přistavěn, ověšen dřevníky apod., původními, či novodobými, dá se říct, že to je poetické. Zahrada/pozemek je dost členitý, za domem je nejdřív úzká nudle, potom prostorná část se vzrostlými stromy.

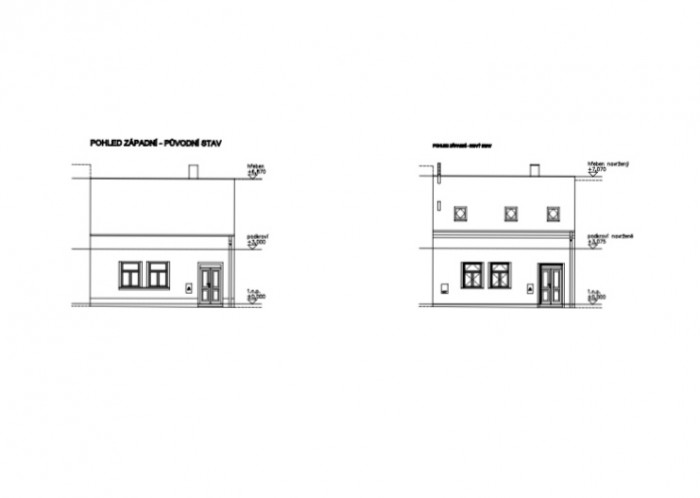
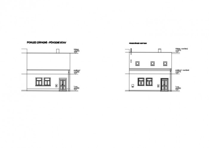
Na rozdíl od ostatních má náš dům původní okna „na výšku“, kazetové vchodové i vnitřní dveře, prkenné podlahy, obklady a dlažby. V tomhle domě se nic moc nezměnilo od té doby, co byl postaven. Trochu to vybízí k tomu „hodně ze současného ponechat a bydlet“, jenže při bližším ohledání je tahle varianta vždycky těžko proveditelná. Dům je třeba přizpůsobit současným potřebám. Rekonstrukce ale nezapomíná na původní dojem a poetiku prvních návštěv.

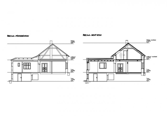
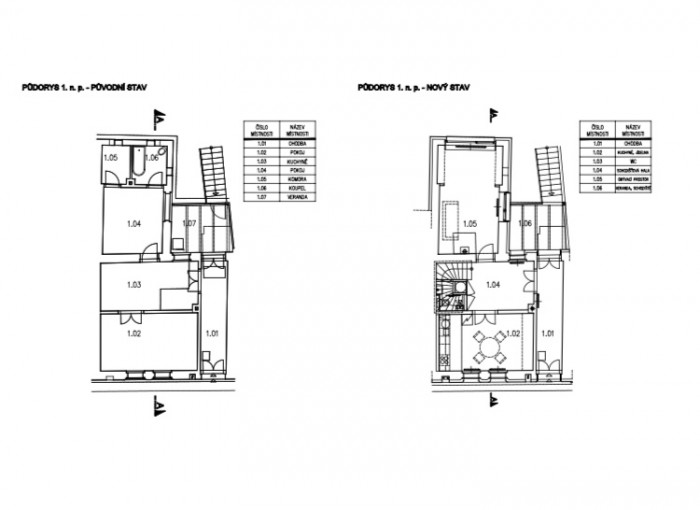
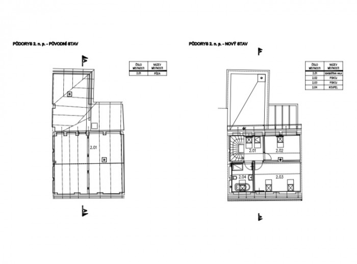
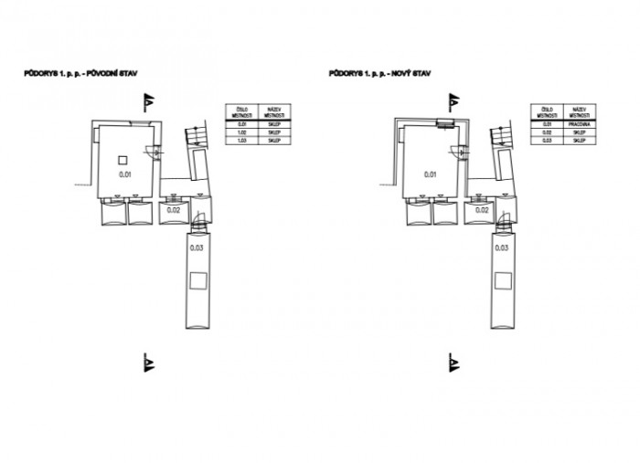
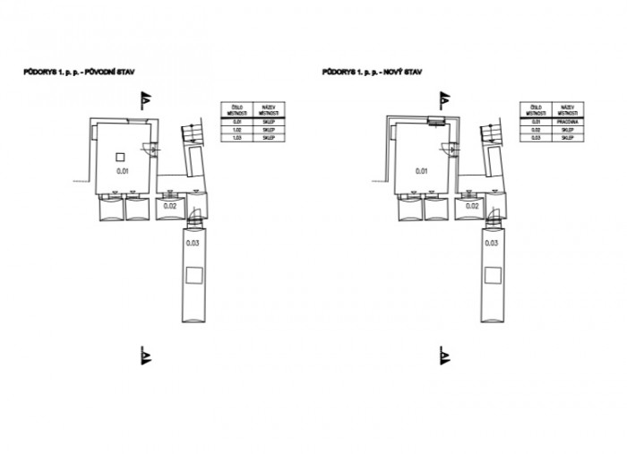
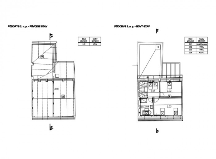
Přízemí je využito pro hlavní obytné místnosti. Kuchyně s jídelnou směrem do ulice. Obytný prostor směrem do zahrady, této místnosti dominuje okno s výhledem. Obě místnosti propojuje schodišťová hala. V tomto případě propojuje tak, že při otevřených dveřích vzniká jeden velkorysý prostor, tomu napomáhá i průběžná prkenná podlaha. Řešení je vlastně velkorysé, zároveň ale efektivní a ekonomické. Musí být, nízkým rozpočtem jsme značně omezeni, volíme cestu „kvalitního základu“ doplněného o to finančně dostupné. Schodiště vede do nově vybudovaného podkroví s pokoji a koupelnou. 

Zvenku jsou užity světlé omítky, na střeše bobrovky. Uvnitř smrková prkna. Některé z dlažeb jsou ponechány. Okna a dveře jsou přesnými kopiemi původních. Z decentního ladění vyčnívá nové betonové schodiště povrchově upravené červenou stěrkou.

  • Autoři: Kateřina Pohlová, Pavel Podlipný
  • Země: Česká republika
  • Realizace: 2019
  • Město: Chotutice
  • Datum projektu: 2017
  • Realizace: 2019
  • Zastavěná plocha: 95.50m2
Generální partner
Hlavní partneři