Kongresový sál PVA EXPO Praha

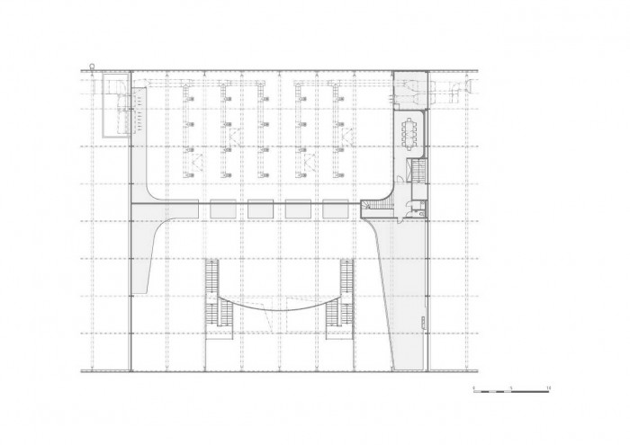
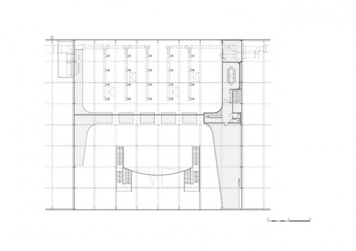
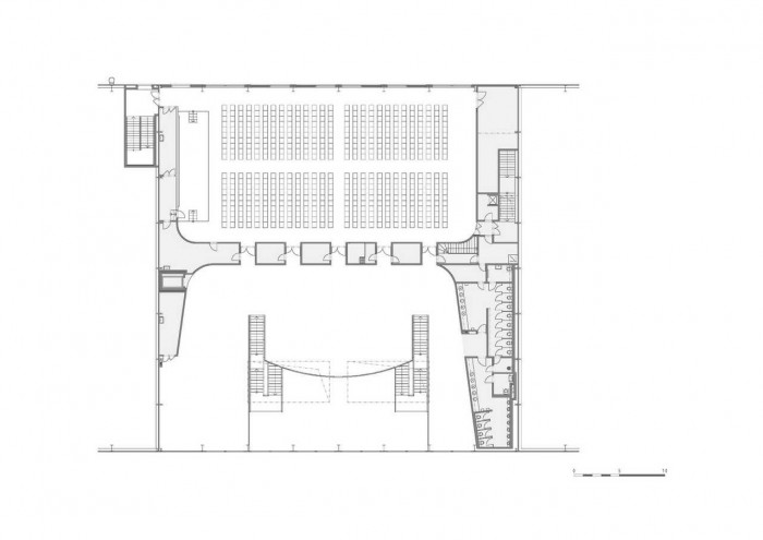
Nedávno dokončený výstavní objekt slouží jako nová brána do areálu PVA EXPO v Letňanech. Jeho součástí je i vstupní hala, která odbavuje větší část návštěvníků, poskytuje moderní zázemí pro celý areál a ukrývá v sobě kongresový sál pro 650 osob.
Na základě řady studií a variant jsme definovali jasně čitelný koncept, který se ve třech fázích zrealizoval. Jednoduchým vložením nezávislé a výrazově odlišné struktury do existující průmyslové haly redefinujeme její vnitřní prostor. Vznikají tak dva propojené a přesto velice odlišné světy – velkorysý foyer s otevřenou galerií a multifunkční kongresový sál.
První je otevřený, rušný, plný života a pohybu. Červená podlaha v kontrastu s bílým lesklým pláštěm a průmyslovými ocelovými nosníky tvoří výrazný a na první pohled snadno zapamatovatelný obraz.
Prostor sálu je naopak záměrně tlumenější a nechává tak vyniknout tomu co se v něm děje. Příjemný dojem podporuje kvalitní akustické řešení, stmívatelná svítidla, měkký koberec a jednoduchá černo-bíla barevnost.
Propojení je realizováno pomocí pěti lapidárních zářezů v rytmu stávající konstrukce haly. Zjednodušují orientaci, průstupnost a přes velkoformátové prosklení nechávají přehlédnout nerušeně celý prostor.
Navrhovaný objekt obsáhne veškeré nutné zázemí, VIP skybox, skladové plochy, podružné provozy a technologie. Zároveň umožňuje proměňovat výraz a charakter obou hlavních částí pomocí multimediální projekce na svůj bílý hladký plášť.
Objekt je tvořen nosným stěnovým systémem z tenkostěných profilů opláštěných sádrovláknitými deskami a finalizován nátěrem. Propojení s přízemím zajišťuje dvojice subtilních ocelových schodišť a velkoprostorový evakuační výtah.
- Autoři: Vojtěch Kaas, Jan Kalivoda
- Ateliér: Progres architekti
- Země: Česká republika
- Město: Praha 9 - Letňany
- Ulice, číslo: Beranových 667
- PSČ: 190 00
- Realizace: 2015
- Užitná plocha: 1 610.00m2
Související projekty
Související architekti
Související ateliéry a firmy
Mohlo by vás zajímat



















