Létající inženýři - Společenské centrum dobrovolných hasičů Lisovice
Lisovice jsou částí obce Chrást, leží jižně od Příbrami, směrem na Březnici, východně od Chrástu. V Lisovicích žije asi 40 trvale hlášených obyvatel ve 12 obytných domech a 8 domů je rekreačních. Objekt dobrovolných hasičů byl postaven na místě dosluhující hasičské zbrojnice v centru obce Lisovice, na návsi se dvěma vzrostlými lípami a božími muky, které jsou s radostí do návrhu zakomponovány, třetí lípa byla vysazena. Novostavba je svým objemem a tradiční formou začleněna do vesnické zástavby s použitím současných materiálů (velkoformátové prosklení v dřevohliníkových rámech, předzvětralý titanzinek) v kombinaci s tradičními materiály (místní kámen, modřínové dřevo).
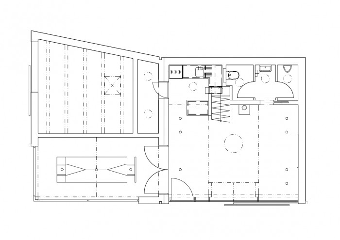
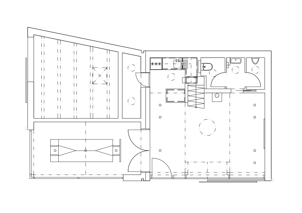
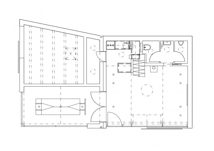
Funkčně a objemově je budova rozdělena do dvou hmot se sedlovými střechami, které vytvářejí jeden prostorový celek. V prvním objektu je klubovna dobrovolných hasičů. Ve druhém objektu se nachází výstavní plocha pro chloubu dobrovolných hasičů historickou stříkačku Máňu a sklad.
Severní část objektu je řešena jako dřevostavba, jižní část je zděná. Fasáda zděné části je tvořena kamenným zdivem s výrazným rohovým prosklením výstavního prostoru a garážovými vraty do skladu. Fasáda dřevostavby je zčásti omítnuta, zčásti opláštěna titanzinkovým plechem. Stavba je zastřešena dvěma sedlovými střechami. Střešní krytina je z předzvětralého titanzinku.
HISTORIE SPOLEČENSKÉHO ŽIVOTA V LISOVICÍCH
V době před výstavbou nového objektu byl společenský a kulturní život v Lisovicích značně omezen. Původní požární zbrojnice plnila pouze funkci skladu, bez možnosti dalšího využití. Společensko-kulturní život v obci nebyl přes zimní období téměř žádný, začínal až na jaře pálením čarodějnic a stavbou májky, pokračoval letním volejbalovým turnajem na obecním hřišti a končil zahájením adventního období s posezením v jedné větší garáži místního občana. Zde také vznikla myšlenka, postavit v Lisovicích klubovnu, kde by bylo možné různá setkání důstojně realizovat.
Po dokončení nového centra dobrovolných hasičů se kulturní život v obci rozvinul. V „Hasičárně“, jak místní občané stavbu nazývají, se koná řada společenských akcí, které vítají zejména starší spoluobčané, kteří by už jinak nikam nevyrazili. Kromě již zmíněných zavedených tradičních setkání zde probíhá i řada dalších. Některou neděli se zde otevírá „Nedělní kavárna“, s dobrou kávou a napečenými dobrotami místních. Jindy zase ochutnávka moravských vín, nebo lampionový průvod s oslavou. Začátek března je vyhrazen pro dámský klub. Pořádají se zde různé turnaje v šipkách, kartách, případně zde příznivci sportu společně sledují v televizi sportovní přenosy. V době Velikonoc se schází dospělí s dětmi a pletou pomlázky nebo malují vajíčka, před Vánoci zase připravují vánoční ozdoby a na Silvestra se všichni veselí. Objekt se také s oblibou využívá na soukromé rodinné oslavy. Pro běžná menší setkání je v klubovně připraveno cca. 25 míst k sezení, která se na větší akce rozšiřují až na 45 míst, ve spojení s přilehlou výstavní místností historické stříkačky.
PROSTOR
Interiér Společenského centra dobrovolných hasičů je rozdělen do dvou funkčních celků. Výstavní místnost je propojena velkými skleněnými výkladci s exteriérem a zároveň s klubovnou. Exteriér, výstavní místnost a klubovna tak vytváří jeden prostorově propojený celek. Klubovna s malou kuchyňkou a hygienickým zázemím je rozšířena o vloženou dřevěnou galerii přístupnou mlynářskými schody, na které se dá příležitostně i přespat.
Podlaha přízemí je materiálově sjednocena cementovou stěrkou, která se vizuálně opakuje jako pohledová stěrka na štítové stěně, na stěnách schodiště a v hygienickém zázemí. Podlaha ve výstavní místnosti má svůj příběh. Na večírku před finalizací stěrek udělalo vylité červené víno na podlaze skvrny a tak bylo rozhodnuto podlahu dobarvit dalšími rozlitými lahvemi. Tak má stěrka pod Máňou originální odstín, je z odrůdy Cabernet. Ostatní stěny a šikmé podhledy tvoří dřevěná podlahová prkna v přírodním odstínu. Ocelová svařovaná konstrukce schodiště a zábradlí galerie mají černošedý nátěr. Mobiliář je vyroben na míru místním truhlářem, dřevěné variabilní stoly z masivu jsou doplněny lehkými plastovými červenými židlemi. Uspořádání se mění podle společenských akcí.
Z původní hasičárny se zachovala plechová tabule s nápisem Hasičská zbrojnice a ta je umístěna ve výstavní místnosti.
- Autoři: Michal Mihalčík, Jana Strachotová
- Ateliér: Létající inženýři
- Země: Česká republika
- Město: Chrást
- Ulice, číslo: Lisovice, 785, 788
- Realizace: 2018
- Stavebně technické řešení: Ateliér PS, Příbram
Související projekty
Související architekti
Související ateliéry a firmy
Mohlo by vás zajímat