Loft Hřebenky

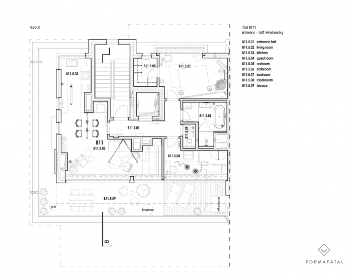
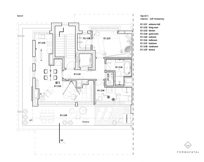
Rezidenční byt se rozkládá na ploše 85 m2 a k němu ještě náleží padesátimetrová terasa s překrásným výhledem. Výtahem se můžete svést přímo do bytu.
Architektka se k zakázce dostala relativně včas, a tak se jí podařilo zrušit dodávku všech standardů pro vybavení bytu, které prodejce nabízel. Z hlediska celého konceptu interiéru byly všechny standardy nežádoucí.
„Je pro mě tolik nepochopitelné, proč u nás stále většina novostaveb bytových domů doslova srší nevkusem.“
Nevyhnuli jsme se drobným stavebním úpravám (rozvody elektroinstalací, úpravy velikosti stavebních otvorů, rozvody vody a odpadů, drobné přizdívky atd.). Prvním krokem bylo odstranění sádrových omítek na stropech obytných místností a na stěnách v kuchyni. Odkryté betonové prefa dílce dávají celkové atmosféře bytu na jakési surovosti a podtrhují industriální charakter návrhu.
Na podlahách jsou v celém prostoru industriální cementové stěrky. Prosklené dveře v ocelových rámech jsou vyrobeny na zakázku dle autorského návrhu architektky a plné dveře se skrytou zárubní na sebe naopak nemají strhávat pozornost, na stěnách se téměř ztrácí. Celý interiér architektka dotahovala do sebemenších doplňků a dekorací od návrhu polštářů až po výběr zeleně, povlečení nebo ručníků.
Majitel bytu architektce zcela důvěřoval a pro navrhování interiéru dostala téměř absolutní svobodu. Jediným omezením byl rozpočet.
„Nevím proč, ale nejlépe se mi navrhují interiéry pro muže, ať už byty nebo kanceláře.“
- Autoři: Dagmar Štěpánová
- Ateliér: Formafatal
- Země: Česká republika
- Město: Praha 5 - Smíchov
- PSČ: 150 00
- Datum projektu: 2015
- Realizace: 2016
- Užitná plocha: 85.00m2
- Foto ©: BoysPlayNice
Související projekty
Související architekti
Související ateliéry a firmy
Mohlo by vás zajímat



























