Machar & Teichman - Rodinný dům Praha - Čimice
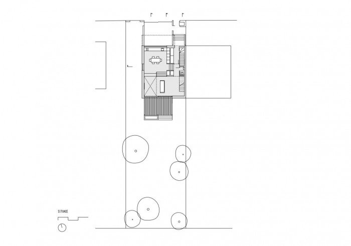
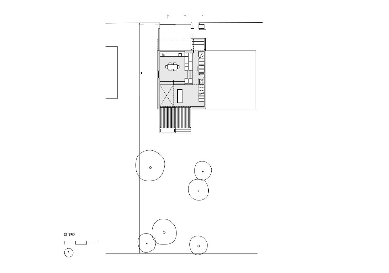
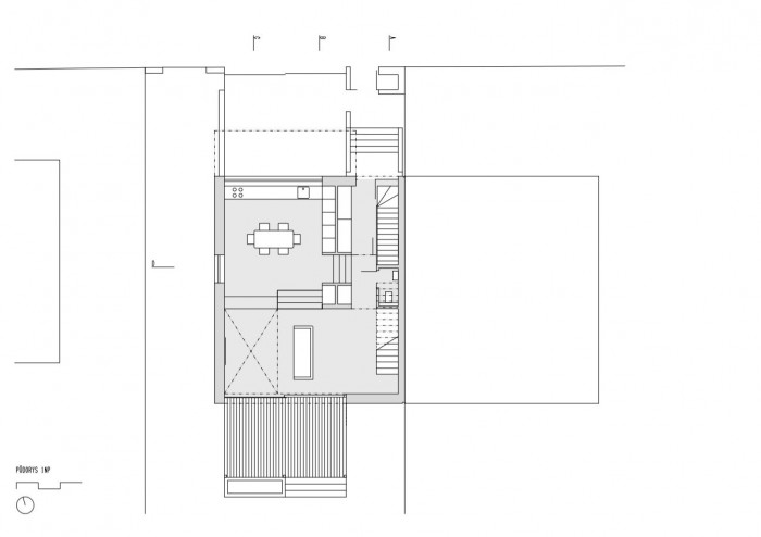
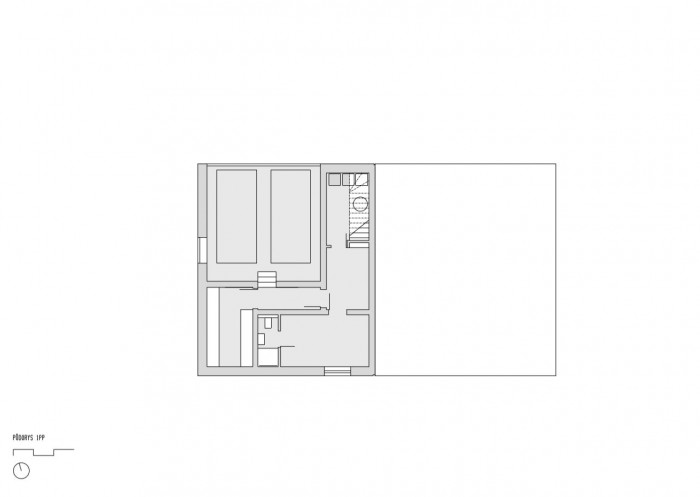
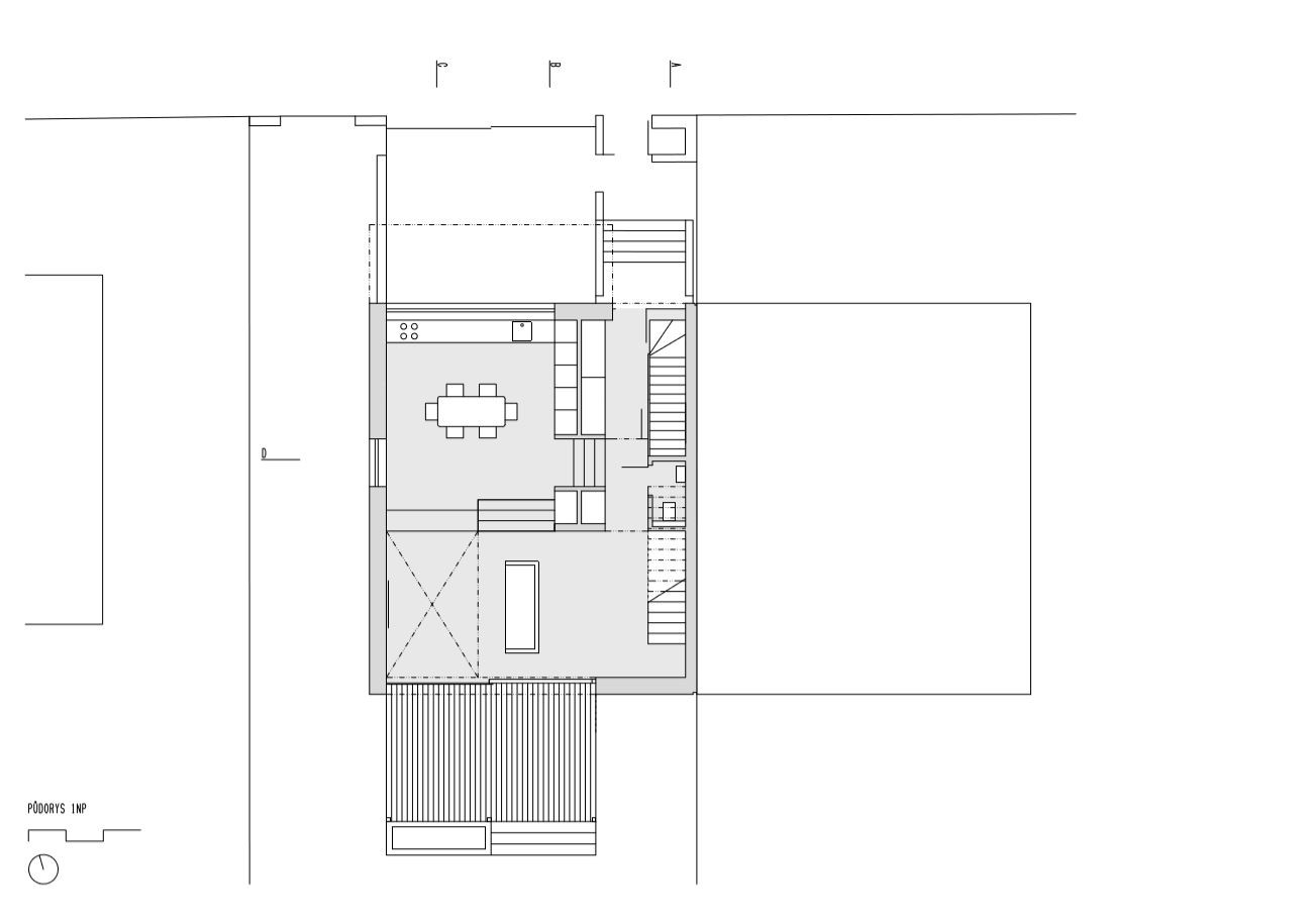
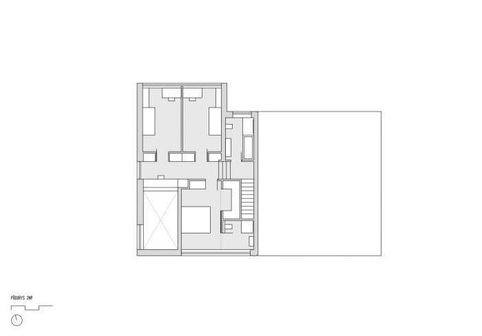
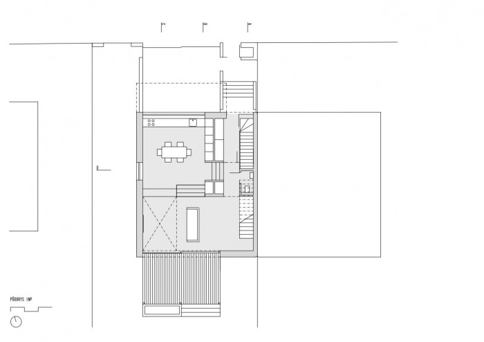
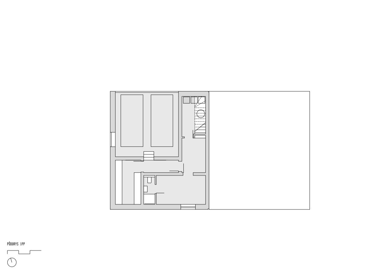
Klíčovou snahou návrhu bylo vytvoření volně plynoucího vnitřního prostoru jak v horizontální rovině - od vstupu směrem k zahradě, tak ve vertikálním směru - od obytného prostoru k ložnicím a pracovně v patře. Maximalizován byl prostor sdílený, volně plynoucí, vybízející ke komunikaci na úkor chodeb a uzavřených místností.
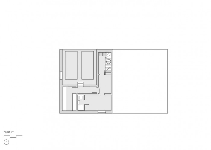
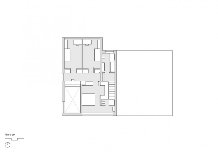
Při komponování otvorů do hmoty domu hrála roli orientace ke světovým stranám. Velké posuvné okno do jižní zahrady rámuje výhled z obýváku, čtvercový otvor v horním rohu převýšeného obytného prostoru se otevírá západnímu slunci a horizontální okno při snížení střechy ve druhém patře umožnuje jižnímu slunci osvětlit horní pracovnou.
Konstrukčně jde o zděný dům s vloženým železobetonovým “objektem” druhého patra, který je vynesen stěnovým nosníkem na výšku hlavní ložnice. Zdivo je vždy omítnuté, beton přiznaný.
Diagonální zalomení objektu druhého patra je reflektováno posunem ve výškovém uspořádání. Kuchyně s jídelnou je kvůli lepšímu výhledu do zahrady výše než obývací pokoj, na to navazující vertikální posun úrovně stropů v horním patře umožňuje vizuální propojení osluněné pracovny s hlavním obytným prostorem.
Součástí projektu byl návrh vestavěného interiéru na míru. Nábytkové prvky hrají důležitou roli v členění obytného prostoru. Na obývák navazuje pobytová dřevěná terasa směrem do zahrady. Oplocení do ulice kombinující beton a dřevo se snaží kultivovat veřejný prostor.
- Autoři: Pavel Machar, Radek Teichman
- Ateliér: Machar & Teichman
- Země: Česká republika
- Město: Praha - Čimice
- Datum projektu: 2015
- Realizace: 2019
Související projekty
Související architekti
Související ateliéry a firmy
Mohlo by vás zajímat