Machar & Teichman - Bytové domy Bleriot

Bytový soubor Bleriot v Pražských Kbelích je situován západním směrem od ulice Polaneckého jako součást širší transformační zóny v dochozí vzdálenosti od stanice Metra Letňany. Na stávající územní rozhodnutí definující hmotové řešení soboru navázala kancelář Machar & Teichman návrhem jednoduchých soudobých bytových domů.
Tři nově navržené bytové domy mají horizontální členění, na západních fasádách umocněné o průběžné prostorné lodžie s výhledem do zeleně. Domy jsou diferencovány doplňkovou barvou ve zlatavém, niklovém a měděném odstínu, která se uplatňuje jak na perforovaných stínících panelech západních fasád, tak na zábradlích balkonů a vnitřních schodišť veřejných prostor jednotlivých domů.
Konstrukčně se jedná o příčný nosný systém s keramickými vyzdívkami, okna jsou dřevěná, fasáda světlá v kombinaci s ručně drážkovanými vodorovnými pásy a barevnými akcenty v rámci ustoupených podlaží, kde vznikají velkorysé terasy střešních bytů.
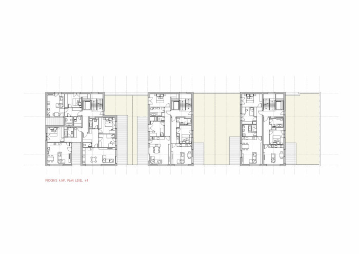
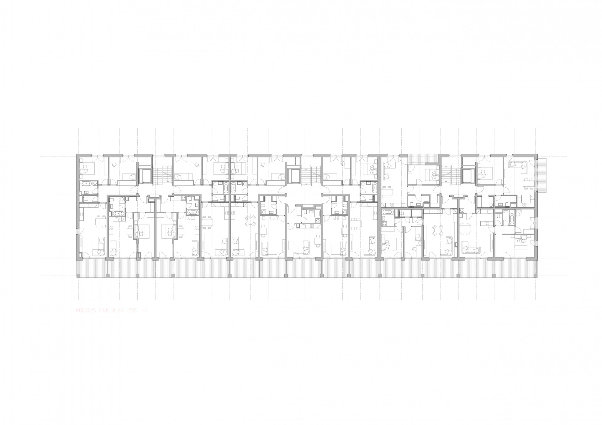
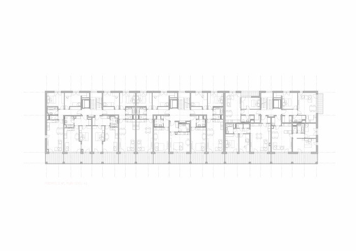
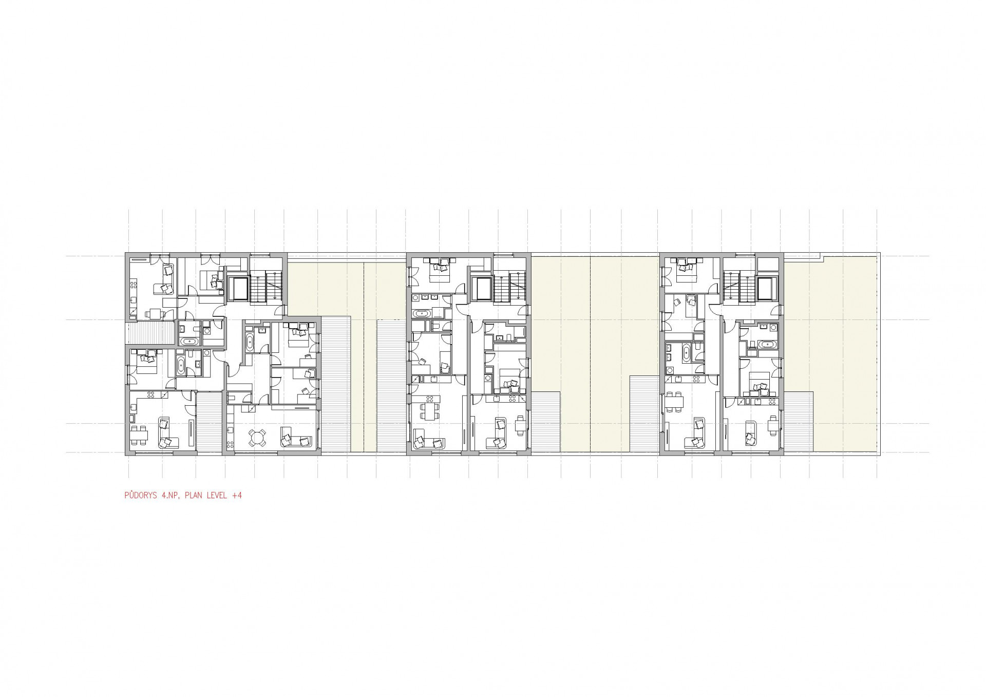
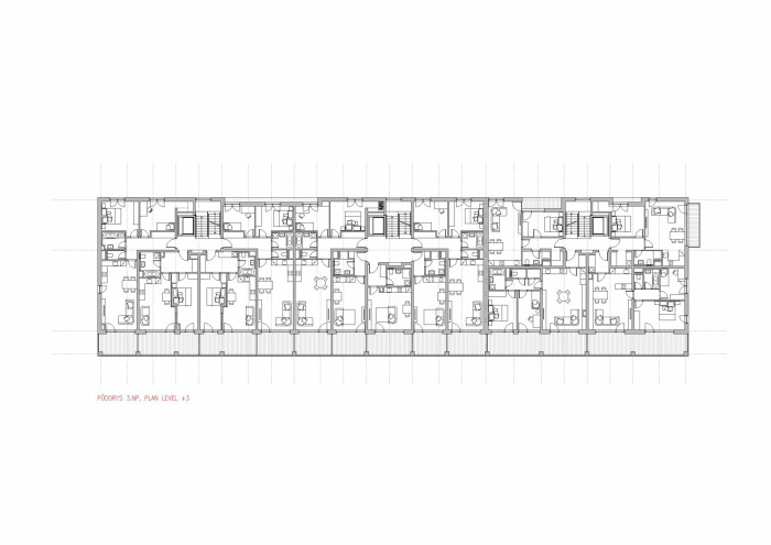
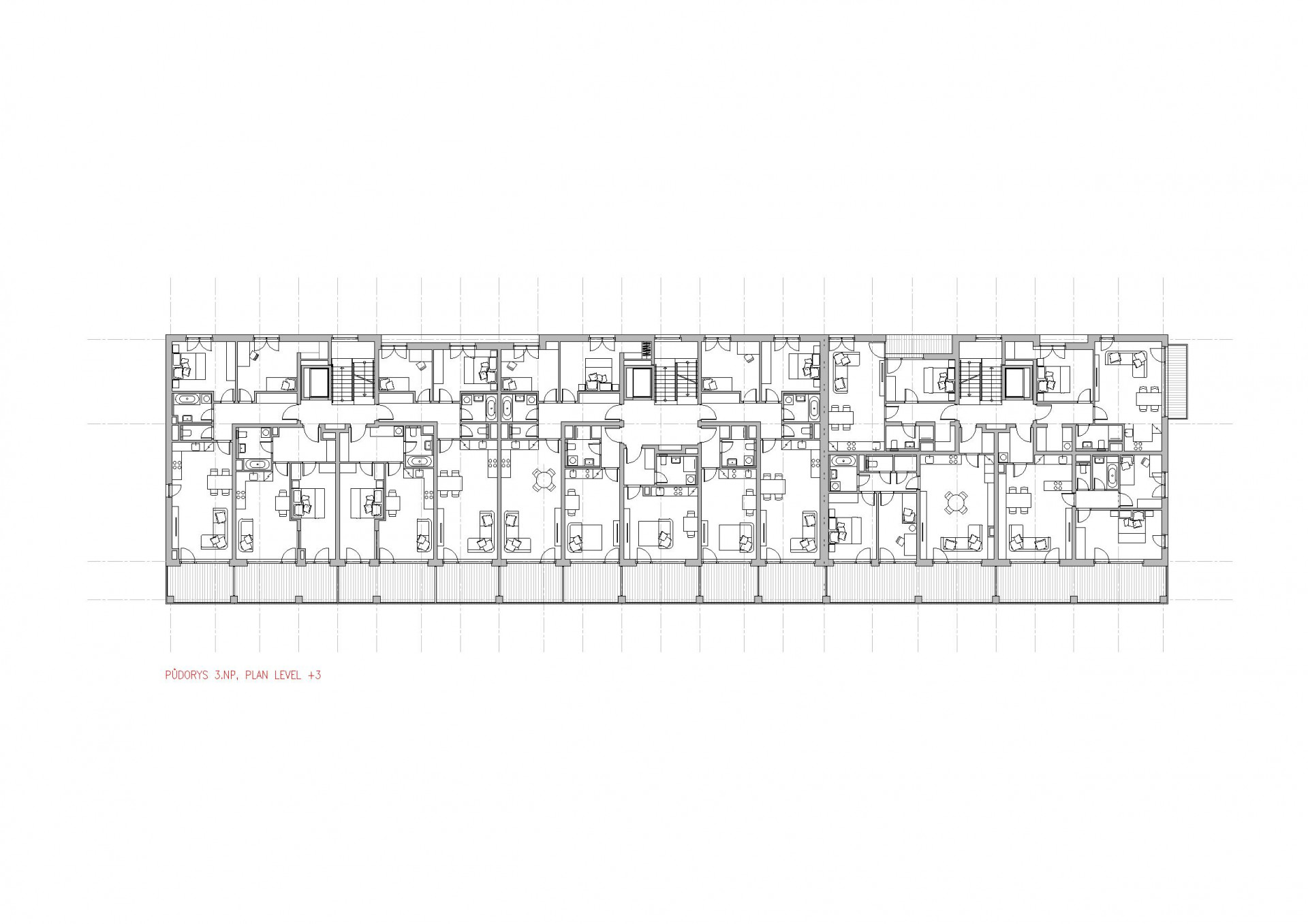
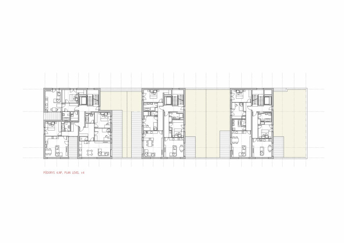
Dispozičně se jedná o kombinaci bytů od 1kk po 3kk v typických patrech s většími byty v rámci ustoupených pater. V rámci přízemí jsou k bytům připojeny předzahrádky. Parkování je řešeno v suterénu domů.
Snahou ateliéru bylo v rámci omezeného rozpočtu soudobé developerské výstavby vytvoření nadčasové, jednoduché a účelné architektury sloužící svým uživatelům a zároveň nabízející kvalitní prostředí sdílené zeleně.
- Autoři: Pavel Machar, Radek Teichman
- Ateliér: Machar & Teichman
- Spolupráce: Tomáš Klubal, Atelier Habina
- Země: Česká republika
- Spoluautor: Kateřina Margoldová
- Město: Praha - Kbely
Související projekty
Související architekti
Související ateliéry a firmy



















