Machar & Teichman - Dům se stodolou na Vysočině
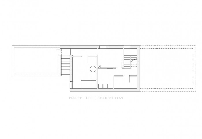
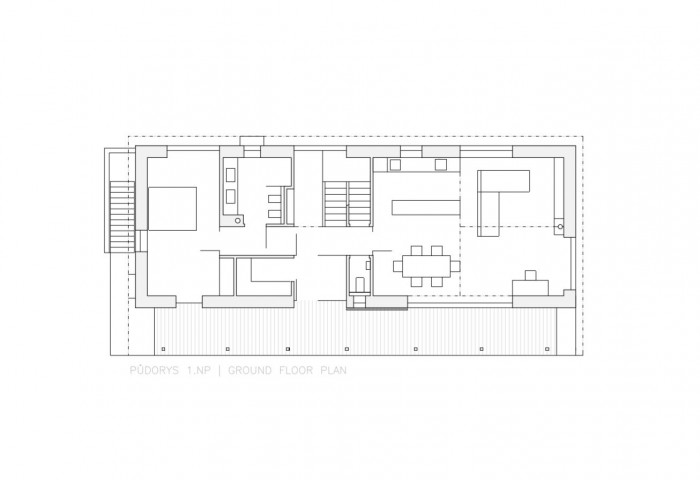
Pozemek leží na hraně svahu v centru malé obce na Vysočině. Na půdorysné stopě bývalého statku vznikl dům a stodola. Dům má podél jihozápadní fasády kryté zápraží, vstupuje se středem půdorysu s průhledem na rybník. Obytný prostor s kuchyní je částečně otevřený do krovu, je v něm krb, výseky krajiny vstupují dovnitř velkými nedělenými okny. Na levé straně přízemí je hlavní ložnice. Schodišťová hala je v těžišti domu a propojuje přízemí s ochozem v podkroví, kde jsou další dva pokoje s koupelnou.
Interiér na míru byl realizován příbuzným majitele a je řešen v bílé barvě doplněné o modřínové a dubové dřevo. Vizuální klid krajině nekonkuruje. Technické prostory se nachází ve sklepě, vytápění je pomocí kotle na pelety. Na sklep navazuje cihlový klenutý sklípek navržený stavitelem. Vedlejší stodola slouží pro parkování a skladování. Dům byl postaven místním zedníkem podle jednoduché dokumentace a je tvořen z keramického zdiva bez zateplení a s ručně tahaným štukem. Dřevo je uplatněno například na stropní konstrukci a modřínových rámech oken. V domě majitel bydlí i pracuje.
- Autoři: Pavel Machar, Radek Teichman
- Ateliér: Machar & Teichman
- Spolupráce: Štěpán Svačina
- Země: Česká republika
- Datum projektu: 2014
- Realizace: 2017
- Foto ©: Peter Fabo
Související projekty
Související architekti
Související ateliéry a firmy
Mohlo by vás zajímat