majo architekti - Pavilon IMPAKT MFF UK

Autoři návrhu si kladli za cíl, aby architektura nového pavilonu souznila s architekturou celého areálu MFF, který navrhl před více než 50 lety Karel Prager. Původní tvarosloví nebylo možné ani vhodné doslovně kopírovat, šlo spíše o hledání vnitřních souvislostí a odkazů. Z toho důvodu má dům fasádu z titanzinku, která díky příměsím mědi podobně jako opakní sklo na okolních objektech výrazněji mění své zabarvení v závislosti na světelných podmínkách. Interiérová stěna z jasanových latí, která vede návštěvníka od vstupu až k velké posluchárně, je zase odkazem na původní keramický obklad poslucháren T1 a T2, které se nacházejí v původních budovách areálu. 

Pavilon IMPAKT MFF UK, majo architekti / Jan Jaroš, Štěpán Jablonský © Jiří Alexander Bednář

Autoři dále chtěli, aby architektura pavilonu v sobě nesla něco z oborů, kterým měla od počátku sloužit. Podobně jako je matematika obor navenek přísný, možná trochu odtažitý, uvnitř ale čistý a krásný, jdoucí k podstatě věci, tak i nový pavilon IMPAKT aspiruje na podobnou dichotomii mezi přísným, tmavým exteriérem, a tvarově čistým, světlým interiérem, který návštěvníka nezahlcuje množstvím detailů, ale pracuje se základními ingrediencemi architektury - prostorem a světlem. 

Pavilon IMPAKT MFF UK, majo architekti / Jan Jaroš, Štěpán Jablonský © Jiří Alexander Bednář

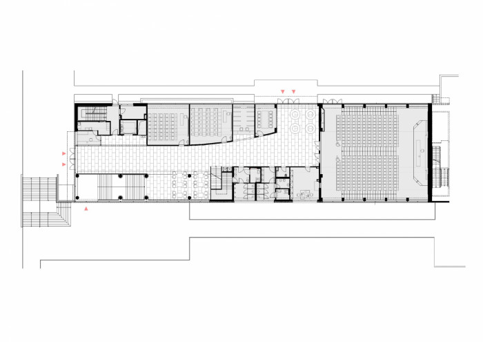
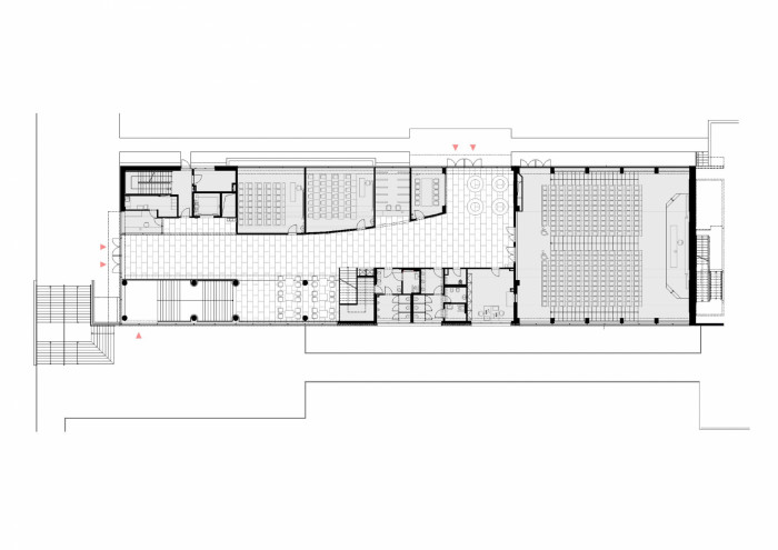
Autoři dále chtěli, aby dům byl v rámci své jednoduché hmoty co nejvíce pavilonem v zeleni. Aby, ač v zásadě triviální trojtrakt, poskytoval co možná největší kontakt s vnějším prostředím. Proto má dům hlavní vstup ve dvou úrovních a proto jsou příčky do učeben prosklené, takže když člověk stojí uprostřed chodby ve 3.NP, vidí hned do všech čtyř světových stran a vystoupí-li do čtvrtého patra, otevře se mu nad hlavou nebe.

Pavilon IMPAKT MFF UK, majo architekti / Jan Jaroš, Štěpán JablonskýFoto: Jiří Alexander Bednář

Pavilon IMPAKT MFF UK, majo architekti / Jan Jaroš, Štěpán JablonskýFoto: Jiří Alexander Bednář

Pavilon IMPAKT MFF UK, majo architekti / Jan Jaroš, Štěpán JablonskýFoto: Jiří Alexander Bednář

Pavilon IMPAKT MFF UK, majo architekti / Jan Jaroš, Štěpán JablonskýFoto: Jiří Alexander Bednář

Pavilon IMPAKT MFF UK, majo architekti / Jan Jaroš, Štěpán JablonskýFoto: Jiří Alexander Bednář

Generální partner
Hlavní partneři