MAJO: Dům s hnízdem

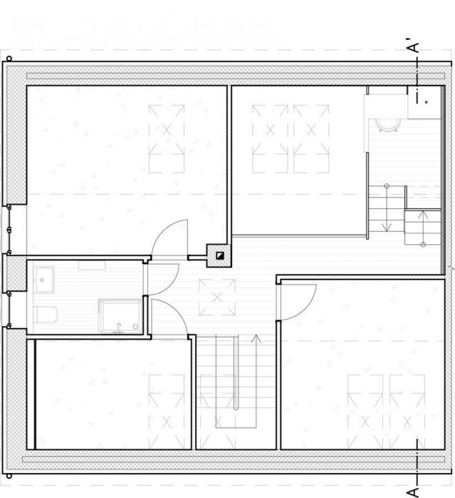
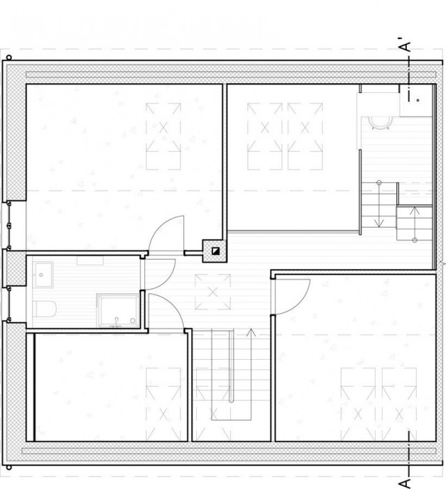
Rekonstrukce rodinného domu v Kladně - Rozdělově. Dům v ulici Antonína Fouska z počátku 20. století je součástí dělnické kolonie podobných domků. Původní dispozice nevyhovovala dnešním požadavkům na bydlení, a proto rekonstrukce započala vybouráním všech vnitřních konstrukcí, takže z domu zůstala jen skořápka (obvodové zdi, střecha) a jedna vnitřní nosná zeď.
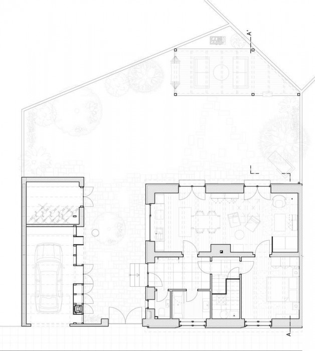
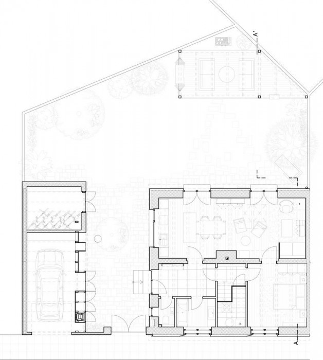
Centrem navržené dispozice je převýšený obytný prostor s kuchyní, jídelnou a dřevěnou vestavbou, který je novými francouzskými okny propojen se zahradou. Ložnice a koupelna jsou orientovány do ulice, dětské pokoje s kouplenou jsou v podkroví. Součástí návrhu je i nová garáž, zahradní altán a úpravy zahrady (zatím nerealizováno).
Během návrhování a realizace byl zvláštní důraz kladen na kvalitu použitých materiálů a řemeslné práce - okna jsou dřevěná s tyrkysovým nátěrem, podlahy jsou jasanové (obytný prostor, ložnice), teakové (koupelny, wc), smrkové (podkroví, schodiště), v zádveří je použita dlažba (Apavisa). Parapety a kuchyňská pracovní deska jsou z olejované dubové spárovky, většina nábytku je rovněž z dubu. Zábradlí jsou ocelová, černě natřená. Vystupující hmota komínu je zvýrazněna lakovanou cementovou stěrkou; stejná povrchová úprava je použita na wc a v koupelnách. Kuchyně je z bíle lakovaných MDF desek, dvířka horních skříněk ze smrkové biodesky.
Nejzajímavějším prvkem interiéru je nepochybně dřevěná vestavba v obytném prostoru, které se začalo říkat "hnízdo", a která plní vícero funkcí. Vespod je umístěno na míru vyrobené sofa, nad ním je pracovna, pod schody čtenářský kout s knihovnou, úplně nahoře pak spací patro. Pracovna je s přízemím spojena požární tyčí, po které se dá snadno sjet a fyzicky zdatnější jedinci po ní mohou šplhat. Celé hnízdo je tvořeno konstrukčními smrkovými deskami Novatop. Nesnadné (a do jisté míry experimentální) realizace na hranici mezi truhlářskými a stavebními pracemi se nakonec úspěšně zhostila firma Interiéry Lapka, jejíž řemeslníci mají velkou zásluhu na zdařilém výsledku celé rekonstrukce.
Nábytek a svítidla byly vybrány s ohledem na materiálové a barevné řešení celého interiéru. Pohodu domova zajišťují krbová kamna a mandala přivezená z cest po Tibetu.
- Ateliér: majo architekti
- Země: Česká republika
- Město: Kladno 4 - Rozdělov
- Datum projektu: 2012
- Realizace: 2014
- Užitná plocha: 129.00m2
- Zastavěná plocha: 93.00m2
- Materiál: dřevo
Související projekty
Související ateliéry a firmy
Mohlo by vás zajímat






















