Marcela Steinbachová & Steven Holl - Terezín: Muzeum Ghetta

Terezín, barokní město vystavěné jako pevnost, svědek historických událostí, které nelze zapomenout. Pevnost s ortogonálním řádem bloků a ploch parků, pevně obepnutá zavinutým hvězdicovitým opevněním.
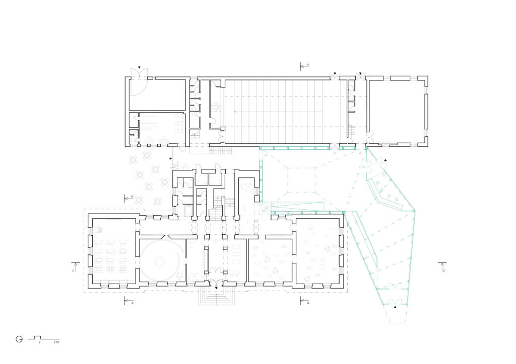
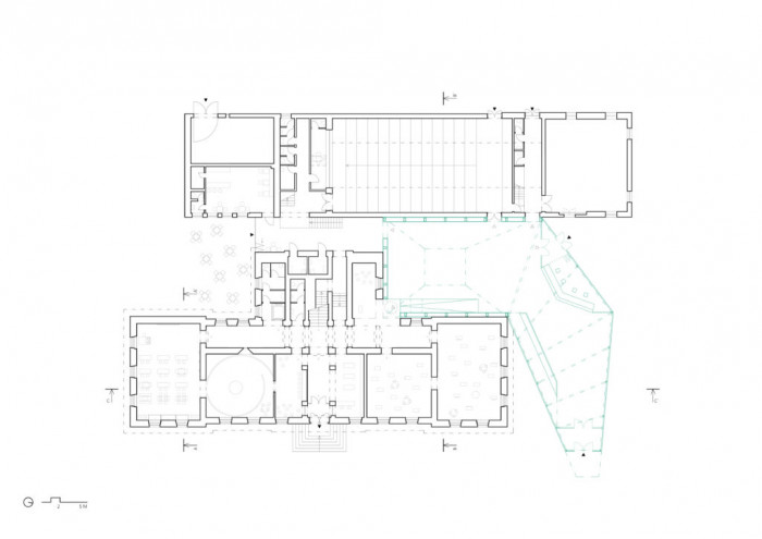
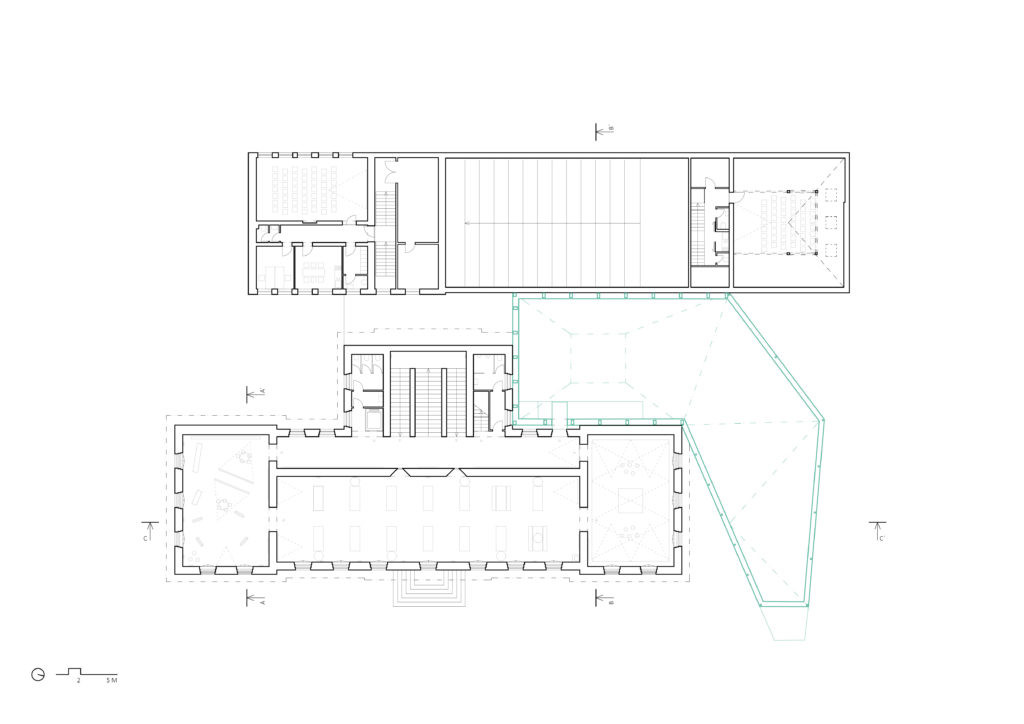
Uprostřed se nachází Muzeum Ghetta jako svědek minulých životů a tragédií, ale i odvahy a naděje. Je místem nejen vzpomínání a paměti, ale nově i současného života a směřování a poučení z historie. Bývalá škola se v návrhu sama stává exponátem a je doplněna novým funkčním řešením, nově akcentujícím významné hodnoty i výzvy, ale i počty návštěvníků objektu.
Transformace místa, obraz naděje a světla. Nevinný obraz Měsíční krajina terezínského mladého vězně Petra Ginze, symbolizující naději z bezvýchodné situace i nadhled, se stal inspirací pro náš návrh. Tower of Light je prostorem světla, jasným a expresivním vyjádřením tématu i provozních požadavků. Směřuje vzhůru, do nebe, za světlem, za nadějí. Nabízí ztišení, prostor pro vzpomínání i prostor pro vnímání a meditaci nad posvátností samotného života a sílou i křehkostí humanistických idejí. Tato důležitost naděje a světla je v ontologickém smyslu slova základem návrhu pro Muzeum Ghetta Terezín. Tower of Light jako maják naděje zářící mezi okolními domy do tmy. Naděje v lepší svět. Jde o místo imerze - vnímání emocí, ponoření se, vžití se do atmosféry či tématu muzea.
Nově navržený velkorysý vstup jemně reaguje na okolní kontext, navazuje na střešní krajinu města se šikmými střechami a přirozeně ji doplňuje. Postupně se zvedá od Jiráskových sadů až k terezínským římsám, svou hlavní hmotou nepřevyšuje hladinu městské zástavby. Jehlanovité transparentní zakončení přirozeně doplňuje ostatní vertikály v okolí, aniž by konkurovalo významu a dominantně kostela. Měděnou krytinou pláště a střechy koresponduje se stavbami důležitého charakteru ve městě. Doplňuje urbanismus a ukazuje na významnou část historie, která by neměla být zapomenuta. Přináší symbol života do města, otevírá se současným impulzům a novým návštěvníkům různých generací. Vytváří reprezentativní vstup do muzea, prostorově řeší provozní vazby všech jeho objektů a nově odbavuje i větší skupiny návštěvníků.
Nový vstupní prostor nabízí velkorysý a dostatečně přehledný přístup do všech částí muzea včetně nové kavárny. Vybízí ke konání zahájení výstav, koncertů, přednášek či shromažďování návštěvníků a hostů. Umožňuje ponechat bývalou školu jako samotný vystavovaný exponát obsahující vlastní expozice. Budova školy je v návrhu celkově citlivě zrenovována s velkým důrazem na obnovu všech povrchů a původních prvků. Sama vypráví příběh a jemnou vrstvou odkrývání povrchů odkazuje ke své historii.
Výstavní místnosti jako prostory pro příběhy a opakování jako připomínání. Repetitivnost jednoduchého tvarosloví v expozici (školní lavice, výstavní fundus jako kvádr) a exteriéru (geometrické sochařské prvky v parku) jako vědomé připomínání tématu (paměťová insti tuce) a cesta, jak se odpoutat od formy a soustředit se na její obsah, na naléhavost sdělení. Repetitivnost navozuje pocit srozumitelnosti a snazší orientace v prostoru. Možnost využití materiálu z terezínských stromů pro výstavní fundus (paměť místa) a participativní zapojení návštěvníka jako aktéra a ne pouhého diváka skrze interaktivní části expozice (hologramová projekce, dotykové obrazovky, poslechové zvony, světlená instalace v podkroví, ad.)
Střecha nového vstupu i část fasád je pokrytá plechovou měděnou krytinou, zoxidovanou do zelena. Tento materiál akcentuje významnou veřejnou stavbu podobně jako kostely, věže budovy pošty nebo městského úřadu, divadla apod. Použitím tří typů zasklení vkládáme do městského prostoru materiálový prvek symbolizující otevřenost a prostupnost, komunikaci - zcela v duchu moderního pojetí veřejných staveb, které mají evokovat službu veřejnosti. Čiré zaslení u vstupních dveří a ve světlíku, mléčné ze systému skleněných tvárnic a speciální prizmatické zasklení ve světlíku, které v interiéru rozkládá bílé denní světlo na spektrum barev.
Okolí muzea a přilehlé parky
Součástí návrhu jsou i úpravy okolních prostorů muzea, které jsou pokorné a nenásilné. Společným motivem krajinářských úprav je práce s vegetací za účelem důstojného doplnění architektury a zušlechtění životního prostředí. Je kladen důraz na trvalou udržitelnost charakterizovanou použitím domácích dřevin a jejich kultivarů spolu s využíváním principů modrozelené infrastruktury.
Předprostor muzea je nově dlážděným náměstím, na které plynule navazuje zelený prostor Jiráskových sadů. Park je doplněn o současnou uměleckou instalaci, jsou v něm nově definovány pěší komunikace a pobytové plochy trávníků a místy je doplněno husté charakteristické osázení stromy. Muzejní zahrada je odpočinkový prostor s vodním prvkem a v přímé vazbě na muzejní kávarnu. Park terezínských dětí je pojat jako uzavřený klidový prostor s květinovou loukou a minimalistickou vzpomínkovou vodní stěnou. V blízkém okolí muzea se opakuje motiv dlažby, která se směrem do trávníku volně rozpadá.
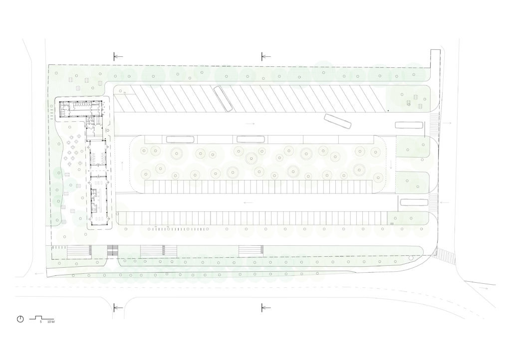
Infocentrum a parkoviště Památníku Terezín
Plánované infocentrum a plocha parkoviště jsou navrženy jednoduchým současným (novým nehistorizujícím) architektonickým přístupem s ohledem na přehlednost a jasnou orientaci v prostoru i dostatečný komfort pro návštěvníky s dostatkem přívětivých zelených ploch. Jedná se o rekonstrukci využívající části stávající stavby jako např. nosné betonové stěny či strop pro nové řešení. Infocentrum je navrženo jako ze všech stran prosklená budova se střechou z měděné krytiny, která velmi výrazně přesahuje přes stavbu a poskytuje návštěvníkům Terezína prostor pro čekání v suchu a ve stínu. Stavba je průchozí průchodem od parkoviště ke stávajícímu sadu, který poskytuje sezení gastro provozu a klidovou část pro návštěvníky. Stávající ovocné stromy zde budou ponechány k dožití a postupně budou nahrazeny okrasnými kultivary třešní, jabloní, mandloní a hrušní.
Parkoviště je svým pojetím navrženo jako nový park, který bude plnit nejen tranzitní funkci pro pěší provoz návštěvníků, ale poskytne také prostor pro odpočinek a čekání. Oválná objízdná trasa a uspořádání parkovacích stání na obou stranách dávají vzniknout velkoryse pojaté centrální ploše určené pro pobyt a vegetaci. Plocha bude osázena skupinami listnatých stromů domácího původu s podsadbou trvalek a okrasných trav a doplněna o nový mobiliář. Část vzdálená od hlavní komunikace je věnována parkování autobusů, plochy poblíž infocentra jsou určené pro parkování invalidů a další plochy jsou vymezené pro osobní automobily i s možností dobíjení elektromobilů. Šest podélných stání pro autobusy je vyhrazeno pro bezpečný výstup cestujících přímo na centrální pěší zónu.
- Autoři: Marcela Steinbachová, Steven Holl
- Ateliér: Terra Florida
- Spolupráce: Veronika Tichá, David Korecký, Vladimir Pavlovič, Terra Florida, Jan Mojka, Marie Harigelová
- Země: Česká republika
- Město: Terezín
Související projekty
Související architekti
Související ateliéry a firmy
Mohlo by vás zajímat



















