Michal Diviš Architekti - Rodinný dom N v Lietavskej Svinnej

Dvojpodlažný rodinný dom s garážou sa nachádza v obci Lietavská Svinná - Babkov, v časti Kňazová Lehota. Obec leží v údolí riečky Svinianka, v južnej časti Žilinskej kotliny. Zo svahovitého pozemku na južnej hranici intravilánu sa otvárajú výhľady na lietavské podhradie a protiľahlý vápencový hrebeň.
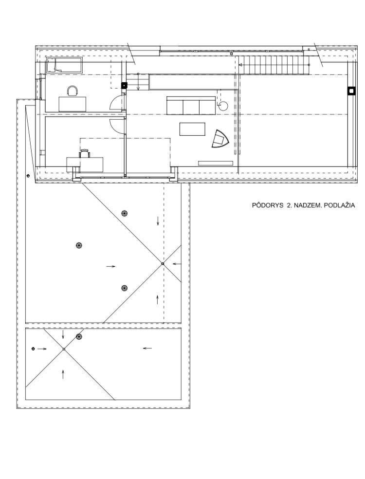
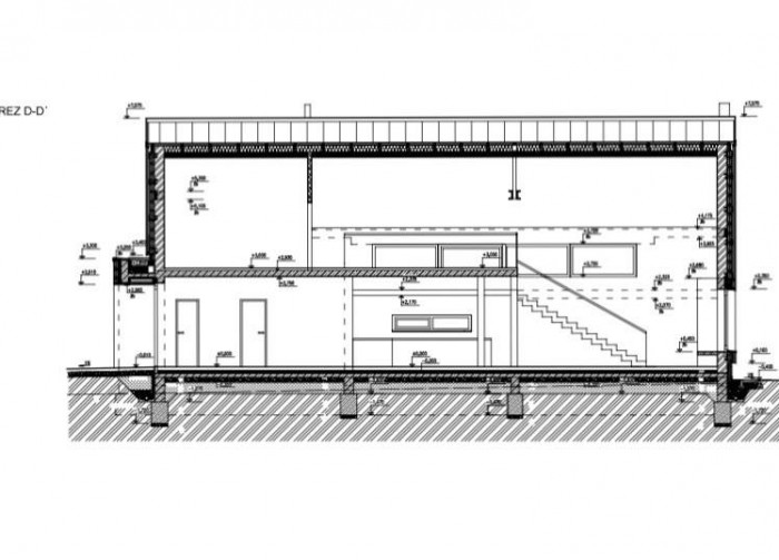
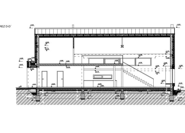
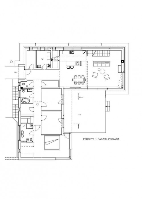
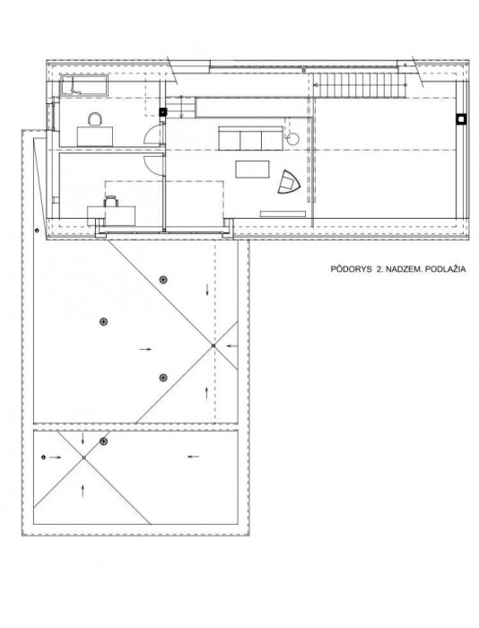
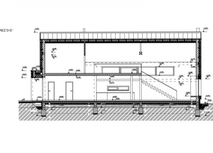
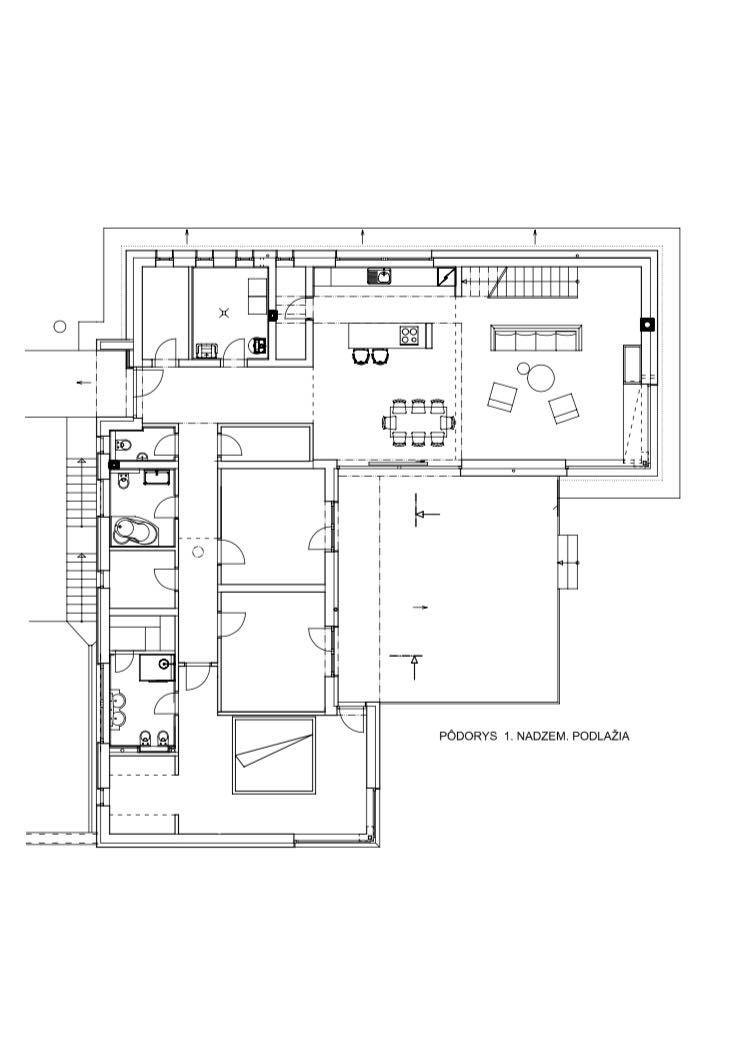
Dom je posunutý k južnej hranici pozemku s výmerou takmer 1800 m2. Konfigurácia pôvodného terénu bola východiskom pre dvojúrovňové využitie parcely. Garáž, sprístupnená komunikáciou prebiehajúcou pozdĺž východnej hrany parcely, tvorí podnož pre nočnú časť domu. Elkový pôdorys, ktorý sa rozvíja na vyššej úrovni, je z východnej časti ohraničený vyššou, dennou časťou domu so sedlovou strechou. Tá zároveň tvorí pohľadovú bariéru pre otvorený segment záhrady. Betónová terasa, “zovretá” oboma traktami domu, sa otvára na juhozápad. Výhľad na okolité lúky nerušia žiadni susedia.
Príjemnú sivú patinu dreva, použitého na fasáde dennej časti domu, striedajú precízne monochromatické plochy nižšieho traktu. Bezpresahová strecha a skryté žľaby nechávajú vyniknúť kompozíciu dvojice blokov. Priestorový koncept je obohatený o prevýšenú zónu obývacej izby, otvorenú na celú výšku krovu.
- Autoři: Michal Diviš
- Země: Slovensko
- Město: Lietavská Svinná-Babkov
- Ulice, číslo: Kňazova Lehota
- Datum projektu: 2015
- Realizace: 2019
- Užitná plocha: 310.50m2
- Zastavěná plocha: 259.50m2
- Plocha pozemku: 1 757.50m2
- Spolupráce: Radoslav Stráňava (stavební konstrukce)
Související architekti
Mohlo by vás zajímat














