Mjölk architekti - Dům za zdí
 
                                
                                Všechno začalo tím, že si naši klienti koupili více než sto let starý dům. Tradiční stavba se sedlovou střechou byla na konci životnosti. Dům měl však zachovalé kamenné sklepy a tak jsme se rozhodli, že obytnou část objektu zboříme a kamenný sokl sklepů využijeme jako základ pro nový dům. Odvážný a také trochu riskantní plán vyšel a dnes bydlí klienti v krásném moderním domě, který si uchoval kousek historické duše svého předchůdce opepřený severskou estetikou s lehkým dotekem industriálu. Co si budeme povídat, cesta k dobrému výsledku nebývá vždy úplně jednoduchá, ale pro skvělý výsledek se vyplatí vynaložit o trochu více úsilí a nervů.
Pozemek sousedí s rušnou komunikací, která je hojně využívána jako odrazový můstek turistů směřujících do Jizerských hor. Proto jsme na místě původní obvodové zdi starého domu navrhli novou betonovou zeď. Tento prvek nejen snižuje množství hluku z vedlejší silnice, ale také vymezuje venkovní vstupní prostory do domu. Za zdí se nachází malý dvorek s výhledem na Ještěd, který je rozcestníkem mezi vchodem do rodinného domu, výminku a schody do níže položené zahrady.
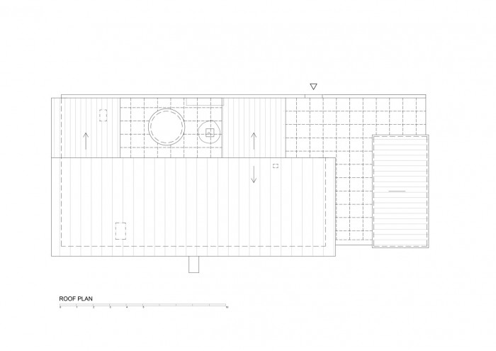
Konstrukce nové části domu je dřevěná. Střecha z asfaltových pásů společně s černou, térem natřenou fasádou nechává vzpomenout na objekt šupny, která na tomto místě v minulosti stávala.
Na starém kamenném sklepě stojí za betonovou zdí vlastně domy dva – rodinný dům a malý výminek pro mladého mořeplavce, syna klientů, který po většinu roku brázdí oceány za kormidlem zaoceánských lodí.
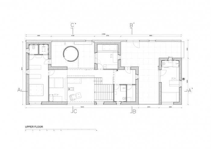
Dům rodičů je složitější, jelikož jeho stavební program musel absorbovat potřeby hned tří lidí – sympatických manželů a jejich dcery. Ve dřevěné nástavbě nad stropem původních sklepů jsou situovány ložnice, pracovna, koupelny s toaletou a venkovní dvorek se saunou. Saunování je příjemným zpestřením krutých severských zim, a tak klienti saunu téměř nenechají vychladnout.
Obytný prostor domu je z obou stran vymezen velkými okny. Okno na jihozápadní fasádě otevírá výhled do údolí Harcovského potoka a směrem na Ještěd, zatímco okno severní nabízí pohled do již zmíněného saunovacího dvorku. O několik schodů níže je obýváková podesta s krbovými kamny a široké schodiště do kuchyně s jídelnou, které jsou napojeny na dolní, obytnou část zahrady. Zbytek prostorů sklepa je užíván jako technické prostory a sklady.
Navrhování interiérů jsme si užili. V domě je mnoho na míru navržených prvků. V koupelnách jsou/nejsou vodovodní baterie, některé nahradilo měděné vedení a zahradní kohouty. V ložnici visí ze stropu skříně, které nezabírají tolik místa a nechávají prostor ložnice, šatny a koupelny propojený v jednom celku. V kuchyni jsme zase pro změnu navrhli linku tak, aby nezmizely původní žulové bloky, ze kterých je celá dolní stavba postavena.
Zahrada domu je skromná, ale krásná. Několik vzrostlých stromů, dává domu kulisu horského lesa. Na zahrádce ještě přibylo pár květináčů, kam paní domu chodí pro čerstvé bylinky.
- Autoři: Jan Mach, Jan Vondrák, Lukáš Holub
- Ateliér: Mjölk architekti
- Spolupráce: Michal Hejzlar, Jan Nikedey
- Země: Česká republika
- Město: Liberec
- Datum projektu: 2014
- Realizace: 2018
- Užitná plocha: 188.00m2
- Zastavěná plocha: 271.00m2
- Realizace: 1ku1, Millante
Související projekty
Související architekti
Související ateliéry a firmy
Mohlo by vás zajímat
 
				 
				 
				 
				 
				 
				 
				 
				 
				 
				 
				 
				 
				 
				 
				 
				 
				 
				 
				 
				 
				 
				 
				 
				 
				 
				 
				 
				 
				 
				 
				 
				 
				 
				 
				 
				 
				 
				 
				 
				 
                             
                             
                             
                             
                             
                                 
                             
                             
                             
                             
                             
                             
                             
                             
                             
                             
                             
                             
                             
                             
                             
                             
                             
                             
                             
                             
                             
                             
                             
                             
                             
                             
                             
                             
                             
                             
                             
                             
                             
                     
                     
                     
                     
             
             
             
             
            		 
            		 
            		 
            		 
            		 
                                                                                                             
                                                         
                                                         
                                                                                                             
                                                         
                                                         
                    