Mooza architecture - řadový dům Solidarita

Sídliště Solidarita v pražských Strašnicích je momentálně vyhledávanou lokalitou, která tvoří doslova malé město ve městě. Původní kolonie byla vystavena po vzoru severských sídlišť své doby (přelom 40. a 50. let minulého století) a jako jedna z prvních využívala prefabrikovanou modulární technologii. V současné době se z celé oblasti stalo příjemné místo k bydlení, se zvláštním komunitním duchem, v mnohém připomínající klasickou vesnici.
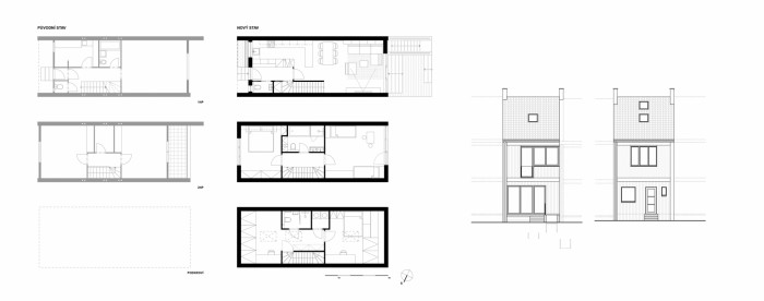
Náš návrh zpracovával jeden z řadových domů, a cílem bylo přetvořit původní stavbu v místo pro pohodlný život vícečlenné rodiny v delším časovém horizontu. Zároveň jsme ale v určité míře chtěli také ctít odkaz původního návrhu. V přední časti se návrh maximálně přizpůsobuje ostatním domům a v mnohém cituje původní návrh, například v použití dřevěného obložení v prvním vstupním podlaží.
Kde návrh dostal větší svobodu, je zadní fasáda. Její členění pracuje se střídáním prosklených a plných ploch, které jsou obloženy dřevem stejným způsobem, jako nika v předním průčelí. Kompozice vychází z předpokladu funkčního využití z interiéru. Vyšší parapet v 1. patře umožní umístění psacího stolu a v přízemí je prosklená plocha maximalizována, s ponecháním jedné plné části, pro případný vestavný nábytek a sezení.
Dále bylo třeba více propojit úroveň obývacího prostoru se zahradou, čehož jsme dosáhli vybudováním dřevěné terasy. Výškový rozdíl v této části je poměrně vysoký – bezmála půl patra, terasa však neměla působit masivně a zastiňovat sousední domy, které podobnou konstrukci nemají. Schody proto začínají hned za dveřmi. Samotná terasa má pak výšku 500 mm, aby se na jejím předním okraji dalo případně i sednout.
V interiéru – v obývacím pokoji spojeném s kuchyní, dominuje vestavěný nábytek, který se táhne po celé délce prostoru. Jednotný modul sjednocuje, jak kuchyni, tak panely nad jídelním stolem s magnetickým povrchem, tak police a knihovnu za gaučem.
Materiálově je vše pojato v kombinaci bílé a světlého dřeva, aby se vše dalo zabydlet osobními předměty, dle sezóny či momentální nálady. Skříň oddělující kuchyň od chodby, v sobě obsahuje okno, průhled, kterým kdokoli z kuchyně má přehled o příchozích a zároveň předsíni toto okénko dodává zdání trochu většího prostoru.
- Autoři: Klára Císařovská, Štěpán Svejkovský
- Ateliér: Mooza architecture
- Země: Česká republika
- Město: Praha - Strašnice
- Datum projektu: 2016
- Realizace: 2019
- Užitná plocha: 109.00m2
Související projekty
Související architekti
Související ateliéry a firmy
Mohlo by vás zajímat















