No Architects - Montessori školka v Klecanech
„Svět nepatří poslušným dětem. Svět patří těm, kdo ho znají dost na to, aby ho dokázali změnit.“
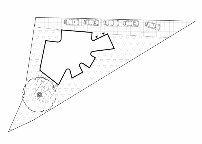
Bylo nebylo, autoři územního plánu malého středočeského města na pravém břehu Vltavy – Klecan – vymezili na malém pozemku přímo uprostřed rozsáhlých rozvojových ploch pro bydlení, plochu pro občanskou vybavenost. Místní patrioti, dobrovolný hasič s manželkou, si trojúhelníkový pozemek pořídli s vizí, že zde vybudují školku s menším přidruženým kulturním provozem, kterou budou sami provozovat podle zásad Montessori vzdělávacího systému.
Barevná i věcná střídmost, absence křiklavých hraček a s nimi i motivů, to vše provází specifika vzdělávání, které je postaveno na Montessori pomůckách. Náš návrh však ze všeho nejvíce odráží jeden ze základních principů Montessoriovské pedagogiky, a sice tzv. připraveného prostředí. Podle této zásady bývá prostor uspořádán do koutků, v nichž se často odehrávají tzv. skutečné aktivity. Děti pracují na skutečném ponku, zatloukají skutečným kladivem skutečné ostré hřebíky, vaří ve skutečné kuchyňce s plnohodnotným dřezem, sporákem a troubou, skutečně pečují o rostliny na zahradě atd. Mezi aktivitami si svobodně vybírají, rozvíjejí své vnitřní motivace podle individuálních potřeb. Tyto koutky v naší školce nejsou jen symbolické, skutečně jsou umístěny v koutech, které se propisují z interiéru do exteriéru, kde vytvářejí své negativní obrazce – koutky v zahradě. Naší ambicí bylo i na limitovaném pozemku připravit členité prostředí tak, aby podněcovalo zájem dětí samo o sobě a pomáhalo jim vnímat svět, včetně světa architektury jako něco nesamozřejmého, hodného přemýšlení.
Na začátku naší práce na návrhu byla trojúhelníková parcela stavebního dvora, vylitá zčásti betonem, ze všech stran obklopena silnicemi, přes její jižní část vedl dost neskromně obecní kanalizační řad a přes její východní část další směs veřejné technické infrastruktury. Jednu ze tří silnic se nakonec podařilo proměnit v pěší cestu, s pomocí tří typů neprůhledného oplocení jsme si pomohli s udržením vlastního kontextu v (zatím) nedostavěné periferii obce. A udrželi jsme při životě největší devizu pozemku – košatý topol.
Zatímco v přízemí domu se nachází školka, v patře se samostatným vstupem a multifunkčním sálem se odehrává nejen administrativa a poradenství školky, ale i řada aktivit pro dospělé jako je cvičení apod. Školka tak od svého otevření slouží jako malé kulturní centrum a dá se předpokládat, že její role se bude vyvíjet spolu s tím, jak se zastaví další rozvojové plochy v jeho okolí.
Klienti školku postavili prakticky vlastníma rukama a dále ji vedou, spravují, pečují o zahradu i dům. Osobně mimo jiné i s pomocí hasičské cisterny zalévali strom na pozemku, aby celou stavbu ve své těsné blízkosti skutečně přežil tak, jak jsme doufali.
- Autoři: Daniela Baráčková, Jakub Filip Novák
- Ateliér: No Architects
- Spolupráce: Barbora Jelínek, Martin Hlusička
- Země: Česká republika
- Město: Klecany
- Datum projektu: 2012
- Realizace: 2019
- Užitná plocha: 297.00m2
- Zastavěná plocha: 182.00m2
- Plocha pozemku: 718.00m2
Související projekty
Související architekti
Související ateliéry a firmy
Mohlo by vás zajímat