Naším návrhem jsme dětem chtěli říct, že s fosilními palivy je nutné nakládat rozvážně – k tomu nás vedl především fakt, jak naléhavá byla situace s nedostatečnou stabilitou budovy. Takový postoj však zároveň může mít i podobu jednoho z výukových prvků mateřské školy.

Ve výsledku to znamenalo neobvyklý přístup. Zavrhli jsme principy klasického stavění a rozhodli se použít námořní kontejnery, které (v kombinaci s renovovanými stávajícími konstrukcemi) vhodně zvyšují odolnost proti zemětřesení.

Uvědomili jsme si, že krátká doba samotné výstavby (na což mělo největší vliv právě použití kontejneru) znamená méně emisí oxidu uhličitého, čehož při běžné výstavbě nelze dosáhnout. Tím jednak podporujeme udržitelný rozvoj společnosti, tak také vytváříme ekologické a podnětné prostředí.

Chtěli jsme dětem dát najevo, že s omezenými zdroji je nutné nakládat opatrně. Proto jsme se rozhodli použít právě přepravník, který, také díky jeho mobilitě, lze využít i poté, co již neslouží k transportu zboží. Tím jsme dosáhli jak úspory energie, tak redukce CO2.

U tělocvičny jsme zachovali stávající konstrukce, zrenovovali je a tím zesílili její odolnost. Ponecháním těch prvků, které šlo zachovat (zejména původní forma střechy), naznačujeme dětem další možnosti. Naším cílem však bylo, aby na to přišly samy.

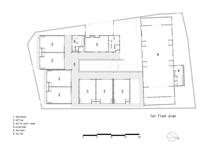
Samotná budova školky má zvenku hrubou kontejnerovou/utilitární podobu, díky čemuž je pro děti snadno rozpoznatelnou. Spolu s hřejivým dřevěným interiérem tak lze na vlastní kůži zažít zajímavé srovnání mezi prostředím uvnitř a venku.

Když jsme navrhovali nový objekt a řešili míru jeho odolnosti, uvědomili jsme si, že školka s takovou tradicí je důležitou součástí místa a toto místo by mělo být přístupné všem.

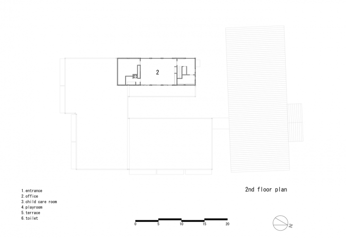
Budova se směrem ven otevírá hned dvěma místnostmi – jedna je určena ošetřovatelům a druhá učitelům – okolojdoucím lidem tak může připadat, jakoby viděli, co se ve školce děje.

Zelkova pilovitá (východoasijský listnatý strom, pozn. red.), která roste na zahradě, pak předurčila symbol v názvu celé školky i jednotlivých tříd. Během výstavby se podařilo zachovat i další stromy – dětem tak budou neustále připomínat ohleduplnost ke globálnímu životnímu prostředí i ekologické aspekty vzdělání.

  • Ateliér: HIBINOSEKKEI, Youji no Shiro
  • Země: Japonsko
  • Město: Saitama
  • Realizace: 2016
  • Užitná plocha: 1 006.16m<sup>2</sup>
  • Plocha pozemku: 1 856.32m<sup>2</sup>
  • Poznámka: Foto © Studio Bauhaus, Ryuji Inoue
Generální partner
Hlavní partneři