Ov – a, ov architekti - Sídlo firmy Lasvit

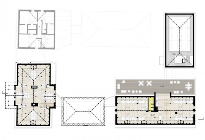
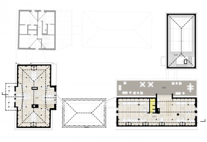
Palackého náměstí v Novém Boru nese atmosféru rychlého rozmachu města a sklářského řemesla během 19. století. Domy na náměstí a v přilehlých ulicích mají jednotný výraz, dvoupodlažní solidní hmoty s valbovými střechami a s hřebeny podél ulice. Návrh současnou formou interpretuje typický dvoupodlažní sklářský dům, doplňuje dva původní památkově chráněné objekty o dva nové domy a vytváří celistvý areál s vnitřním dvorem. Architektura místa zrcadlí silnou tradici sklářství, na kterou navazuje práce a design firmy Lasvit. Navržené novostavby si zachovávají proporce historických staveb.
Původní stavby
Dva historické, památkově chráněné domy č.p. 170 a 171 jsou renovovány, očištěny od nevhodných zásahů z 80. let a citlivě adaptovány pro kancelářský provoz firmy. Nárožní podstávkový dům je se svou dřevěnou konstrukcí typickou ukázkou staveb Českolipska 18. a 19. století. Unikátní dřevěné konstrukce jsou pomocí historických postupů opraveny, fasády očištěny od polystyrenového zateplení, původní krovy opatřeny nadkrokevní izolací a okna vyměněna za špaletová.
Skleněný dům
Nový průsvitný éterický dům nahradil zděný krček propojující historické stavby. Jeho plášť i střecha jsou pokryty na míru vyvinutými skleněnými tvarovkami vycházejícími z formátu a kladení břidlicových desek užívaných na štítech a střechách v regionu. Uvnitř nabízí unikátní jednací místnost a centrální vnitrofiremní kavárnu s přímým výstupem na venkovní dvůr. Interiérové police po celém obvodu fasády jsou zároveň knihovnou výrobků a vývojových vzorků Lasvitu.
Černý dům
V zadní části pozemku je kolmo k ulici umístěn tmavý zemitý provozní dům. Střecha i plášť jsou z černých vláknocementových šablon. Velký otevřený prostor s výškou přes 13 m je určený k testování a prezentaci nově vyvinutých jedinečných lustrů, lamp a jiných artefaktů. Dům je navržen tak, aby mohl být v budoucnu snadno adaptován na běžná kancelářská pracoviště.
Interiér
Celý interiér má charakter za sebou řazených komnat. Cílem je podpořit přirozené a krásné původní konstrukce, které pracovnímu prostředí vtisknou kouzlo historické stavby i jistého sentimentu. Všemi budovami se vine nit společných prostorů se zálivy a zákoutími, které zároveň slouží k odpočinku. Jednotlivá oddělení jsou uspořádána tak, aby podpořila spolupráci a duch firmy.
- Autoři: Jiří Opočenský, Štěpán Valouch, David Balajka, Anna Schneiderová
- Ateliér: OVA
- Země: Česká republika
- Generální dodavatel: BAK stavební společnost, a.s.
- Město: Nový Bor
- Ulice, číslo: Palackého náměstí 170
- PSČ: 47301
- Datum projektu: 2014
- Realizace: 2019
- Užitná plocha: 1 780.00m2
- Zastavěná plocha: 779.00m2
- Historické tesařské konstrukce: Stavební firma Hlaváček
- Betonové konstrukce: DNA Design – Břetislav Eichler
- Ocelová konstrukce fasády: Excon, a.s.
- Skleněné opláštění: TGK - technika, sklo a umění s.r.o.
Související projekty
Související architekti
Související ateliéry a firmy
Mohlo by vás zajímat






























