ov-a - Uhelna VŠCHT

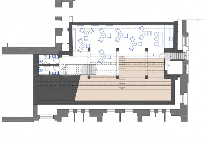
Vysoká škola VŠCHT se na nás obrátila s myšlenkou využít nějakým novým způsobem dvorní objekt uhelny, v jednom z vnitrobloků budovy A od Antonína Engla z let 1936. Uhelna postavená jako jednoduchá průmyslová stavba sloužila pro zásobování sousední kotelny až do roku 1985 tedy krásných 50 let. Byla složená z dvojice sil se šikmým dnem, horní zásobovací chodbou a spodní odebírací chodbou odkud se uhlí v kovových vozících na kolejnicích vozilo ke kotlům. Střední věž nad chodbou původně nesla cisternu s vodou pro provoz kotelny.
Po roce 1985 se objekt nevyužíval, sloužil trochu jako sklad a trochu jako hřbitov nepotřebných věcí. Když nás do něj poprvé přivedl investor, nezdálo se, že by se prostor dal smysluplně využít. Chyběly rovné části podlah a větší prostor.
Pohled do řezu s dvěma naklopenými plochami nás přivedl na myšlenku využít jednu stranu jako skloněné auditorium. Rozhodli jsme se zachovat maximum z betonové konstrukce, která je krásná ve své původní účelovosti. Cílem bylo také získat jeden souvislý prostor, který bude sloužit přednáškám, setkáním, neformální práci. Jedna z výsypek byla proto odstraněna a na druhou byly vytvořeny dřevěné stupně sloužící jako hlediště. Vložené schodiště, jako nový objekt v prostoru, propojuje obě výškové úrovně.
Technické informace
Původní betonová konstrukce byla očištěna, ošetřena a vyspravena pouze lokálně v nezbytně nutném rozsahu. Konstrukce nového schodiště je ocelová s přiznaným přírodním černým vzhledem. Povrch stupňovitého hlediště tvoří dubová podlahová prkna. Pohledový dřevěný krov je kopií původního, který byl již ve špatném technickém stavu.
- Autoři: Jiří Opočenský, Štěpán Valouch
- Ateliér: OVA
- Spolupráce: Romana Bedrunková
- Země: Česká republika
- Město: Praha 6 - Dejvice
- Ulice, číslo: Technická, 5
- PSČ: 16000
- Datum projektu: 2015
- Realizace: 2019
- Užitná plocha: 222.00m2
- Zastavěná plocha: 225.00m2
- Hlavní inženýři projektu: Stavaři, s.r.o.
Související projekty
Související architekti
Související ateliéry a firmy
Mohlo by vás zajímat
























