Park 4Dvory

PARK
Vzhledem ke geologickým podmínkám území (jílovitosti půdy, která udusí novou výsadbu nepředpěstovanou v těchto podmínkách) byl jako vůdčí koncept práce s vegetací zvolen princip řízené sukcese.
Park je navržen jako nástup do krajiny. Krajina – prostor s neřízenou sukcesí – je logickým a přirozeným pokračováním sukcesních ploch parku. Park 4Dvory se z krajiny nevymezuje, ale do krajiny se postupně „noří“. Park na místě bývalého vojenského prostoru je zvoleným konceptem přirozeně propojen s bezprostředním i vzdálenějším prostorem přírodě blízkých společenstev i ekosystémem nedalekých rybníků.
Nástupy do parku jsou navrženy v místech vyústění ulic budoucích nových bytových domů. Cestní síť je účelově koncipována pro obsluhu všech potřebných aktivit v parku, spojuje místa nástupů s potenciálními cíli návštěvníků parku a vytváří přirozenou tkáň území. Vzhledem k podmáčenosti území je cestní síť založena na nasypaném terénu. Násypy cest je pak členěna plocha území na dílčí plochy jednotlivých stupňů sukcese.
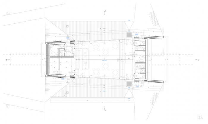
KAVÁRNA
Kavárna je navržena jako součást cestní sítě; částečně uzavřené mimoúrovňové křížení cest. Je přirozenou součástí parku, meze cest zapřené zábradlím plynule pokračují po střeše objektu, objekt je „muldou“ v terénu.
Kavárna je osazena v místě nejvyššího převýšení pozemku jako podnož páteřní cesty územím, jež jde po její střeše a vybíhá do krajiny. Vytváří tak jediné výškové vyvýšení v území a nabízí „rozhledy“ do parku, hierarchicky vyzdvihuje nejdůležitější komunikaci v území. Zároveň je průchodem mezi východní stranou parku s fitstezkou, kluzištěm, dětským hřištěm a západní stranou se skateparkem a dětským hřištěm.
Objekt kavárny obsahuje odbytovou plochu kavárny se zázemím a sociální zařízení pro potřeby parku (wc muži, ženy a invalidé). Kavárna s odbytovou plochou cca 85 m2 pro 32 návštěvníků je v teplých měsících rozšířena o oboustranné terasy – východní a západní.
Vzhledem k tvarování kavárny v podélném směru je konstrukčně navržena z monolitického železobetonu. Její dvě fasády jsou tvořeny prefabrikáty z pohledového betonu. Tepelná izolace stěn a střechy je z extrudovaného polystyrenu. Obvodové podélné zdi zabíhající mimo půdorys objektu se stávají opěrnými zdmi mezí okolního terénu.
PRINCIP ŘEŠENÍ VEGETACE
Základním přístupem k vegetaci je, vzhledem k problematičnosti klasického zakládání vegetačních prvků, ponechání větší části parku přirozenému vývoji – sukcesi. Plochy jsou rozděleny na stupně 1-3 dle intenzity zásahu do spontánně vznikajícího společenstva. Za daných stanovištních podmínek by na stanovišti přirozeně vznikla jedlová doubrava, přičemž mladší sukcesní fáze zahrnují vývoj od travobylinného společenstva, přes keřové a stromové nálety až po vzrostlý les. Významnou roli hrají terénní nerovnosti, které vytváří mozaiku sušších a vlhčích míst.
Cílem je sledovat přirozený vývoj společenstva a směřovat jej žádoucím směrem tak, aby na jednotlivých plochách bylo udržováno určité sukcesní stádium (bylinné, keřové, stromové). Řízená sukcese tedy spočívá v monitoringu a pravidelném zásahu do ploch, nicméně v porovnání s klasickou parkovou úpravou výrazně snižuje náklady na údržbu.
1. bylinné společenstvo – luční trávník, vyšší traviny
zásahy spočívají v pravidelném sečení kolem cest, eliminaci náletů dřevin a větších enkláv ruderálních bylin bylinné druhy: třtina křovištní, chrastice rákosovitá, skřípina lesní, ostřice jarní, bika ladní; vlhkomilné luční byliny
2. keřové společenstvo s nálety stromů do 4 m výšky
zásahy spočívají v odstraňování invazních dřevin, příliš hustých náletů a stromů nad 4 m výšky stromy: bříza, osika, vrba bílá, vrba křehká, topol, planá třešeň, lípa srdčitá, borovice keře: šípek, keřové vrby, trnka
3. mladý les – souvislé stromové a keřové patro – fáze mladého lesa se stromy do 30 cm průměru kmene
zásahy spočívají v odstraňování invazních dřevin a stromů nad 30 cm průměru kmene stromy: bříza, osika, vrba bílá, vrba křehká, topol, planá třešeň, borovice, jasan, dub letníkeře: šípek, keřové vrby, trnka
- Autoři: David Prudík, Markéta Veličková, Petr Velička, David Prudík
- Ateliér: M&P Architekti – Krajinářská architektura
- Spolupráce: Terezie Havlíková, Kateřina Koudelová, Pavla Drbalová, Eva Teplická, Jan Zemánek
- Země: Česká republika
- Generální dodavatel: Gardenline s. r. o.
- Město: České Budějovice
- Ulice, číslo: E. Rošického 365/16
- PSČ: 370 05
- Suma: 30 000 000.00
- Měna: CZK
- Datum projektu: 2012
- Realizace: 2014
- Plocha pozemku: 28 400.00m2
- Foto ©: Jakub Holas
Související projekty
Související architekti
Související ateliéry a firmy
Mohlo by vás zajímat





















