petrjanda/brainwork - Loft 32 Zlín
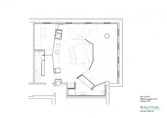
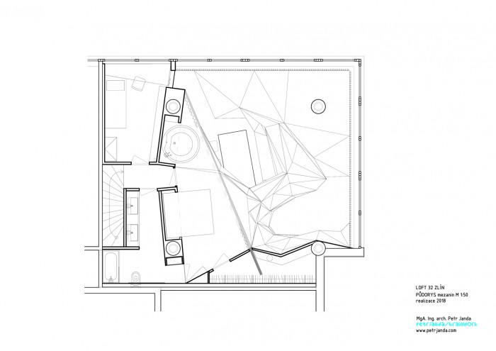
Loft se nachází v 8. podlaží bývalé etážové výrobní budovy v areálu zlínské Baťovy továrny s výhledem na zelené jádro města. Ambicí interiéru je maximální zapojení obrazu města do prostoru bytu. Loft nepoužívá ve svém interiérovém tvarosloví obvyklé materiálové citace industriálního kontextu, vytváří autentický dialog mezi abstraktně řešeným prostorem a výhledem rámovaným zlínským mrakodrapem a údolím Jižních svahů. Vnitřní prostor pracuje s postupným otvíráním jednotlivých epicenter bytu umožňující zónování na společenské a soukromé partie pomocí vícestupňové gradace jednotlivých výškových úrovní, nikoli ostrým předělem.
Interiér je definován jako kompozice hlavního volně tvarovaného společenského prostoru opřeného do zalomené nábytkové příčky a vestavěné kuchyně ukrývající za sebou dva pokoje, koupelnu, vstupní zádveří a „tajné“ schodiště. Skrze tuto příčku vstupujeme do hlavního převýšeného prostoru definovaného vloženou rampou nastoupávající z obytné kuchyně s jídelním zálivem přes dětský kout zakousnutý do parapetu okna a záliv vymezený dvěma atypickými pohovkami až do ložnice s vestavěnou kruhovou vanou. Tvar vrostlý do podlahy a stěn interiéru je tvořen strukturou sestavenou z trojúhelníků, která se spirálovitě obtáčí kolem středu dispozice a vytváří pódium, jež je zároveň hledištěm přivráceným k výhledu na město. Rotující struktura do sebe integruje atypické pohovkové prvky a plynule navazuje na obložení svislých stěn oddělujících soukromé části interiéru.
Materiálové řešení je variací jemných odstínů bíle mořené břízové překližky, bílého koženkového čalounění a bílé PVC podlahové krytiny akcentované skleněnými dělícími prvky zábradlí a posuvné příčky ložnice, lakované kuchyně ve vysokém lesku a mozaikovým obkladem. Na relativně malé ploše s minimální výškou umožňující dvoupatrové uspořádání tak vzniká velkorysý trojrozměrný koncept s mnoha skrytými komplementárními prostory v rubových partiích hlavní struktury.
- Autoři: Petr Janda, Anna Podroužková, Maty Donátová, Bára Simajchlová
- Ateliér: petrjanda/brainwork
- Spolupráce: Viktor Johanis, Martin Chlanda
- Země: Česká republika
- Město: Zlín
- Ulice, číslo: Jana Antonína Bati, 5648
- PSČ: 76001
- Datum projektu: 2014
- Realizace: 2018
- Užitná plocha: 156.00m2
Související projekty
Související architekti
Související ateliéry a firmy
Mohlo by vás zajímat