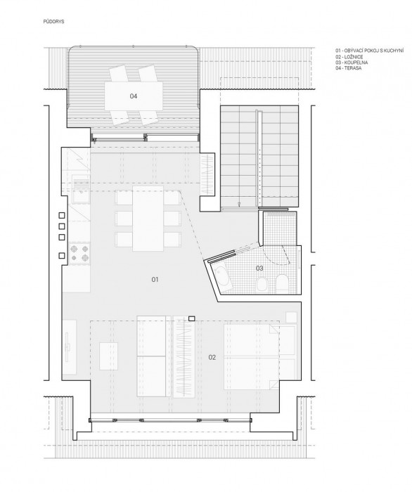
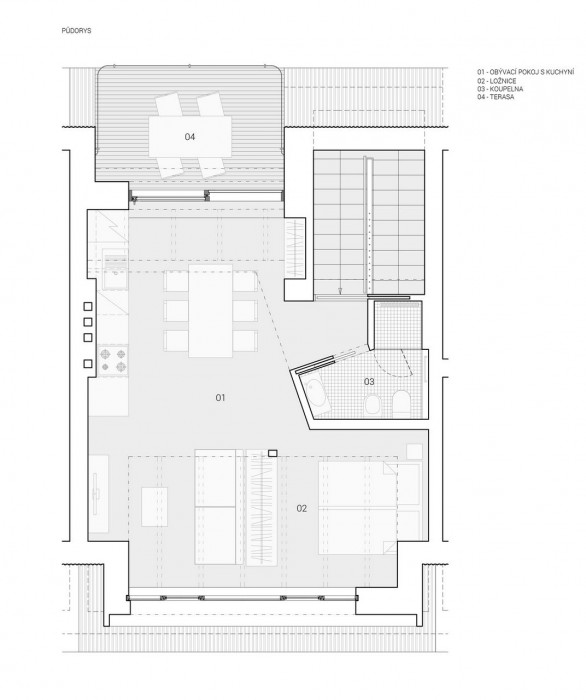
Podkrovní byt na třídě Míru

Investor se na nás obrátil po koupi řadového rodinného domu s adaptací bytu v patře; zbývající dva malé byty, v přízemí a v podkroví, měly být pronajaty. V průběhu navrhování se pozornost obrátila k podkroví, které nabízelo více soukromí i možností úprav.

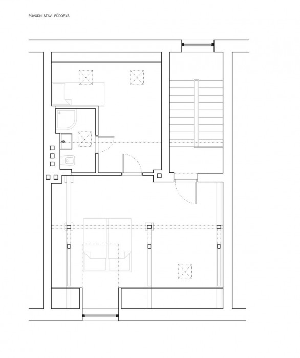
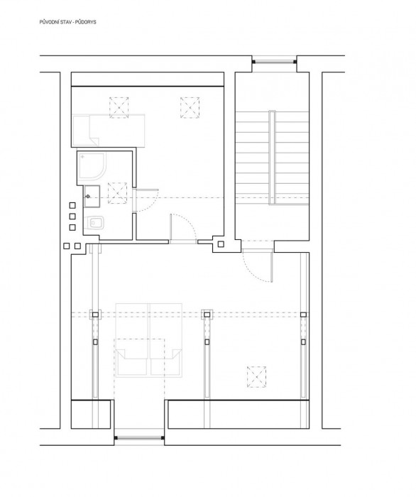
Záměr úpravy stávajícího půdního bytu bez zásahu do střešního pláště se postupně vyvíjel; vzhledem ke stavu postupně odhalovaných stavebních konstrukcí přibývaly nutné úpravy střechy (a s tím i možnosti byt celkově více propojit s vnějším prostředím), aby nakonec v průběhu stavby byla i zbývající zachovaná část krovu nahrazena novými prvky. Pro podkroví typické omezení světlou výškou, kdy velká část podlažní plochy není využitelná, je zde řešeno zvýšením střechy (vikýř do ulice), respektive její absencí (terasa do zahrady ve vnitrobloku).

Po odstranění původních příček zůstal vnitřní prostor otevřený na obě strany střechy, kam byly následně vloženy objekty koupelny a skříně, které daný prostor člení na vstupní, obytnou a ložnicovou část. Do uzavřeného objemu koupelny je přirozené světlo přiváděno prosklením umístěným pod vložený mezistrop.

Podkrovní byt je částečně dvojpodlažní; pod vlastním podkrovím se nachází vstup a předsíň, která byla, spolu se dvěma posledními schodišťovými rameny, vyčleněna montovanou příčkou ze schodišťového prostoru domu. Pro zachování prostorových vazeb a prosvětlení jsou v příčce otvory.

Konstrukce podkroví je dřevěná, skladba střešního pláště difuzně uzavřená, s tepelnou izolací mezi - a nad - krokvemi. Střešní krytina profilovaná plechová (vlnka). Obklad nově vytvořených ploch je z cementovláknitých desek, nové střechy jsou řešeny jako pultové s nadkrokevní skladbou s PVC-P folií a skrytými dešťovými žlaby.

Generální partner
Hlavní partneři