Přístavba rodinného domu v Bořislavi

Potřeba rozšíření domu

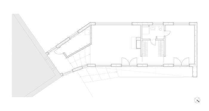
Nedostatečná plocha a těsná dispozice ve stávajícím malém domě vedly stavebníka k rozhodnutí doplnit chybějící prostor přístavbou. Rodinný dům, který byl postaven asi v 70.letech svépomocí, sice prošel před několika lety rekonstrukcí, ta však neřešila prostorové požadavky. Přístavba vznikla především kvůli potřebě vytvoření velkého denního obytného prostoru a soukromé ložnice. Tyto místnosti doplnilo potřebné zázemí představující toaletu, šatnu, technickou místnost a samozřejmě nutné komunikační prostory. Architekti zvolili pro přístavbu západní fasádu domu s přilehlou zahradou, a to s ohledem na konfiguraci terénu i logickou návaznost na dispozici původního domu.

Přístavba jako harmonizující prvek

Nízká přístavba logicky kopíruje terén zahrady. Snahou autorů bylo navrhnout jednoduchou formu domu, která by nevnášela další roztříštěnost architektonických stylů do již tak nesourodé struktury okolní zástavby. Architektonický výraz i proporce nové budovy nejednotný architektonický ráz místa spíše harmonicky doplňují a zjednodušují.

Místy příliš těžkopádnou konkrétnost současného domu se architektonický tým 3+1 architekti pokusil vyvážit jednoduchým tvarem, ve kterém se odráží rytmus plynoucí z použitého skladebného modulu, a abstraktním černým pláštěm přístavby tvořeným fasádními obkladovými deskami Cembrit Zenit v barvě Erebus.

Přístavba s decentní elegancí černých obkladových desek díky dřevěným okenním rámům použitým obdobně jako na původní budově paradoxně svou odlišností velmi citlivě navazuje na hlavní objekt. Přirozené návaznosti rovněž napomáhá dřevěný terasovitý chodník spojující i v exteriéru obě budovy.

Tmavě černý odstín fasády přechází i do interiéru přístavby, kde je použit v podobě tmavých podlahových dlaždic. Tato tmavá podlaha přístavby je zároveň v kontrastu s lesklou bílou, jež dominuje podlaze původního objektu. Toto barevné pojetí podtrhuje kontrast staré a nové budovy, které umocňuje odlišnost architektonického výrazu obou staveb, současně však právě svým kontrastem vyjadřuje reakci na původní architektonické pojetí interiéru.

Fasáda nejčernější z černých

Ačkoliv by se mohlo zdát použití tmavých fasádních desek příliš tvrdé a pro své okolí násilné, skutečnost je opakem. Přístavba díky zvolené barevnosti a hmotě odpovídající okolnímu terénu nijak nevyčnívá a obzvláště při vzdálených pohledech a průhledech působí až nenápadně. Kýženého výsledku je dosaženo i díky použití vláknocementových do hmoty probarvených obkladových desek, které se vyznačují hladkým a homogenním povrchem. Díky těmto vlastnostem o to lépe působí v celé své ploše akrylový nátěr černé barvy. Trvanlivost vzhledu fasády by měla být zajištěna díky přirozeným vlastnostem použitých desek, jež mají schopnost minimalizovat viditelné škrábance na svém povrchu.

  • Ateliér: 3+1 architekti
  • Autoři: Pavel Plánička, Bruno Panenka
  • Země: Česká republika
  • Město: Bořislav
  • PSČ: 415 01
  • Datum projektu: 2013
  • Realizace: 2014
  • Užitná plocha: 75.00m<sup>2</sup>
  • Zastavěná plocha: 110.00m<sup>2</sup>
  • Plocha pozemku: 1 600.00m<sup>2</sup>
  • Materiál: Fasádní desky - CEMBRIT
  • Foto ©: Pavel Plánička
Generální partner
Hlavní partneři