Přístavba rodinného domu v Bořislavi

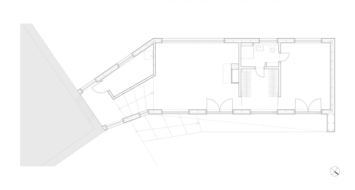
Záměr
Pro tento záměr nám připadala ideální západní fasáda domu s přilehlou zahradou, a to jak konfigurací terénu, tak logickou návazností na dispozici původního domu.
Nízká přístavba kopíruje terén zahrady. Jednoduchou formou se pokoušíme dál nekomplikovat přebujelou strukturu původní stavby a objektů kolem.
Místy příliš těžkopádnou konkrétnost současného domu jsme se pokusili vyvážit jednoduchým tvarem, rytmem plynoucím z použitého skladebného modulu a abstraktním černým pláštěm přístavby.
Provoz
Přístavba vznikla především kvůli potřebě velkého denního obytného prostoru a soukromé ložnice. K nim doplňujeme zázemí (toaletu, šatnu, technickou místnost/sklad) a nutné komunikační prostory.
Stavebně technické řešení
Konstrukční systém / dřevěná rámová konstrukce
Základy / betonové pasy + deska
Nosné stěny / dřevěná rámová konstrukce / difuzně otevřená skladba stěny
Strop / strop dřevěný trámový
Obvodový plášť / obvodový plášť z cementovláknitých desek Cembrit na provětrávaném roštu
Střecha / plochá, jednoplášťová, nevětraná / krytinou je fólie
Příčky / dřevěné rámové
Podlahy / podlahy vinylové
Vnitřní povrchy / povrchy stěn a stropů bude tvořit převážně nátěr na SDK
Vnější povrchy / Cembrit ZENIT 510 Erebus
Okna / dřevěná
Dveře / vnitřní dveře obložkové, plné (sklad – pracovna, koupelna) a posuvné do stavebních pouzder v příčkách
Klempířské výrobky / venkovní parapety a oplechování atik bude provedeno barveným zinkovým plechem
Zámečnické výrobky / krbová vložka
Venkovní úpravy / schodiště a plocha spojující plochu před domem se zpevněnou plochou před původním domem se zpevněnou plochou před původním domem masivní dřevěné
- Autoři: Pavel Plánička, Bruno Panenka
- Ateliér: 3+1 architekti
- Země: Česká republika
- Město: Bořislav
- PSČ: 415 01
- Datum projektu: 2013
- Realizace: 2014
- Užitná plocha: 75.00m2
- Zastavěná plocha: 110.00m2
- Plocha pozemku: 1 600.00m2
- Materiál: Fasádní desky - CEMBRIT
- Foto ©: Pavel Plánička
Související projekty
Související architekti
Související ateliéry a firmy
Mohlo by vás zajímat
























