Progres Ateliér - Základní škola Járy Cimrmana
Budova původně obecné školy, byla dokončena v roce 1934 podle návrhu architektů V. Vondráška a Ing. J. Kubína. Za dobu své existence prošla několika stavebními úpravami různé technické i architektonické úrovně.
Během posledních let bylo zpracováno několik studií, které měly řešit nedostatek volných míst pro nové žáky a zároveň provozní kolize a špatný technický stav některých částí budovy. Všechny návrhy počítaly s dostavbou nového objektu směrem do školní zahrady. Po důkladné analýze navrhujeme odlišný přístup.
Myslíme si, že je správné se v rámci projektu věnovat problematickým místům vzniklým nešetrnými stavebními zásahy a nově vzniklými provozními nároky. Nenavazujeme proto na nekvalitně řešené části, nedolepujeme další apendix, ale pracujeme s návrhem v dialogu s původní historickou budovou. Zvenku samozřejmé doplnění nechává uvnitř vzniknout moderním, zajímavým a prosvětleným prostorům.
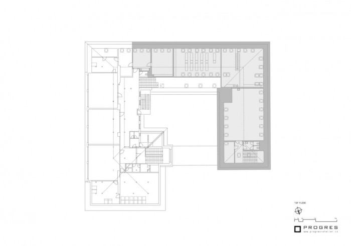
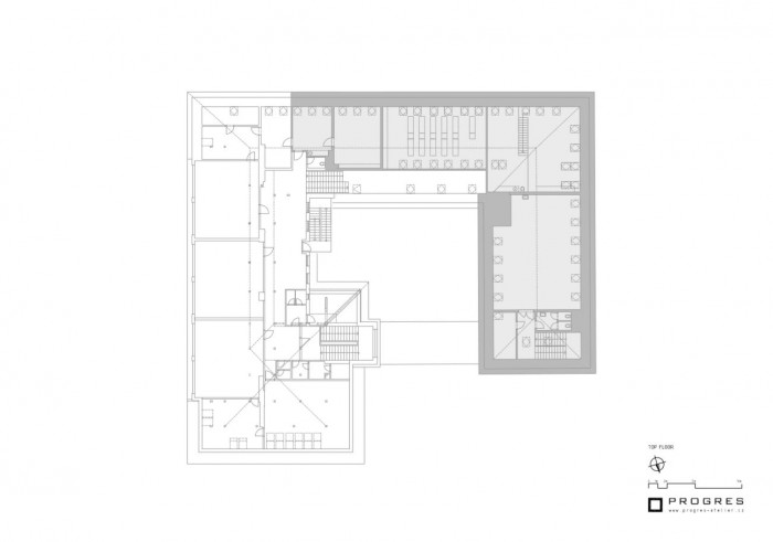
Novou nástavbu navrhujeme nad půdorysem tělocvičny a jejím zázemím. Velkorozponové ocelové nosné rámy, dávají vzniknout převýšeným podkrovním prostorům pro výuku výtvarné výchovy, chemie fyziky a aktivity školní družiny. Specializované učebny jsou velkoryse otevřené do hřebene krovu ve výšce sedmi a půl metru. O příjemné studijní prostředí se stará oboustranné nasvětlení denním světlem a akustický obklad z dřevovláknitých desek. Do méně kvalitních prostor v historické budově umisťujeme hlavní šatny pro 300 žáků. Jejich dominantou je tunu vážící dubový kmen, který musel své místo v šatnách najít bez pomoci mechanizace.
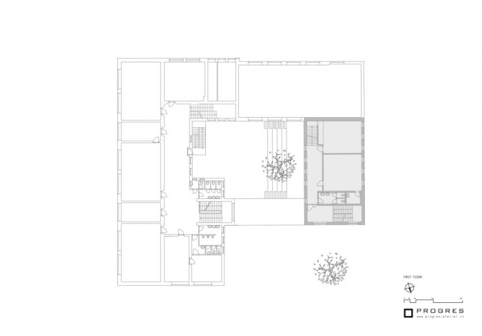
Největší učebna školní družiny o rozloze 75 m2 se nachází v přízemí a je napojena na zpevněnou plochu vnitřního atria s přírodním amfiteátrem. Může sloužit jako multifunkční prostor pro různé školní i mimoškolní akce (semináře, workshopy, setkání, zasedání...). Všechny učebny jsou doplněny autorskými grafikami s motivy divadelních her Járy Cimrmana. Chráněné atrium se solitérním stromem volně parafrázuje rajský dvůr kláštera. Jeho náladu spoluurčuje použití přírodních materiálů – žulové dlažby malého formátu tzv. Pražské mozaiky a masivních dubových trámů pro posezení v hranách schodů. Po instalaci projekčního zařízení je obcí rovněž využíváno jako letní kino.
Nezávislý provoz družin zajišťuje přístavba schodiště a zázemí. Nerezová pavučina natažená zrcadlem schodiště přes všechny patra slouží jako zábradlí i galerie výtvarných prací žáků. Provozně jsou nové části napojeny jak na stávající komunikační systém školy, tak na nově navržený bezbariérový vstup v severní části, který umožňuje oddělit provoz školy a družiny. Spojovací krček mezi starou a novou částí školy je potažen polotransparentní mlhou z bílého tahokovu.
Díky konceptu stavění nad již zastavěným půdorysem minimalizujeme zásahy do školní zahrady a vzniká tak prostor pro adekvátní předpolí nového vstupu. Parter tvoří kombinace žulových, betonových, dubových a rostlinných povrchů. Školní zahradu chrání plot z ocelové pozinkové pásoviny, který díky navrženému rozestupu lamel otevírá při chůzi po chodníku rozmanité průhledy kolemjdoucím.
Poděkování patří investorovi (městská část Praha Lysolaje), který nám po celou dobu projektu důvěřoval a podpořil naše myšlenky v kritických bodech při realizaci.
- Autoři: Jan Kalivoda, Vojtěch Kaas
- Ateliér: Progres architekti
- Spolupráce: Petr Sova, Milada Vorzová
- Země: Česká republika
- Město: Praha - Lysolaje
- Realizace: 2018
- Zastavěná plocha: 1 124.00m2
Související projekty
Související architekti
Související ateliéry a firmy
Mohlo by vás zajímat