Projectstudio8 - Školní družina Újezd
Byli jsme osloveni ke zpracování rekonstrukce stávající družiny. Po pracovní schůzce jsme nějakou dobu přemýšleli, co je vlastně na zadání divného. Výsledkem našeho uvažování bylo, proč stávající školní družina v tak nevýhodné poloze ve vztahu ke škole. Každý den byly děti doprovázeny celých 900m (11min.) ze školy do družiny, což značně komplikovalo celou situaci z hlediska času a logistiky. Stávající budova družiny byla umístěna mezi rodinnými domy a její dispozičně provozní řešení bylo poplatné dispozicím „rodinného domu“ s náplní pro školní účely. Ve výsledku by se jednalo jen o opravu budovy a doplnění herních prvků v zahradní části. Naším návrhem bylo jedno jediné možné řešení, optimalizace celého provozu školy. Vedení školy naštěstí naše rady vyslyšelo. Výsledkem bylo přemístění školní družiny ke škole formou přístavby. Návrh poskytuje zjednodušení celého provozu a přímý kontakt se zahradou a školním hřištěm.
Urbanistický charakter území
Jedná se o území přilehlé hlavní ulice Zábělské. To je zastavěno ortogonální uliční sítí s blokovou zástavbou převážně rodinných s příslušnou občanskou vybaveností. Jedním z míst občanské vybavenosti je předmětem řešení-ZŠ Plzeň Újezd.
Řešené území
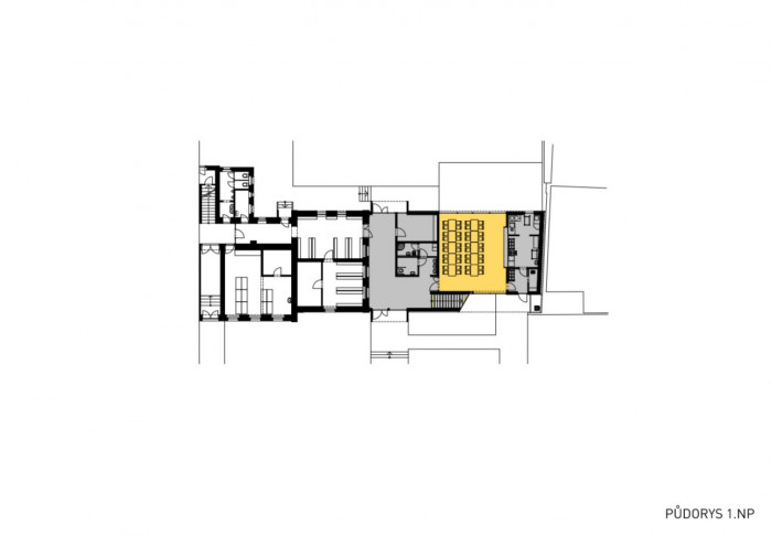
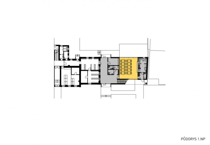
Jedná se o pozemek na křižovatce ulice V Brance a Školní v nárožní poloze. Na stávajícím pozemku se nachází dvoupodlažní objekt školy s podkrovím, s hřišti a zahradou. Ten je umístěn jeho delší fasádou k ulici Národní. Naším záměrem je část pozemku zastavět novým objektem. Důvodem je absence plnohodnotné doplňkové vybavenosti školy-školní družiny, kterou navrhujeme umístit po pravé straně od stávajícího hlavního vstupu do školy místo stávajícího zděného plotu. Dotvoříme tak uliční čáru. Tímto umístěním jasně vymezíme uliční část a zahradu se sportovní vybaveností. Dojde tak k nové distribuci funkcí uvnitř objektu. Hlavní vchod umisťujeme do objektu nového. Ten navazuje na pomyslnou osu (spojnici) mezi ulicí a zahradou. Svým umístěním rozděluje provoz školy a provoz družiny.
Architektura
Družina je dimenzována tak, aby hmotově nekonkurovala stávajícímu dvoupodlažní objektu školy se sedlovou střechou. Ta je navržena jako dvoupodlažní se střechou plochou. Hlavní hmoty objektů jsou od sebe odsunuty, aby byla zvýrazněna návaznost v časové ose. Ke kontaktu dochází pouze v přízemí, ve vstupní část. Záměrem je jít v kontrastu k historizujícímu stylu školy, která byla vystavěna na počátku 19. stol. Nově vzniklý objekt je pojat v minimalistickém stylu, jako dřevěný hranol.
Vstupní část je zvýrazněna rukávcem, který chrání uživatele před nepřízní počasí a probíhá do zahrady, kde je ukončen stejným architektonickým prvkem. Hmota nástupu je zaklesnuta do hlavní hmoty objektu. Tu tvoří dřevěný hranol s propsaným schodištěm do fasády z uliční části. Pod vykonzolovaným schodištěm tak vzniká krytý servisní vchod, který je funkčně upozaděn oproti hlavnímu vchodu. Ze zahradní zóny se do objektu propisují dvě pásová okna vzájemně posunutá oproti sobě v horizontálním směru sloužící k vizuálnímu kontaktu se zahradou. Zbytek okenních otvorů je na fasádě potlačen dřevěným předsazeným roštem. Ten je v nárožních částech z ulice rozředěn větším rozpalem a jiným druhem řeziva, aby došlo k rytmizaci fasády a různým propustnostem světla ve večerních hodinách z interiéru do exteriéru. Rošt dále plní funkci estetickou, kde za použití přírodních materiálů dochází k většímu kontaktu a souznění s okolní zelení a dalšími přírodními prvky okolí. Vymezuje a akcentuje relaxační funkci nového objektu oproti strohé klasické budově k účelům výuky.
Dispoziční řešení
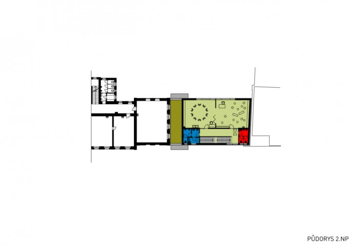
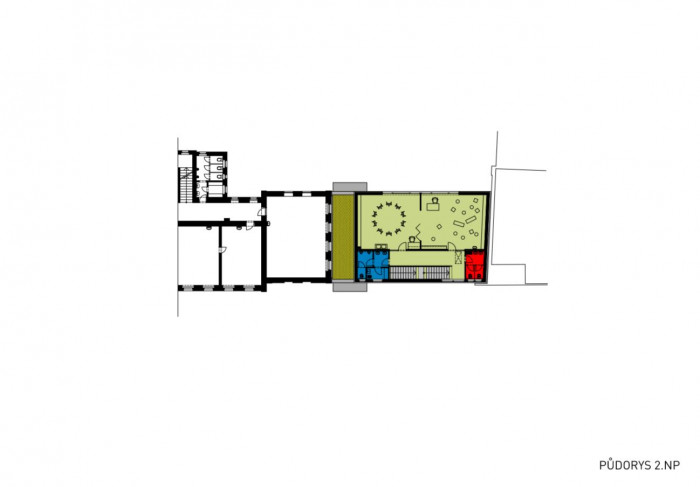
Přístavba školy je dvoupodlažní. V přízemí je vstupní chodba umožňující vstup z ulice Národní i ze dvora školy. Z této chodby je přístup do školní jídelny, sociálního zázemí jídelny, kabinetu i do stávající budovy školy a dále pak na schodiště do 2. NP přístavby. Výdejna jídelny je pak přístupná přes chodbu přímo z jídelny, nebo z vnějšího prostoru, od Národní ulice. Navazující prostory v přízemí původní budovy budou upraveny. Z původních šaten a místnosti správce bude zřízena odborná učebna s kabinetem, v původní rekreační učebně bude zřízena průchozí šatna, šatna bude zřízena i v části stávajícího nevyužitého prostoru, ve zbylé části bude stavebně oddělený sklad. Ve 2. NP přístavby jsou umístěny 2 místnosti vzájemně propojené skládací akustickou stěnou, každá se samostatným vstupem. Obě místnosti jsou určeny pro provoz a potřeby školní družiny, jedna z nich je navíc uvažovaná jako výtvarná třída používaná pro účely školní výuky. Ve 2. NP jsou umístěny toalety zvlášť pro chlapce a dívky a úklidová místnost, ve které je umístěn plynový kotel pro vytápění přístavby.
Vstupní část respektuje kontakt mezi novou a stávající částí. Dochází zde ke kontaktu mezi historizující přiznanou fasádou v interiéru, která je doplněna prvky interiéru designově korespondující s novým objektem. Niky po zazděných oknech jsou využity jako místo pro informační systém a prezentaci školy.
Materiálové řešení interiéru je navrženo v kontrastu k přírodnímu exteriéru nového objektu. Jednotlivé provozy jsou barevně odlišeny v podlahové ploše v základních barvách, žluté, zelené, oranžové, modré a zelené. Stejně jsou akcentovány i hlavní vstupy do v interiéru.
Stropy hlavních místností jsou opatřeny protihlukovým systémem, který je rytmizován ve dvou úrovních a nepravidelným půdorysným umístěním (cik-cak).
- Autoři: Bohuslav Strejc, Ondřej Janout, Jiří Korelus
- Ateliér: projectstudio8
- Země: Česká republika
- Město: Plzeň - Újezd
- Ulice, číslo: Národní, 1
- Datum projektu: 2018
- Realizace: 2018
Související projekty
Související architekti
Související ateliéry a firmy
Mohlo by vás zajímat