Radek Hadrbolec - Dům v sadu
Původně zemědělská usedlost se nachází na okraji v klidné části obce Hradečno. K usedlosti přiléhá stodola a působivý starý ovocný sad ve svažitém terénu s úvozem. Svah stoupá směrem k jihu, kde je přístup z komunikace do zadní části zahrady a nová kamenná garáž zapuštěná do svahu.
Investor chtěl pro potřeby trávení volného času, relaxace a sportu krytý bazén s víceúčelovou otevřenou halou. Jelikož si nové prostory bazénu a aktivit volného času vyžádaly značné nároky na místo, bylo by hmotově obtížné a nereálné rozšiřovat, „přilepovat“ další hmotu k jednoduché původní stodole (současný hobby objekt). Proto se přistoupilo k řešení samostatně stojícího objektu, vzhledem k dostatečně prostorné zahradě. Vznikl tvarově banální „dům v sadu“ - kamenný kvádr se sedlovou střechou a proskleným průčelím.
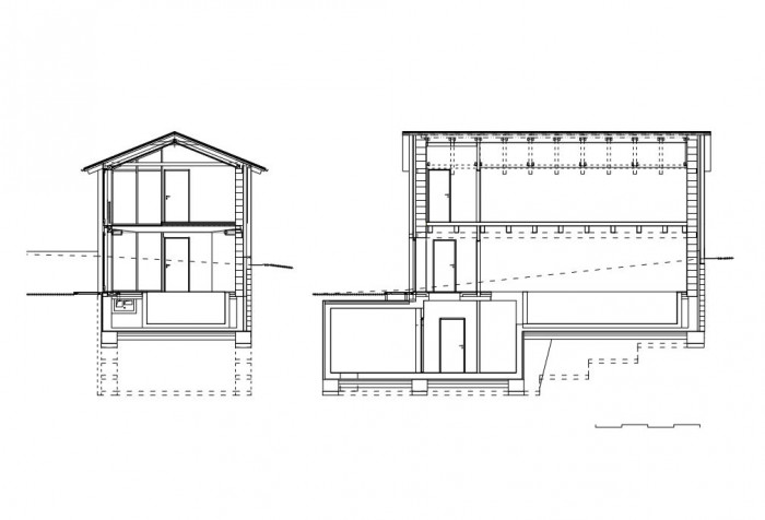
Návrh samostatného domu dále vycházel z myšlenky vtáhnout krásný sad s jeho atmosférou do interiéru, žít s ním, což dosud stávající hlavní dům, vzhledem ke své poloze, neumožňoval. Proto byla volena i prosklená dřevěná fasáda opticky přes dvě podlaží - umocněna v interiéru skleněnou podlahou zajišťující dostatek světla pro bazén. Kamenná cestička spojující garáž kopíruje původní úvoz. Byly voleny materiály zapadající přirozeně do krajiny a historie - dřevo, kámen, sklo, černý kov.
Nosný obvodový plášť je tvořen keramickým zdivem, minerální vlnou, provětrávanou mezerou a kamennou přizdívkou. Trámové stropy a nosné sloupy jsou z lepeného dřeva.
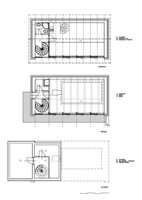
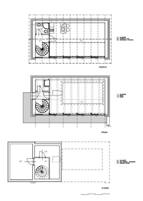
Dispozice domu je přehledná a jednoduchá. V přízemí se umístil bazén se sprchou, v zádveří je točité schodiště a šatna. V částečně podsklepeném suterénu se nachází kotelna s tepelným čerpadlem a zázemí pro chod bazénu. V patře vznikl otevřený prostor - pro volný čas, posezení, relaxaci i ubytování hostů - se sociálním zázemím. Do budoucna přibude lávka propojující patro s podkrovím původní stodoly.
- Autoři: Radek Hadrbolec
 - Země: Česká republika
 - Město: Hradečno
 
Mohlo by vás zajímat