Dlouholeté přátelství usnadnilo návrh

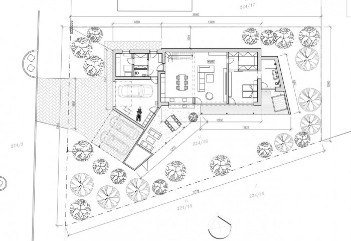
Snahou autora bylo již od samého začátku umístit dům na pozemku tak, aby byla maximálně využita zahrada. Ideálně tak zpřístupňuje světové strany a vytváří uživatelům domu potřebné soukromí a současně plně odpovídá základním principům pro pasivní fungování domu.

Projekt domu byl dotažen tak, jak si přál investor ale i architekt. Dům se tvořil ve společné symbióze obou hlavních aktérů díla, které pojí dlouholeté přátelství ze společných hokejových utkání. Díky tomu architekt od samého začátku znal potřeby a přání investora na bydlení, což významně usnadnilo práci na návrhu domu.

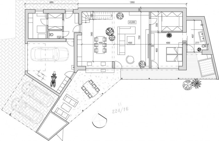
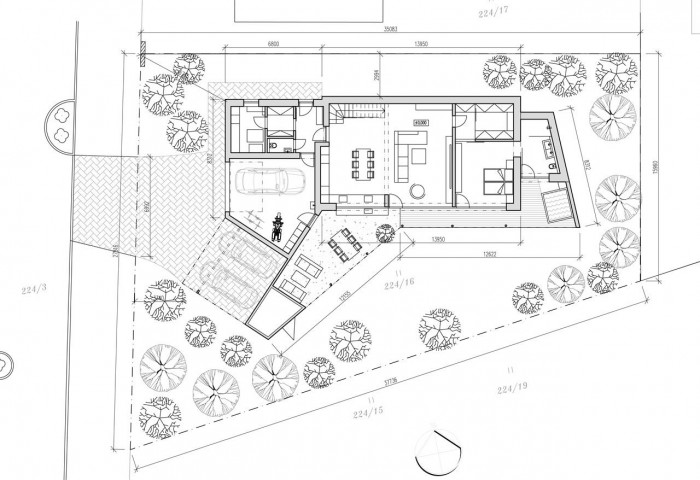
Lichoběžníková terasa jako zpestření jinak pravoúhlé dispozice

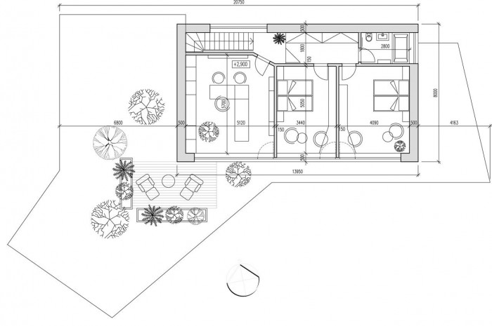
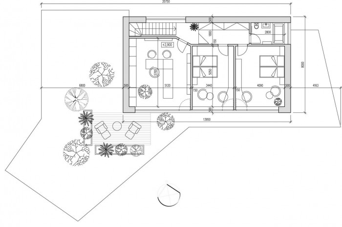
Základním tvarem domu je lichoběžník s plochou střechou. Dispozičně se jedná o dvoupodlažní rodinný dům s garáží, se skladem a přístřeškem pro parkování dvou osobních aut. Dispozicí představuje dům jednu obytnou jednotku 5+kk. Přízemí domu dominuje velká prosklená stěna orientovaná na jih, směrem do zahrady. Toto řešení je dáno orientací ke světovým stranám a snahou o maximální oslunění domu a využití parcely. Tvar 2. nadzemního podlaží kopíruje část přízemí a je ve tvaru obdélníku, rovněž jižní strana patra, kde jsou umístěny ložnice a pracovna, je prosklená. Součástí domu je krytá terasa, ukončena z jedné strany skladem a z druhé strany vířivkou, která je navíc chráněna stínící roletou. Prostorově velkorysá terasa umožňuje obyvatelům domu přímý kontakt se zahradou.

Pasivní dům

Rodinný dům je proveden jako pasivní, a to především díky orientaci prosklených stěn ke světovým stranám a vhodně zvoleným stavebním materiálům. Použité tepelněizolační materiály vykazují vynikající parametry a konstrukce jsou provedeny velmi těsně. Obytné místnosti jsou orientovány na jih, ke kterému se otvírají celoprosklenými stěnami. Již v samotném návrhu bylo třeba myslet na ochranu před nežádoucími tepelnými zisky, takže okna jsou vybavena roletami nebo žaluziemi. Dům je dále vybaven řízeným větráním s rekuperací tepla.

Stavba byla postavena zděnou technologií se zateplením minerální rohoží do roštu, s provětrávanou mezerou. Vrchní plášť navrhl autor v kombinaci dřevěného obkladu v podobě latí a vláknocementových desek Cembrit Patina v šedém odstínu.

Kombinace těchto dvou materiálů a struktur spolu s použitou bílou omítkou dále člení jinak v zásadě jednoduchou základní hmotu domu.

Konstrukce stropu a schodiště je železobetonová. Nosné konstrukce plochých střech jsou tvořeny dřevěnými profily ve spádu střechy.

Komfortní bydlení s nízkými provozními náklady

Dům svým kvalitním návrhem a provedením splňuje požadavky na komfortní a příjemné bydlení a současně vykazuje nízké provozní náklady na energie. Výsledné dílo bylo za společného úsilí architekta a investora dokončeno včetně zahrady, oplocení a interiéru.

Generální partner
Hlavní partneři