R

Rekonstrukce řadového domu Brno | Rekonstrukce řadového domu v Brně

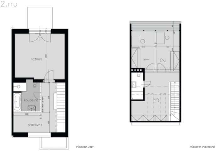
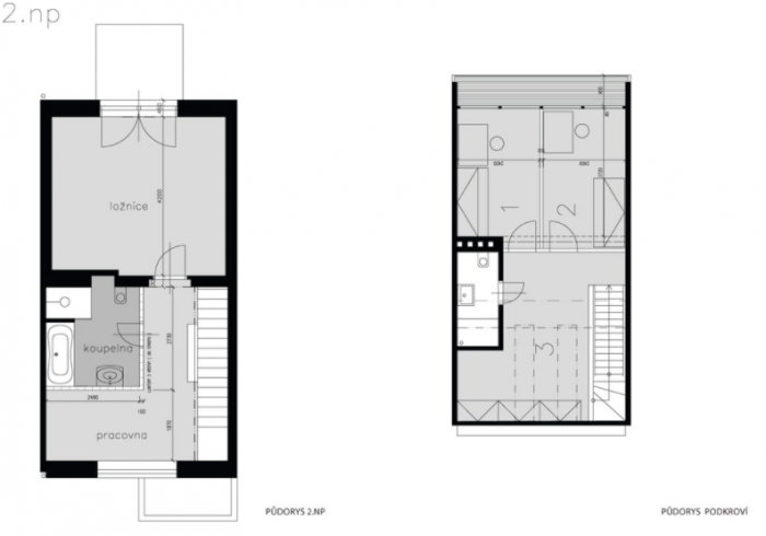
Řadový dům z dvacátých let je raně funkcionalistického střihu. Velice úsporná, avšak velmi efektivní dispozice, nabízí zajímavé detaily, ztracené i znovu objevené střípky. Dům vyniká svojí proporcí v šířce traktu cca 5 m, hloubce cca 12 m a výšce 3 běžných pater. Ztepilá silueta domu pak distribuuje vnitřní prostory do dvou obytných pater a nabízí krásné vnitřní členění místností do ulice či do zahrady. Takto je dáno rozvržení místností: kuchyně do ulice, jídelna uprostřed, obývací pokoj do zahrady, pracovna do ulice, uprostřed koupelna, ložnice do zahrady.

Při rekonstrukci jsme postupovali obratně, zanechávali podstatné, nahrazovali zastaralé či technicky zaostalé, vkládali nové prostory s respektem k podstatě domu. Zbudovali jsme třetí obytné patro v podkroví vložením jednoprostoru vygradovaného celoprosklenou stěnou s lodžií. Prostor není ničím rušen či dělen, jen v jeho dlouhé straně u komína budujeme malou koupelnu se sprchou a WC. Prostor bude mít svoje využití v čase. Nejprve je předpokládáno užití volnočasové, reprezentační, relaxační. Jeden velký univerzální prostor, kde můžete hrát stolní tenis, cvičit jógu nebo gymnastiku, posedět s přáteli, malovat, pít víno, tančit. Na lodžii spočinete se zrakem k centru Brna nebo vydechnete na čerstvém vzduchu. Až přijdou děti, zde bude jejich zemský ráj. Bude-li třeba pokojů, přibudou i ty. Možnosti dělení jsou umožněny. Odejdou-li děti posléze za svými starostmi, je možné prostor opět přetvořit na jednu velkou galerii. Druhým velkým zásahem je rozšíření sklepních prostor.

Generální partner
Hlavní partneři