Rodinný dom Brusnicová A

Pozemok sme rozdelili na dve rovnaké časti, každý dom má teda 330metrový pozemok. Obidva domy majú podobný základný pôdorys a dispozičnú logiku, no predsa sú úplne iné. Majitelia mali celkom iný zoznam priorít, čo sa odrazilo na finálnej architektúre každého domu.

Čo majú obidva domy spoločné?

približne rovnaký pozemok – 330 m2 rovnaký pomer zastavanej plochy (62 m2 / 60 m2) a pozemku s maximálne využitým priestorom rovnakú úžitkovú plochu 180 m2 prepojenie interiéru so záhradou centrálne schodisko vstup bez predzáhradky a plotu – fasáda obidvoch domov je totožná s uličnou čiarou, ktorá je viac-menej zhodná s hranicou pozemku = ušetrili sme tak priestor pre záhradu alebo obytnú časť

Čo majú rozdielne?Dom A

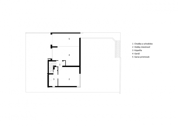
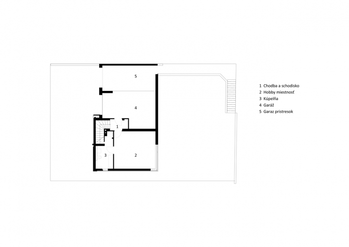
Vďaka prevýšenému pozemku je dom A oproti domu B situovaný o 1,2 m vyššie.

Do zapusteného podlažia sme umiestnili dvojgaráž, hosťovskú izbu, kde sa nám podarilo dostať denné svetlo a kúpeľňu.

Na prízemí sa nachádza vstup a veľkorysý obytný priestor s kuchyňou, odkiaľ sa priamo vchádza na terasu so záhradou. Obytnému priestoru dominuje centrálne schodisko s vnútorným krbom.

Vo vnútri domu je maximálne využitý priestor, sedačka v obývačke funguje na 2 strany, ako pohodlnejšie sedenie v jedálenskej časti, ale na druhej strane ako klasická pohovka s ležadlom smerom k plátnu. Obytný priestor vďaka tomu, že nemá žiadne priečky pôsobí optický vyšší, no výška stropu je štandardná – 2,7 m.

Na prvom podlaží sa nachádzajú 3 spálne, kúpeľňa a veľký šatník. Nad prvým podlažím sa nachádza terasa s impozantným výhľadom na Bratislavu.

Generální partner
Hlavní partneři