Rodinný dům Košťálov

Místo

Obec Jenčice, pod kterou dříve samostatný Košťálov patří, leží na jihovýchodním úpatí čedičové kupy Košťál. Zástavba obce šplhá podél obecní komunikace víc než jeden kilometr severozápadně směrem ke zřícenině hradu Košťálov na vrcholu kupy (zhruba 500 m.n.m).

„Rozhled z vrchu, zvláště v době jarních květů ovocného stromoví, jest nezapomenutelný“ – píše se v rubrice Historie obce na jejích internetových stránkách.

Stavebníkova parcela na severním konci obce je spojem a zároveň hranicí mezi zástavbou a volnou krajinou. Velikost, tvar, materialita i barevnost domu a také umístění a orientace navazuje na charakteristickou zástavbu obce.

Přesto jsme se s návrhem nevyhnuli vleklému sporu se Správou CHKO České Středohoří o soulad domu s krajinným rázem a místně obvyklými pozitivními charakteristikami. Jen díky vytrvalosti a vůli stavebníka a závěrečné ministerstvem životního prostředí nařízené změně nesouhlasného stanoviska Správy CHKO, to nakonec dopadlo dobře.

Cíl

Stavebníkův záměr byl přímý a jasný – postavit si v rodné vsi solidní, pokud možno v místě samozřejmý dům a hospodařit. Chtěli jsme navázat na generace anonymních stavitelů, kteří tu dřív pracovali přirozeně a s jistotou a postavili tady spoustu jednoduše krásných domů a hospodářských stavení, kterých je ale v současnosti mnoho na hraně existence.

Mizí povědomí a poptávka po původních účelech, ztrácí se tak obsah a s ním nutná starost. Odchází střechy, poté různou rychlostí vnitřnosti domů, nakonec zůstávají obvodové zdi, základ a pak nic.

Dům v Košťálově je tvarově i dispozičně jednoduchý. Je to víc úkryt než vyhlídka, nebo výloha – tedy hmotné zdi a otvory na nutných a (snad) správných místech. Příroda je venku, všude kolem.

Přízemí domu, nese po obou delších stranách vikýři nepravidelně zalamované okraje střechy. Ta může volně odkazovat na zubatou siluetu Košťálova, případně Hazmburku – dvou na pozemek „dohlížejících“ dominant. Horizontalita vztahuje dům k obci, vertikála okenních otvorů pak k vrchu Košťál a dál.

Kámen na obvodový plášť domu z nedaleké bourané stodoly je fyzicky konkrétním projevem kontinuity místa. Byli bychom rádi, kdyby sem dům brzo přirozeně patřil a kdyby se v něm stavebníkova rodina cítila co možná nejdřív doma.

Provoz

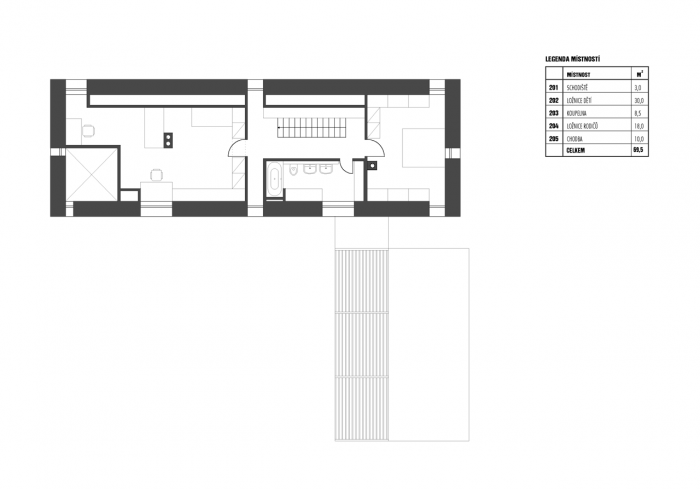
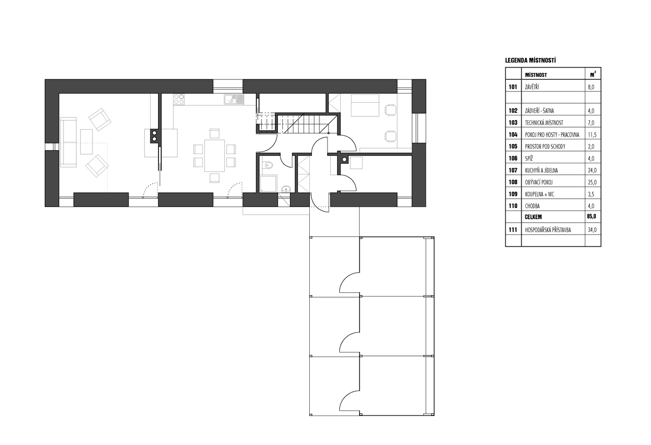
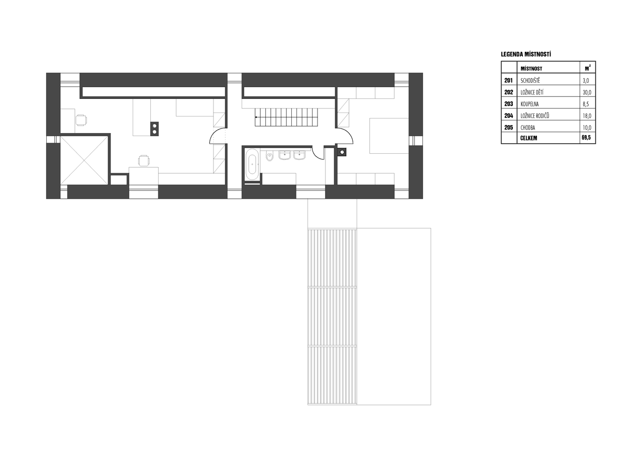
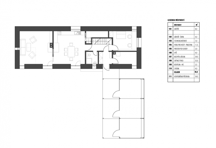
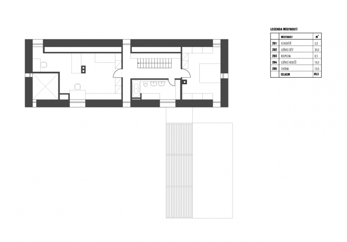
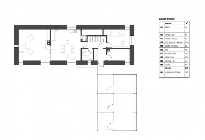
Dispozičně dům navazuje na tradiční trojdělení venkovských domů. Vstupuje se do něj ze dvora, od jihu. Vzhledem k současným nárokům na užívání a provoz v domě dochází k částečné proměně náplně a proporcí jednotlivých dílů dispozice. Denní obytná místnost je v části své půdorysné plochy otevřena do podkrovního prostoru. Předpokládáme, že vertikalita a různé typy a intenzity denního světla, dodají společenskému prostoru jistou svátečnost. Zároveň tím v podkrovním dětském pokoji vznikají (ještě za pomoci komínu, který prostorem prochází) zákoutí s proměnlivou intenzitou osvětlení – od jasných míst až po tmavé kouty. Mysleli jsme tu na dobrodružství a atmosféru starých půd.

Dvůr před domem přecházející plynule v sad je vymezen dřevěným hospodářským stavením (skladování, dílna, sušárna, venkovní kuchyně…).

V jižní části pozemku jsme se stavebníkem v průběhu stavby nalezli vhodné místo pro jednoduchý zakopaný sklep (ovoce, víno) a seník.

V severozápadní části zahrady se pak chystáme na malý ovčín.

  • Ateliér: 3+1 architekti
  • Autoři: Pavel Plánička, Bruno Panenka, Matěj Páral
  • Země: Česká republika
  • Město: Jenčice
  • Ulice, číslo: Jenčice 148
  • PSČ: 411 15
  • Datum projektu: 2008
  • Realizace: 2014
  • Užitná plocha: 155.00m<sup>2</sup>
  • Zastavěná plocha: 122.00m<sup>2</sup>
  • Plocha pozemku: 3 202.00m<sup>2</sup>
Generální partner
Hlavní partneři