Rodinný dům od NOSCALE
 
                                
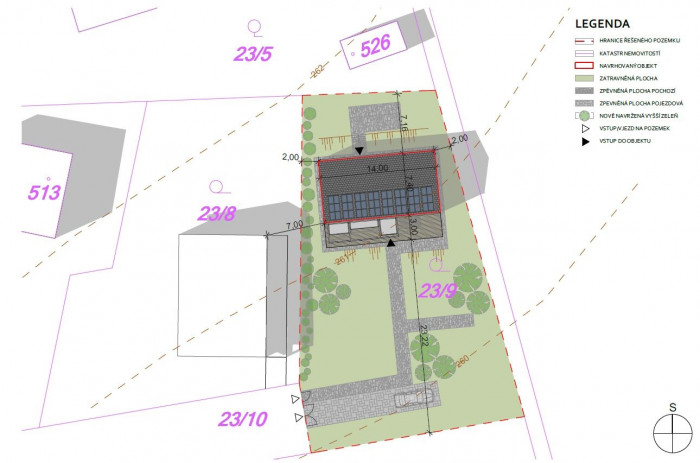
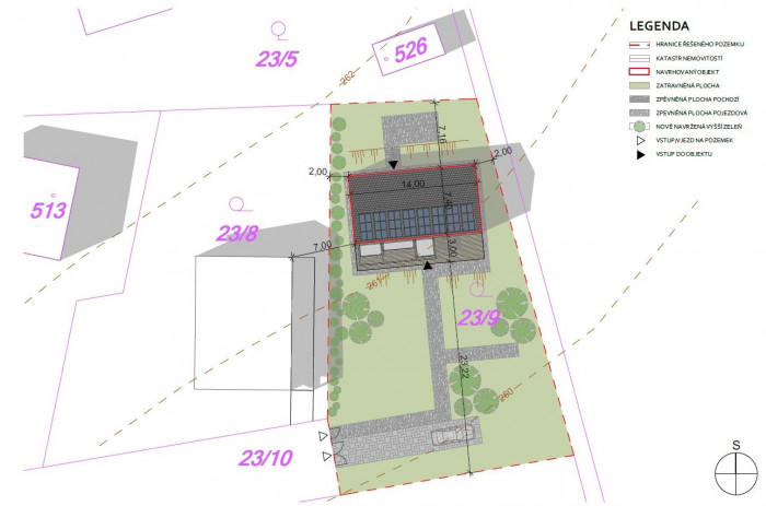
                                Studie představuje novostavbu rodinného domu pro individuální bydlení. Místo určené k zástavbě se nachází v obci Dolínek tvořící jihovýchodní část obce Odolena Voda. Parcela je přibližně ve tvaru lichoběžníku, který se svahuje směrem k jihu. Pozemek je dopravně obsloužen soukromou příjezdovou komunikací, která je napojena v jihovýchodním cípu pozemku. Návrh se snaží respektovat základní architektonické a urbanistické charakteristiky daného území.
Půdorys domu je obdélníkový o vnějších rozměrech 14 x 7,4 m. Dům je umístěn v severní části parcely, a to z důvodu dodržení odstupových vzdáleností od stávající zástavby a také z důvodu maximálního využití jižní části pozemku pro zahradu. Hmota domu je tvořena kompaktním dvoupodlažním kvádrem s mírnou sedlovou střechou. Architektonická forma navrhovaného domu je minimalistická a nechává vyznít především kontrast světlé omítky s technickými detaily v antracitové barvě. Tyto detaily jsou tvořeny především pergolou, rámy oken a dveří či oplechováním. Při jižní fasádě je navržena terasa, která navazuje na obývací pokoj. Vstup do domu v 1.NP je zapuštěný a díky tomu krytý před nepřízní počasí.
Dispozičně je 1.NP řešeno jako společenská část. Ze zádveří se vstupuje do chodby s přímým schodištěm. Chodba dále navazuje na obývací pokoj s kuchyní při západní straně. Na straně východní pak chodba navazuje na pracovnu a zázemí domu tvořené WC, technickou místností a prádelnou. Klidová část domu je umístěna ve 2.NP, které je zpřístupněno schodištěm z chodby. Zde se nachází dva dětské pokoje a ložnice rodičů se šatnou a samostatnou koupelnou. Hygienické zázemí určené převážně pro dětské pokoje je přístupné z chodby a je tvořeno koupelnou a samostatným WC. V návaznosti na příjezdovou komunikaci je navrženo místo pro jedno až dvě nekrytá automobilová stání.
Rodinný dům je koncipován jako nízkoenergetický, čemuž se podřídily některé aspekty návrhu: jednak bylo maximální možné množství oken umístěno na jižní stranu, jednak i elementární hmota domu má za úkol přiblížit se ideálnímu poměru povrchu domu ku jeho objemu.
Dům je momentálně ve výstavbě.
- Autoři: Ondřej Otýpka
- Ateliér: NOSCALE architects
- Země: Česká republika
- Město: Odolena Voda
- Datum projektu: 2014
- Realizace: 2017
- Užitná plocha: 205.10m2
- Zastavěná plocha: 103.60m2
- Plocha pozemku: 892.00m2
Související architekti
Související ateliéry a firmy
Mohlo by vás zajímat
 
				 
				 
				 
				 
				 
				 
				 
				 
                             
                             
                             
                             
                             
                                 
                             
             
             
            		 
            		 
            		 
            		 
            		 
                                                                                                             
                                                         
                                                         
                                                                                                             
                                                         
                                                         
                    