Rodinný dům v Mníšku pod Brdy
Hned první dojem z pozemku zásadně ovlivnil návrh. Krásná stará zeď, mírně se svažující terén k jihu, ukončený potůčkem, s výhledem na stromy a siluetu zámku. Genius Loci jako z učebnice. Rozhodnutí o zachování stěny bylo jasné od začátku, bylo nám líto, že ostatní sousedé zeď bourají. Nejenom že jsme tím ušetřili, ale především je zachována romantika místa a její historická hodnota.
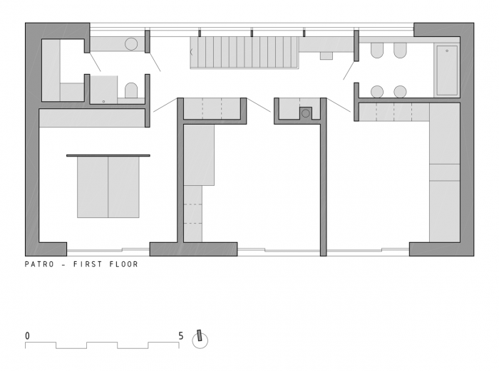
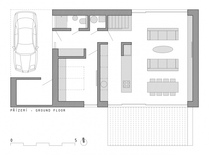
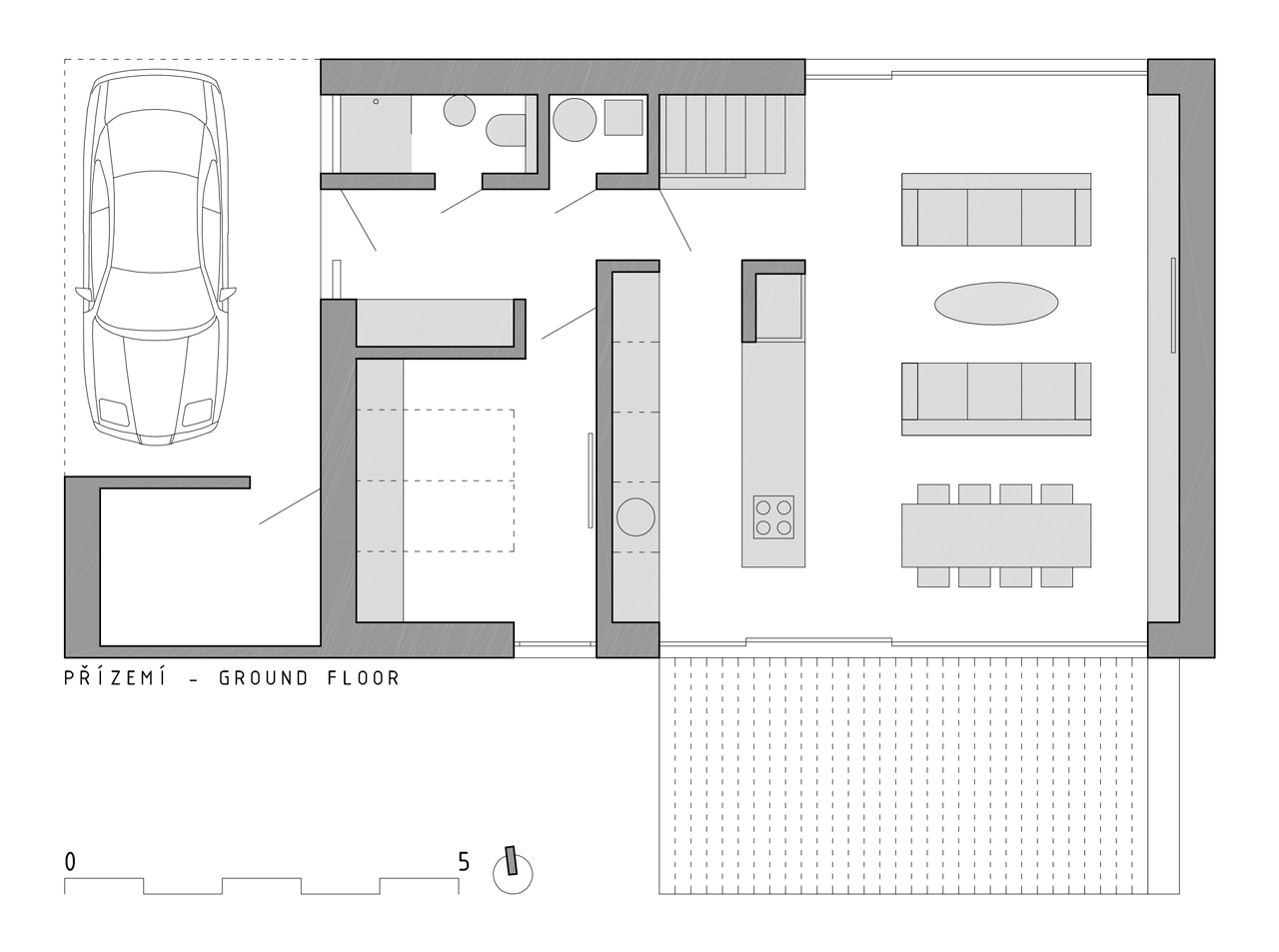
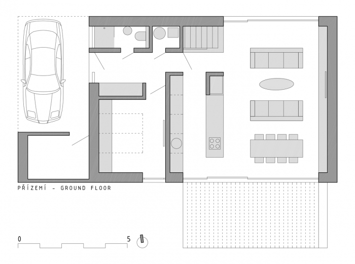
Dům jsme schovali 8 metrů za stěnu tak, aby mezi ním a zdí vznikl intimní prostor s odlišným charakterem od hlavní otevřené zahrady. Obývací pokoj se na jedné straně tradičně otevírá k jihu a k dálkovému výhledu, na druhou stranu je průhled k severu ukončený původní zdí. V patře jsou všechny pokoje otevřeny do zahrady okny přes celou výšku. Ze severu je patro přisvětlováno horním pásovým oknem, aby bylo zachováno soukromí uživatelů.
Vzhledem k požadavku stavebního úřadu nařizující šikmou střechu jsme se po dohodě s klienty a jejich silné podpoře shodli na tom, že podstoupíme několikaměsíční úřednický boj. Museli jsme získat kladná stanoviska od památkového ústavu, městského architekta, rady města a na závěr od samotného stavebního úřadu. Vložená energie, víra a odhodlání se vyplatila. Získali jsme stavební povolení na dům takový, jaký jsme si s klienty vysnili. Fungující a bez kompromisů.
- Autoři: Vladimír Vašut, Erika Vašutová
- Ateliér: under-construction architects
- Spolupráce: Martin Mihály, Ludmila Malá
- Země: Česká republika
- Město: Mníšek pod Brdy
- PSČ: 252 10
- Realizace: 2014
- Užitná plocha: 178.00m2
- Zastavěná plocha: 130.00m2
- Plocha pozemku: 1 110.00m2
Související projekty
Související architekti
Související ateliéry a firmy
Mohlo by vás zajímat