S

Schaufler-Roskovec - RD Řevnice

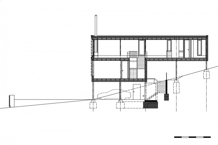
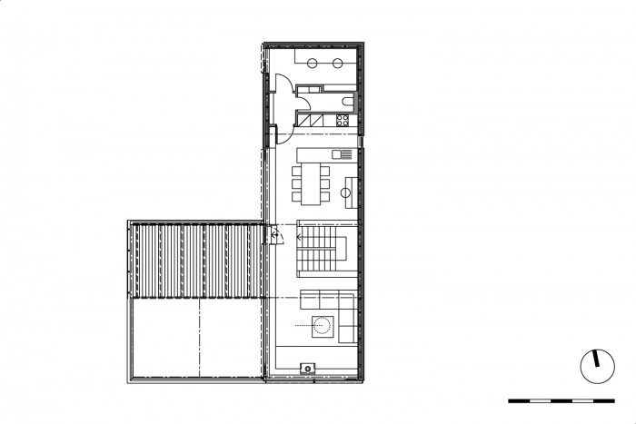
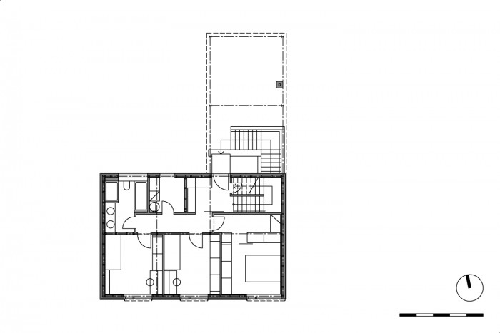
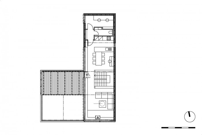
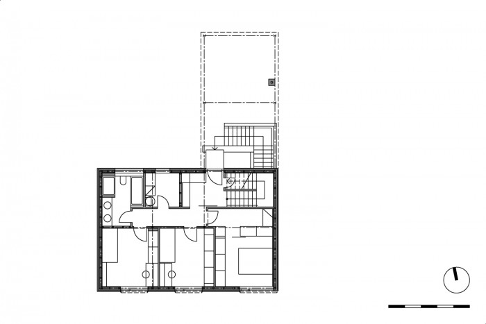
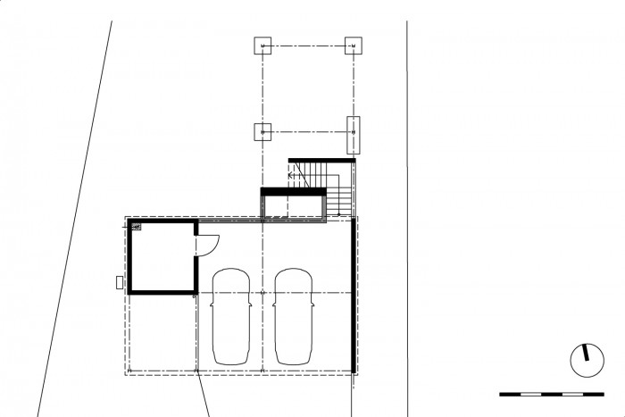
Pozemek na konci slepé ulice v chatové oblasti je úzký a stoupá prudce vzhůru po jižním úbočí říční terasy. Nad zářezem pro parkování jsou posazena dvě obytná podlaží, jejich obdélníkové půdorysy vzájemně svírají pravý úhel. Nad částí prvního podlaží s ložnicemi tak vzniká plocha pro střešní terasu, která navazuje na hlavní obytný prostor v podlaží druhém.

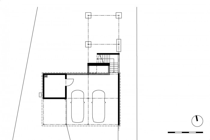
Z parkingu pod domem vede ke vstupu do bytu venkovní schodiště. Pokračující vnitřní schodiště ústí uprostřed obytného prostoru a dělí ho na kuchyň s jídelnou na jedné straně a klidové sezení na druhé.

Opěrné stěny zářezu pro parking, schodiště a sklad jsou z monolitického železobetonu. Na stěnách a ocelových sloupech spočívá klasická dřevostavba obytných pater, příčnou tuhost druhého patra zajišťují čtyři ocelové rámy. Boční fasády směrem k sousedům jsou opláštěny nehořlavými deskami CETRIS, zbývající plochy kryjí modřínové lamely. Prosklení je důsledně stíněno venkovními žaluziemi.

Foto: EARCH

Foto: EARCH

 

Generální partner
Hlavní partneři