SENAA architekti - Rodinný dům s atriem

Investoři koupili relativně malý svažitý pozemek s výhledem na Pálavu. Zadání architektům bylo stručné. „Rodinný dům. Pokud se dá na pozemku vůbec něco postavit“.Dům je součástí nově vznikající ulice na okraji malé moravské obce. Nová výstavba nezohledňuje kontext tradiční řadové zástavby slovácké vesnice. Domy jsou volně stojící, bez jednotícího prvku, vzájemně nerespektují orientaci hřebene nebo sklon střechy. Výzvou bylo navrhnout současné moderní bydlení na vesnici v sousedství převážně katalogových domů.
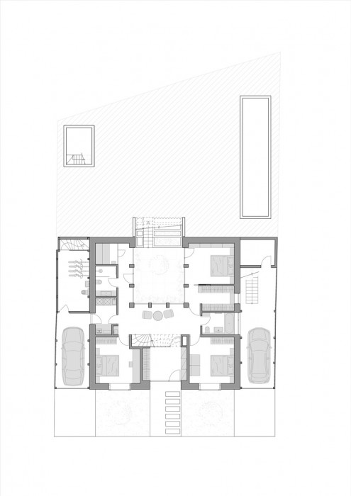
Návrh reaguje na morfologii terénu. Polozapuštěným atriem umožňuje pohodlný výstup z přízemí i podkroví do zahradní části domu. Celkové řešení je založeno na maximálním využití každé části pozemku pro dům a zahradu a na jejich vzájemném propojení. Zahrada je důmyslným rozšířením interiéru - s vlastním obývákem, venkovní kuchyní i jídelnou. Jednotný funkční celek interiéru a exteriéru poskytne příjemné bydlení s dostatečným technickým zázemím a úložnými prostory.Celková kompozice domu je symetrická. Hlavní vstup do domu je umístěn ve středu dispozice. Přes zádveří vcházíme do prostorné haly. Důstojnost prostoru umocňuje průhledová osa do vnitřního atria. V přízemí se nachází soukromá část domu – dětské/hostinské pokoje orientované do ulice, ložnice s výstupem do atria a zázemí domu - koupelny, šatna, sauna a technická místnost. Sochařsky pojaté schodiště, vedoucí z haly do horní obytné části, je ústředním motivem domu.
Celé horní podlaží je jedním spojitým prostorem otevřeným do hřebene střechy. Do prostoru umístěný „box“ zázemí integruje pracovnu, knihovnu, WC, spíž a krb. Box zároveň vymezuje obývací pokoj, jídelnu a kuchyni. Z jídelny i obývacího pokoje se vstupuje přímo na terasu a zahradu. K domu je navržen zahradní domek s venkovní kuchyní a skladem zahradního vybavení, který má formu dřevěného pavilonu. V suterénu se nachází vinný sklípek. Zahrada svou velikostí spíše rozšiřuje vnitřní obytný prostor. Není rozlehlá, ale splňuje veškeré představy investorů o užívání. Zahrnuje bazén se sprchou a relaxační částí, bylinkové záhony, kompost apod.
Dům je zděný, nepodsklepený, stavba je založena na betonových pasech. Nosné stěny jsou vyzděny z keramických bloků tl. 500mm. Stropy jsou železobetonové, monolitické. Krov je kombinovaný systém dřevěných krokví uložených mezi plné vazby z ocelových rámů. Střechu tvoří falcovaný plech. Plochá střecha je navržena s extenzivní zelení. Dům je omítaný, přízemní část má tmavě šedou omítku s hrubším zrnem a výraznější texturou, horní patro má naopak jemnější světlou, přírodní omítku. Garážové stání, dílna a zahradní dům jsou tvořeny dřevěnými pohledovými rámy. Výplně opláštění je z dřevěných desek a lamel, část střechy je prosklená, kvůli prosvětlení. Okna směrem do zahrady jsou stíněna venkovními textilními screeny a markýzami.
- Autoři: Václav Navrátil, Jan Sedláček
- Ateliér: SENAA
- Spolupráce: David Korsa, Jan Gadziala
- Země: Česká republika
- Město: Podluží
- Datum projektu: 2016
- Realizace: 2019
- Užitná plocha: 158.00m2
- Zastavěná plocha: 137.00m2
- Plocha pozemku: 570.00m2
- Zahradní architekti: Atelier Partero s.r.o.
Související projekty
Související architekti
Související ateliéry a firmy
Mohlo by vás zajímat




















