SMLXL - Mezonet v Praze-Podolí

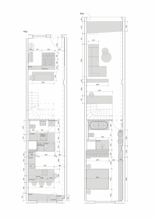
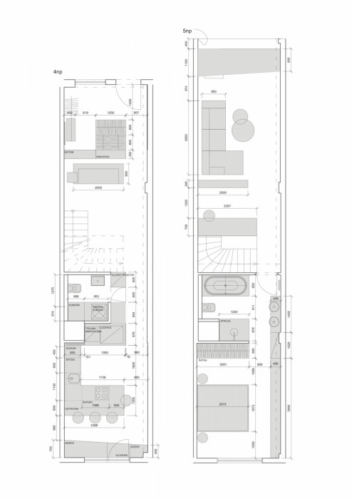
„Potěšilo nás, že se klienti betonových povrchů nebáli a od začátku jsme v tomto byli naladěni na stejnou vlnu. Občas slýcháme, že jsou naše interiéry studené a díky surovějším povrchům vypadají jako nedodělané, ale to, že se naše práce nelíbí každému, je v pořádku. Každý vnímáme barvy a jejich odstíny jinak. My třeba vidíme barevnost a živelnost skrytou v deseti odstínech černé nebo šedé barvy, neméně důležité jsou pak i různé struktury a materiály,” vysvětluje architektka Klára Valová, zakladatelka studia SMLXL. Byt v nenápadném pavlačovém domě z počátku 90. let potřeboval upravit dispozici a vyřešit interiér tak, aby z komplikovaného půdorysu – dvě 3 metry široká a 15 metrů dlouhá patra o celkové rozloze 98 m² – vytěžili jeho majitelé maximum. 

Nápad očistit původní konstrukce a nechat vyniknout jejich surový hrubý povrch nejvíc ovlivnil výslednou podobu bytu a jeho industriální atmosféru. Architektky Klára Valová a Eva Mohylová odhalily železobetonový skelet s panely a betonový strop a sloupy ještě doplnily betonovou stěrkou na podlaze. Vznikl tak monochromatický základ, který slouží jako malířské plátno pro další výrazné prvky. 

Srdcem celého bytu se stalo ocelové zavěšené schodiště potažené výrazným modrým lakem. Barevný prvek pomyslného středu bytu na sebe poutá pozornost a skvěle vyniká v neutrálním prostředí celého interiéru. Schodiště nyní propojuje spodní patro bytu, kde se nachází vstupní hala, kuchyň a toaleta, s horním privátnějším patrem, do kterého architektky umístily ložnici, koupelnu a obývací pokoj s pracovnou. 

Největší změnou v uspořádání bytu je přesunutí kuchyně, která byla původně situována hned u vstupu z pavlače. Nově ji architektky umístily na opačný konec patra, což umožňuje přímý vstup na balkon. „Původně majitelé tento pokoj vůbec nevyužívali, sloužila jen jako sušárnu prádla a v podstatě skladiště. Přitom díky balkonu jde o jeden z nejhezčích pokojů z celého bytu. Spojením s balkonem jsme navíc prodloužily plochu a pocit z celého bytu. Najednou tak získal na velkorysosti,” zdůrazňuje Klára Valová. 

Industriálně laděný interiér zjemňují elegantní materiály jako je kouřové sklo, jímž je opláštěná digestoř, kůže použitá na čele postele nebo černě mořená dýha na nábytku. Koupelnu rozzářily světla české značky Lasvit, interiér doplnily barové židle dánské designové značky Hay. Všechen ostatní nábytek je vytvořen na míru. SMLXL totiž zastává jasný názor, že byt není showroom. Klientovi se musí přizpůsobit na míru přesně dle jeho konkrétních potřeb. 

  • Autoři: Klára Valová, Eva Mohylová
  • Ateliér: SMLXL
  • Země: Česká republika
  • Realizace: 2020
  • Město: Praha 4 – Podolí
  • Realizace: 2020
  • Užitná plocha: 98.00m2
Generální partner
Hlavní partneři