Spolkový dům Ratíškovice

Dříve se v Ratíškovicích pořádaly tancovačky v tělocvičně místní školy, koncerty v malém kinosále, košty vína ve velkém stanu a výstavy houbařů v hasičské zbrojnici. V roce 2004 však bylo rozhodnuto o zadání projektu spolkového domu, následující rok vydáno stavební povolení s pravidelně prodlužovanou platností až do roku 2014. Stavební práce trvaly 13 měsíců, dům byl dokončen a požehnán v září 2016 a ihned si prošel zatěžkávací zkouškou – koncertem „the Tap Tap“ a tradičními hody, tentokrát s podtitulem „v novém“...

Dům se nachází na jižní Moravě, v Dolňácku, sedm kilometrů severně od Hodonína, v Ratíškovicích, které mají něco málo přes čtyři tisíce obyvatel. Spolkový dům je zařazen v ulicové zástavbě a snaží se z této řady nevyčnívat. Stojí na místě bývalé herny kuželek a těsně navazuje na stávající restauraci „Sport“, v blízkosti je sportovní areál, tři fotbalová hřiště, tenisové kurty, plavecký bazén a také prostor pro případné další veřejné stavby...

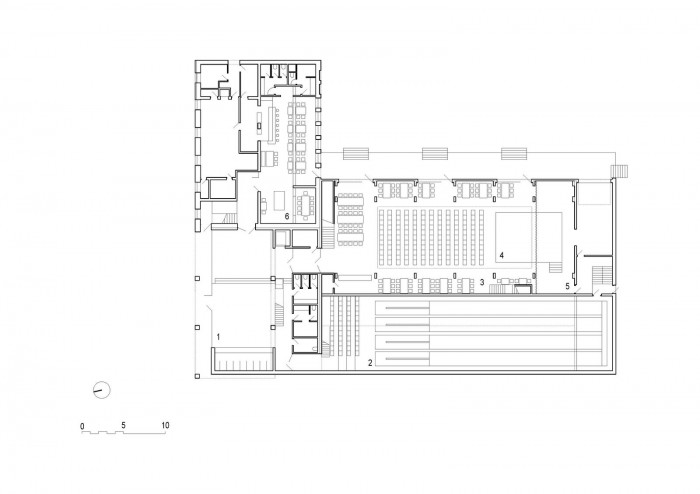
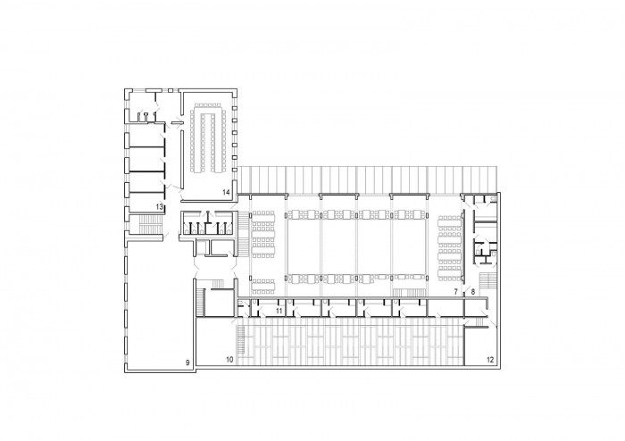
V podloubí zvětšený venkovní předprostor, rozlehlé foyer, velký a malý sál, kuželna, propojení se stávající restauraci, terasa, letní scéna a kulturní nádvoří ve výstavbě; betonové stěny, nosné rámy z lepených dřevěných profilů, akustický heraklit...

Generální partner
Hlavní partneři