Štátna vedecká knižnica v Prešove
V roku 2006 bola vyhlásená architektonická súťaž na novú budovu ŠVK v Prešove s veľkokapacitným skladom na jednom mieste. Víťazom súťaže sa stal bratislavský ateliér SDPe. Do dnešného dňa sa nič nedeje. Pre svoj návrh som prevzal stavebný program a požiadavky z pôvodného zadania, pozmenil som však lokalitu a pozemok.
Pôvodný pozemok sa nachádzal na sídlisku III., čo sa mi zdalo nie príliš dobré riešenie, a preto som využil voľnú parcelu presne za hranicou pamiatkovej rezervácie v centre mesta. Tá je lepšie prístupná zo zastávok MHD a nachádza sa v tichšej časti mesta. Voľná parcela má pozdĺžny tvar a leží priamo nad zachovanou historickou hradbou mestského opevnenia. Parcelu ďalej lemuje Kmeťovo stromoradie z jednej strany a nepomenovaná ulica zo strany druhej (býv. Duchnovičova). V blízkosti nájdeme Divadlo Jonáša Záborského, Krajské riaditeľstvo policajného zboru a asi 6 stredných škôl.
Navrhovaná knižnica sa nachádza na parcele obdĺžnikového tvaru tiahnúceho sa v severo-južnom smere. Z jednej strany je lemovaná Kmeťovým stromoradím a z druhej bývalou Duchnovičovou ulicou. Táto ulica dnes však názov nemá. Pozemok sa nachádza tesne za hranicou pamiatkovej rezervácie Prešov, tá zahrňuje celé historické jadro mesta.
Hradobný múr a priekopa, ktoré v minulosti bránili mesto, ležia priamo pod Kmeťovým stro-moradím, a tak môžeme povedať, že toto územie je z hľadiska pamiatkovej ochrany a urbanizmu vel'mi citlivé a komplikované. Je to hranica medzi centrom a vonkajším mestom. Miesia sa tu rôzne druhy zástavby, od jednopodlažných rodinných domov, až po niekol'koposchodové rozl'ahlé divadlo.
V svojom návrhu som sa rozhodol nadviazať na spomínané hradby a stromoradie. Hlavne kmeťovo stromoradie je miesto koncentrácie mladých l'udí, pretože je spojnicou viacerých stredných škôl, tiahne sa skrz celé mesto počnúc mestským cintorínom až k spomínanému divadlu Jonáša Záborského. Medzi hradbami sa v bývalej vodnej priekope dnes sčasti nachádza záhrada umenia, sčasi je priekopa ohradená a neudržiavaná. Chodia tu prespávať bezdomovci. V strede priekopy stojí jeden menší objekt. V územnom pláne sa počíta s jeho odstránením, a tak s tým počítam aj ja.
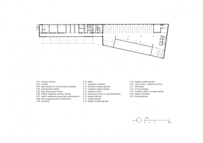
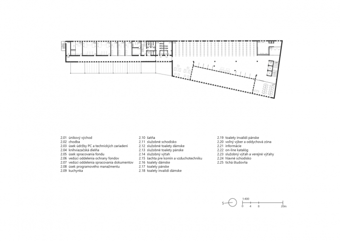
Svoj návrh pre štátnu vedeckú knižnicu v Prešove riešim ako dlhú hmotu, ktorá by oddelila parkovisko pril'ahlé Krajskému riaditeľstvu policajného zboru od stromoradia. Je to niečo ako hradba, ktorá zapĺňa posledný vol'ný priestor v oblúku za hradbami. Do tejto 19 metrov vysokej časti ukladám prevádzky, ktoré nie sú závislé na výhl'ade, čiže knihy vol'ného výberu, sociálne zariadenia, kancelárie a dielne.
Z druhej strany, s výhl'adom do záhrady umenia je umiestnená spojovacia chodba všetkých kancelárií, čo vyplýva z toho, že sa zamestnanci pri vzájomnom strete na chodbe môžu kochať výhl'adom. Na tejto strane prilepujem k hmote lichobežník. V ňom budú študovne a na 5.NP terasa, kde je možnosť študovať v korunách stromov. Na streche je svetlík.
Na 1. NP je objekt rozdelený na dve časti. Na prvej je vedený chodník so stromoradím. Umiestňujem tu menšie kníhkupectvo a miestnosť pre workshopy spojené s malou výstavnou galériou. V časti druhej je foyer so všetkým, čo k tomu patrí (šatne, recep-cia, PC učebňa a konferenčná miestnost) a samoobslužný bufet s vonkajším sedením a prístreškom. Medzi týmito dvoma objektami tak vzniká malé námesíčko, z ktorého vedú schody ako spojnica do záhrady.
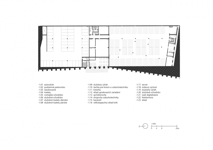
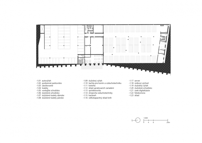
V záhrade z hradby vylieza malá kaviareň, ktorá je podmienkou k oživeniu záhrady umenia. Tú si predstavujem prečistiť od nepotrebnej zelene, odstrániť ploty a celú ju otvoriť verejnosti ako mestský park, ktorý v Prešove zatial' nie je. Do 1. PP je d'alej vložené parkovisko pre zamestnancov, technické zázemie a vel'kokapacitný sklad kníh, z kto-rého budú knihy rozvážané do celého objektu pomocou knižných výťahov.
- Autoři: Patrik Kovaľ
- Ateliér: FUA TUL – Ateliér Buček & Horatschke
- Země: Slovensko
- Město: Prešov
- Ulice, číslo: Kmeťovo stromoradie
- PSČ: 080 01
- Datum projektu: 2016
Související projekty
Související architekti
Související ateliéry a firmy
Mohlo by vás zajímat